HA
23 Glenwinnel Road, Alva FK12 5NX
By Harper & Stone Limited
£ 255,000
Reviews
3 out of 5 stars
Harper & Stone Limited says ..
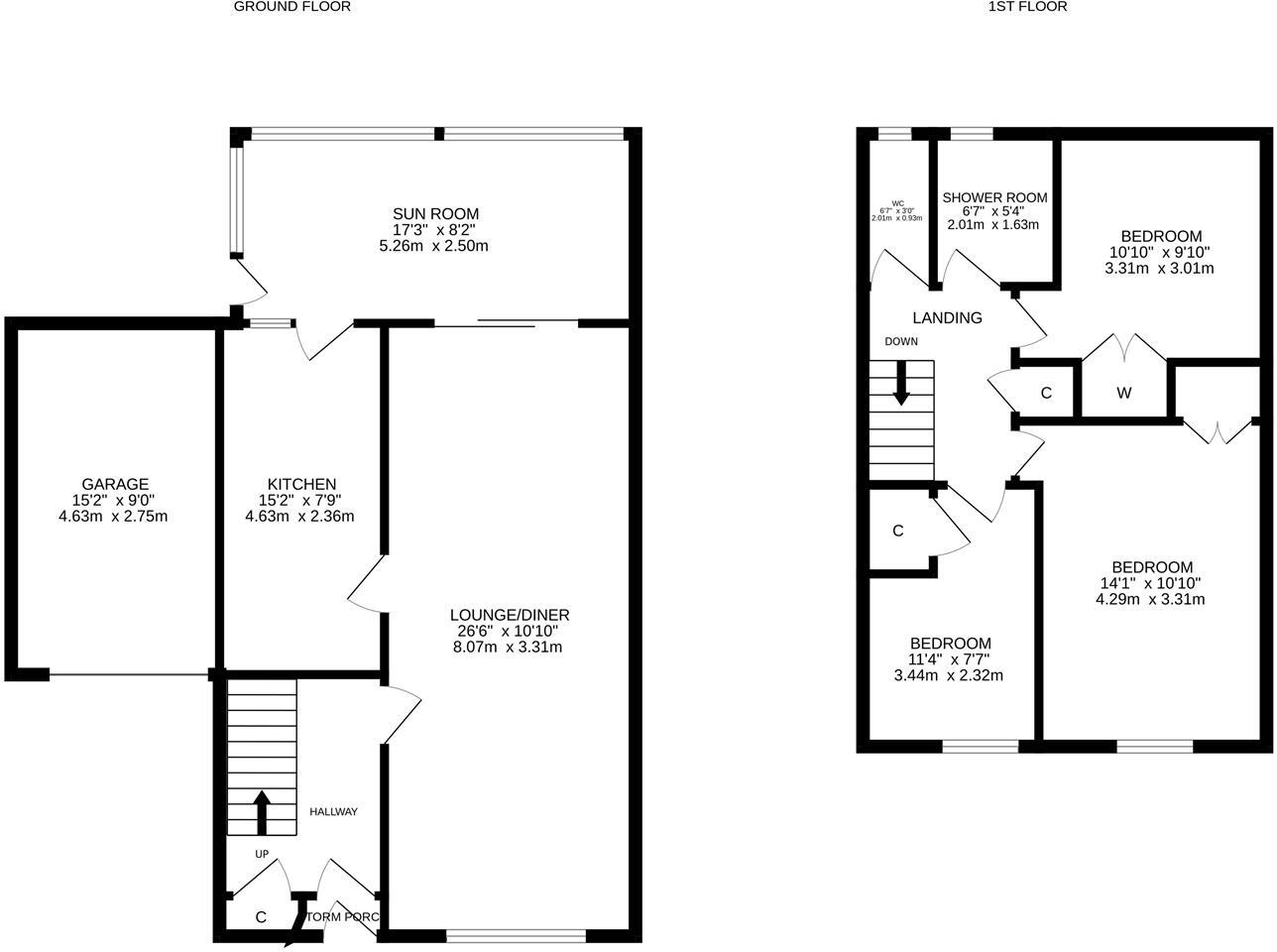
Nestled in the charming town of Alva, 23 Glenwinnel Road presents an excellent opportunity for those seeking a delightful, detached house. This well-maintained property, built in the 1970s, offers approximately 103 square meters of generous living space making it ideal for families or individuals...
Property Oracle says ..
Therefore, we give this property 6 / 10. *Disclaimer: This is our option and does constitute a recommendation or financial advice. Do your own research. *
- Price
- 8
- Condition
- 6
- Location
- 7
- Land
- 5
- Bedrooms
- 3
- Bathrooms
- 1
- Sqft (est)
- 1,064.87
The heatmap indicates the level of crime in the area. The color of the heatmap indicates the crime severity and recency.
Metrics Year-on-Year
- Average area value
- 453,954.00 £Increased by 9.80 %
- Est sale value
- 373,769.37 £Increased by 39.84 %
- Average area rental value
- 1,181.00 £/moIncreased by 9.86 %
- Est letting value
- 0.00 £/mo
- Est rental Yield
- 3.12 %Unchanged by 0.00 %
- Crime Rate
- 0.00 %
from 413,435.00 £
from 267,282.37 £
from 1,075.00 £/mo
from 0.00 £/mo
from 3.12 %
from 0.00 %
Agent Activity
Harper & Stone Limited marked this listing as sold.
Harper & Stone Limited created the listing.
Images
Nearby Streets
| Name | Average Price | Average Sqft | Distance |
|---|---|---|---|
| Glenwinnel Road | £ 0 | 0 | 0.00 KM |
| Myretoungate | £ 0 | 0 | 0.00 KM |
| Stirling Road | £ 64,995 | 0 | 0.00 KM |
| The Nebit | £ 87,250 | 0 | 0.00 KM |
| The Broich | £ 0 | 0 | 0.00 KM |
Nearby Transport
| Name | NLC | TLC | Distance |
|---|---|---|---|
| Alloa | 9883 | ALO | 4.70 KM |
Nearby Listings
| Address | Price | Type | Score | Distance |
|---|---|---|---|---|
| 23 Glenwinnel Road, Alva FK12 5NX | £ 255,000 | BUY | 6 / 10 | 0.00 KM |
| 7 Myretoungate, Alva FK12 5NH | £ 269,000 | BUY | 7 / 10 | 0.15 KM |
| St. Serf’s Walk, Alva, FK12 | £ 124,000 | BUY | Unknown | 0.16 KM |
| Dalmore Drive, Alva | £ 124,000 | BUY | 7 / 10 | 0.20 KM |
| The Broich, Alva | £ 289,995 | BUY | 7 / 10 | 0.27 KM |