Crow Trees Brow, Chatburn, BB7
By Stones Young Estate and Letting Agents
£ 215,000
Reviews
3 out of 5 stars
Stones Young Estate and Letting Agents says ..
Charming 2-bed 1840s stone cottage in Chatburn with period features, modern comforts, gardens, village views, no chain, freehold, and walking access to amenities and countryside.
Property Oracle says ..
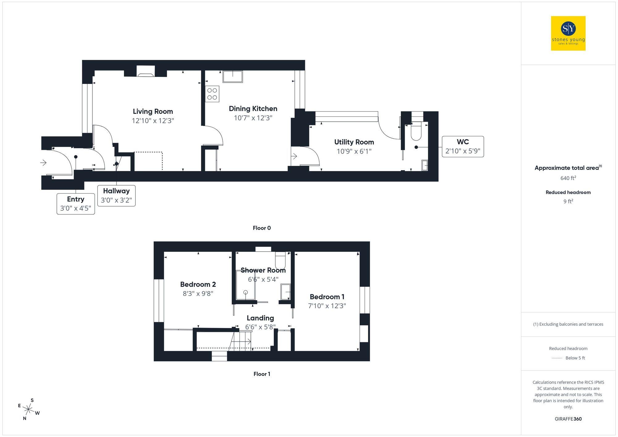
Appleton Cottage is a charming stone-built cottage located in the village of Chatburn. The property features two bedrooms and two bathrooms, making it suitable for a small family or couple. While the interior design is somewhat dated, the property appears to be well-maintained and in generally good condition. The cottage benefits from a small garden to the front and a paved area to the rear, providing some outdoor space. The location is convenient for local amenities and schools, with Chatburn Church of England Primary School being a notable highlight. The price per square foot is lower than the local average, suggesting that the property represents good value for money.
Therefore, we give this property 7 / 10. *Disclaimer: This is our option and does constitute a recommendation or financial advice. Do your own research. *
- Price
- 8
- Condition
- 7
- Location
- 7
- Land
- 6
- Bedrooms
- 2
- Bathrooms
- 2
- Sqft (est)
- 640.00
The heatmap indicates the level of crime in the area. The color of the heatmap indicates the crime severity and recency.
Metrics Year-on-Year
- Average area value
- 259,995.00 £Increased by 9.02 %
- Est sale value
- 277,760.00 £Increased by 24.36 %
- Average area rental value
- 1,233.00 £/moIncreased by 108.28 %
- Est letting value
- 1,280.00 £/mo
- Est rental Yield
- 5.69 %Increased by 90.94 %
- Crime Rate
- 153.00 %Unchanged by 0.00 %
Agent Activity
Stones Young Estate and Letting Agents created the listing.
Nearby Schools
| Name | Type | Ofsted | Distance |
|---|---|---|---|
| Chatburn Church Of England Primary School | Voluntary Aided School | Outstanding | 0.39 KM |
| Grindleton Church Of England Voluntary Aided Primary School | Voluntary Aided School | Good | 1.84 KM |
| Bowland High | Academy Converter | Outstanding | 2.19 KM |
| Clitheroe Brookside Primary School | Community School | Requires improvement | 3.72 KM |
| Clitheroe Pendle Primary School | Community School | Outstanding | 3.92 KM |
Images
Nearby Streets
| Name | Average Price | Average Sqft | Distance |
|---|---|---|---|
| Clough Bank | £ 0 | 0 | 0.00 KM |
| Ribble Avenue | £ 0 | 0 | 0.00 KM |
Nearby Transport
| Name | NLC | TLC | Distance |
|---|---|---|---|
| Clitheroe | 2574 | CLH | 4.80 KM |
| Whalley (Lancashire) | 2736 | WHE | 9.86 KM |
Nearby Listings
| Address | Price | Type | Score | Distance |
|---|---|---|---|---|
| Crow Trees Brow, Chatburn, BB7 | £ 226,000 | BUY | 7 / 10 | 0.00 KM |
| Crow Trees Brow, Chatburn, BB7 | £ 215,000 | BUY | 7 / 10 | 0.00 KM |
| Ribble Lane, Chatburn, BB7 | £ 250,000 | BUY | 6 / 10 | 0.04 KM |
| Ribble Lane, Chatburn, Clitheroe, Lancashire, BB7 | £ 245,000 | BUY | 5 / 10 | 0.05 KM |
| Victoria Court, Chatburn, BB7 4BF | £ 249,950 | BUY | 6 / 10 | 0.14 KM |
Nearby Properties
| Address | Price | Distance |
|---|---|---|
| 3 Shaw Gardens | £ 173,142 | 0.03 KM |
| 2 Shaw Gardens | £ 150,000 | 0.05 KM |
| 2 Dale Terrace | £ 166,000 | 0.07 KM |
| 3 Dale Terrace | £ 138,500 | 0.07 KM |
| 1 Dale Terrace | £ 115,000 | 0.07 KM |