Cannon Street, Accrington
By Keenans Estate Agents
£ 150,000
Reviews
2 out of 5 stars
Keenans Estate Agents says ..
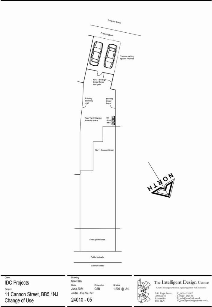
SPACIOUS COMMERCIAL PROPERTY IN THE HEART OF TOWN WITH APPROVED PLANNING FOR FOUR RESIDENTIAL APARTMENTS Located in the bustling Cannon Street of Accrington, this property offers a fantastic opportunity for those seeking a fantastic development opportunity in a prime location. The plann...
Property Oracle says ..
This property, located on Cannon Street in Accrington, Lancashire, is currently listed as commercial office space. It comprises approximately 1200 sqft and includes multiple rooms, plus bathroom and kitchenette facilities. The internal photos suggest a functional space, although some updating or cosmetic work may enhance its appeal. The exterior appears structurally sound but shows signs of age. The planning permission for conversion to four residential apartments is a significant factor in its potential value. The location offers convenience with nearby transport links and well-regarded schools, although more information regarding the immediate street environment would refine the assessment. The lack of a garden is a notable drawback. The list price of £150,000 may reflect the potential for conversion into four residential apartments, requiring further consideration of potential conversion costs, though the final value is heavily dependent upon the local housing market and other property comparables.
Therefore, we give this property 5 / 10. *Disclaimer: This is our option and does constitute a recommendation or financial advice. Do your own research. *
- Price
- 7
- Condition
- 6
- Location
- 7
- Land
- 2
- Bedrooms
- 4
- Bathrooms
- 1
- Sqft (est)
- 1,200.00
The heatmap indicates the level of crime in the area. The color of the heatmap indicates the crime severity and recency.
Metrics Year-on-Year
- Average area value
- 91,650.00 £Decreased by 73.79 %
- Est sale value
- 152,400.00 £Decreased by 63.61 %
- Average area rental value
- 1,733.00 £/moIncreased by 47.36 %
- Est letting value
- 2,400.00 £/moIncreased by 100.00 %
- Est rental Yield
- 22.69 %Increased by 461.63 %
- Crime Rate
- 29.00 %Unchanged by 0.00 %
Agent Activity
Keenans Estate Agents created the listing.
Nearby Schools
| Name | Type | Ofsted | Distance |
|---|---|---|---|
| Accrington St Mary Magdalen'S Church Of England Primary School | Voluntary Aided School | Good | 0.69 KM |
| Accrington Woodnook Primary School | Community School | Good | 0.80 KM |
| Lee Royd Nursery School | Local Authority Nursery School | Good | 0.91 KM |
| Accrington St John With St Augustine Church Of England Primary School | Voluntary Aided School | Good | 0.96 KM |
| Accrington Academy | Academy Sponsor Led | Good | 1.23 KM |
Images
Nearby Streets
| Name | Average Price | Average Sqft | Distance |
|---|---|---|---|
| St. James Street | £ 0 | 0 | 0.00 KM |
| Ormerod Street | £ 0 | 0 | 0.00 KM |
| Eastgate | £ 0 | 0 | 0.00 KM |
| Hope Street | £ 115,000 | 0 | 0.00 KM |
| Whalley Road | £ 0 | 0 | 0.00 KM |
Nearby Transport
| Name | NLC | TLC | Distance |
|---|---|---|---|
| Accrington | 2552 | ACR | 0.28 KM |
| Church And Oswaldtwistle | 2556 | CTW | 2.65 KM |
| Huncoat | 2558 | HCT | 3.09 KM |
| Rishton | 2580 | RIS | 6.00 KM |
| Hapton | 2557 | HPN | 6.47 KM |
Nearby Listings
| Address | Price | Type | Score | Distance |
|---|---|---|---|---|
| Cannon Street, Accrington | £ 150,000 | BUY | 5 / 10 | 0.00 KM |
| Church Street, Accrington, Lancashire, BB5 | £ 170,000 | BUY | 4 / 10 | 0.29 KM |
| Blackburn Road, Accrington, Lancashire, BB5 | £ 110,000 | BUY | 6 / 10 | 0.36 KM |
| Nelson Street, Accrington, BB5 | £ 84,950 | BUY | 6 / 10 | 0.36 KM |
| Belfield Road, Accrington, Lancashire, BB5 | £ 75,000 | BUY | 5 / 10 | 0.42 KM |
Nearby Properties
| Address | Price | Distance |
|---|---|---|
| 6a Birch Street | £ 50,000 | 0.12 KM |
| 97 Blackburn Road | £ 100,000 | 0.15 KM |
| 85 Blackburn Road | £ 206,000 | 0.15 KM |
| 94 Blackburn Road | £ 49,500 | 0.20 KM |
| 6 Paradise Street | £ 72,000 | 0.20 KM |