Russell Cope says ..
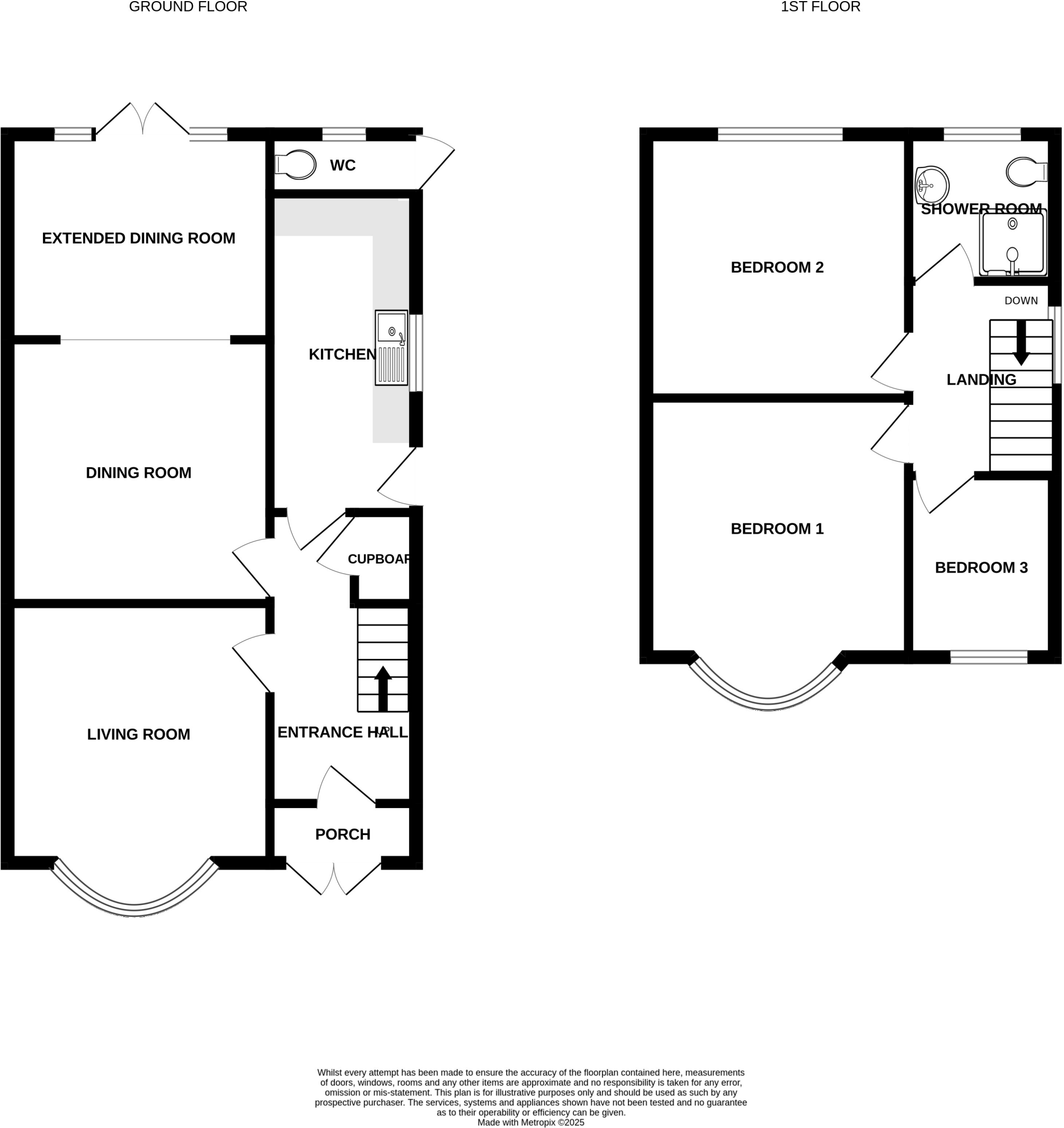
***EXTENDED TO THE REAR***OFFERED WITH NO ONWARD CHAIN***GENEROUS REAR GARDEN*** In brief the property comprises; entrance porch, and entrance with hall with original Minton tiles, front living room, extended dining room, kitchen, three bedrooms and shower room. Also benefiting from UPVC double g...
Property Oracle says ..
This semi-detached property is located on Newdigate Road in Bedworth, Warwickshire. The area benefits from relatively close proximity to several primary and secondary schools, with options ranging from “Outstanding” to “Good” Ofsted ratings. Train stations are also within a reasonable distance, providing access to commuting routes. The property itself is a 3-bedroom, 1-bathroom house with a total area of 1,295 sqft. Based on the images, the property appears to be in need of some modernisation and updating. The carpets show significant wear, and the garden requires attention. While the kitchen and bathroom appear functional, they also show signs of age. The property includes a garden, though its current state is not ideal. Compared to other properties in the area, the list price of £240,000 seems slightly below the average price of £390,398, but it’s important to consider the condition of the property which requires some level of renovation.
Therefore, we give this property 6 / 10. *Disclaimer: This is our option and does constitute a recommendation or financial advice. Do your own research. *
- Price
- 6
- Condition
- 5
- Location
- 7
- Land
- 6
- Bedrooms
- 3
- Bathrooms
- 1
- Sqft (est)
- 1,295.00
The heatmap indicates the level of crime in the area. The color of the heatmap indicates the crime severity and recency.
Metrics Year-on-Year
- Average area value
- 411,094.00 £Increased by 15.33 %
- Est sale value
- 419,580.00 £Decreased by 10.99 %
- Average area rental value
- 1,035.00 £/moDecreased by 6.76 %
- Est letting value
- 0.00 £/moDecreased by 100.00 %
- Est rental Yield
- 3.02 %Decreased by 19.25 %
- Crime Rate
- 6.00 %Unchanged by 0.00 %
Agent Activity
Russell Cope created the listing.
Nearby Schools
| Name | Type | Ofsted | Distance |
|---|---|---|---|
| The Canons C Of E Primary School | Voluntary Aided School | Outstanding | 0.35 KM |
| Race Leys Junior School | Academy Sponsor Led | Good | 0.71 KM |
| Race Leys Infant School | Community School | Good | 0.73 KM |
| Exhall Cedars Infant School | Community School | Requires improvement | 1.24 KM |
| St Francis Catholic Academy | Academy Converter | Good | 1.26 KM |
Images
Nearby Streets
| Name | Average Price | Average Sqft | Distance |
|---|---|---|---|
| Thomas Street | £ 0 | 0 | 0.00 KM |
| Ellesmere Road | £ 0 | 0 | 0.00 KM |
| Roadway Close | £ 0 | 0 | 0.00 KM |
| The Mews | £ 0 | 0 | 0.00 KM |
| Dalton Road | £ 280,000 | 0 | 0.00 KM |
Nearby Transport
| Name | NLC | TLC | Distance |
|---|---|---|---|
| Bedworth | 1165 | BEH | 1.52 KM |
| Bermuda Park | 6543 | BEP | 2.56 KM |
| Coventry Arena | 7416 | CAA | 3.90 KM |
| Nuneaton | 1077 | NUN | 5.47 KM |
| Coventry | 1030 | COV | 9.54 KM |
Nearby Listings
| Address | Price | Type | Score | Distance |
|---|---|---|---|---|
| Newdigate Road | £ 240,000 | BUY | 6 / 10 | 0.00 KM |
| Newdigate Road, Bedworth, CV12 | £ 275,000 | BUY | 7 / 10 | 0.01 KM |
| Newtown Road, Bedworth, Warwickshire, CV12 | £ 195,000 | BUY | 7 / 10 | 0.05 KM |
| Newtown Road, Bedworth, Warwickshire, CV12 | £ 200,000 | BUY | 7 / 10 | 0.11 KM |
| Newtown Road, Bedworth, Warwickshire, CV12 | £ 160,000 | BUY | Unknown | 0.16 KM |
Nearby Properties
| Address | Price | Distance |
|---|---|---|
| 1 Newdigate Road | £ 205,000 | 0.00 KM |
| 12 Newdigate Road | £ 187,000 | 0.00 KM |
| 14 Newdigate Road | £ 185,000 | 0.00 KM |
| 8 Newdigate Road | £ 156,000 | 0.00 KM |
| 16 Newdigate Road | £ 205,000 | 0.00 KM |