Watson Homes says ..
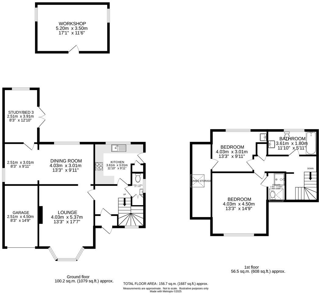
Nestled within the prestigious Nonsuch Estate, this charming house on Westcott Way in Cheam, Sutton, offers an exceptional living experience. With its blend of traditional exterior and modern interiors, this property is sure to appeal to families and professionals alike. The house boasts...
Property Oracle says ..
Therefore, we give this property 8 / 10. *Disclaimer: This is our option and does constitute a recommendation or financial advice. Do your own research. *
- Price
- 9
- Condition
- 8
- Location
- 8
- Land
- 7
- Bedrooms
- 3
- Bathrooms
- 2
- Sqft (est)
- 1,686.70
The heatmap indicates the level of crime in the area. The color of the heatmap indicates the crime severity and recency.
Metrics Year-on-Year
- Average area value
- 610,625.00 £Decreased by 19.30 %
- Est sale value
- 995,153.00 £Increased by 18.24 %
- Average area rental value
- 1,920.00 £/moDecreased by 32.77 %
- Est letting value
- 1,686.70 £/moUnchanged by 0.00 %
- Est rental Yield
- 3.77 %Decreased by 16.78 %
- Crime Rate
- 4.00 %Unchanged by 0.00 %
from 756,651.00 £
from 841,663.30 £
from 2,856.00 £/mo
from 1,686.70 £/mo
from 4.53 %
from 4.00 %
Agent Activity
Watson Homes created the listing.
Nearby Schools
| Name | Type | Ofsted | Distance |
|---|---|---|---|
| Nonsuch High School For Girls | Academy Converter | Good | 1.18 KM |
| Cuddington Croft Primary School | Academy Converter | Good | 1.42 KM |
| North East Surrey College Of Technology | Further Education | Good | 1.61 KM |
| St Dunstan'S Cheam Cofe Primary School | Voluntary Aided School | Good | 1.65 KM |
| Ewell Castle School | Other Independent School | 1.80 KM |
Images
Nearby Streets
| Name | Average Price | Average Sqft | Distance |
|---|---|---|---|
| Springfield Road | £ 0 | 0 | 0.00 KM |
| Burford Lane | £ 0 | 0 | 0.00 KM |
| Fairview | £ 1,250,000 | 0 | 0.00 KM |
| West Drive | £ 0 | 0 | 0.00 KM |
| Nonsuch Walk | £ 0 | 0 | 0.00 KM |
Nearby Transport
| Name | NLC | TLC | Distance |
|---|---|---|---|
| Ewell East | 5415 | EWE | 1.19 KM |
| Cheam | 5352 | CHE | 2.06 KM |
| Stoneleigh | 5606 | SNL | 2.64 KM |
| Epsom Downs | 5361 | EPD | 2.79 KM |
| Banstead | 5348 | BAD | 2.82 KM |
Nearby Listings
| Address | Price | Type | Score | Distance |
|---|---|---|---|---|
| Westcott Way, South Cheam | £ 890,000 | BUY | 8 / 10 | 0.00 KM |
| Westcott Way, Cheam | £ 1,500,000 | BUY | 7 / 10 | 0.05 KM |
| Albury Avenue, Cheam SM2 | £ 1,250,000 | BUY | 7 / 10 | 0.16 KM |
| Albury Avenue, Cheam | £ 1,200,000 | BUY | 8 / 10 | 0.19 KM |
| Holmwood Road, Cheam, SM2 | £ 1,000,000 | BUY | Unknown | 0.19 KM |
Nearby Properties
| Address | Price | Distance |
|---|---|---|
| 18 Westcott Way | £ 685,000 | 0.03 KM |
| 20 Westcott Way | £ 550,000 | 0.03 KM |
| 10 Westcott Way | £ 650,000 | 0.03 KM |
| 22 Westcott Way | £ 800,000 | 0.03 KM |
| 1 Westcott Way | £ 640,000 | 0.03 KM |