Hillsfield, Upton upon Severn, Worcester, Worcestershire, WR8 0LH
By John Goodwin FRICS
£ 300,000
Reviews
3 out of 5 stars
John Goodwin FRICS says ..
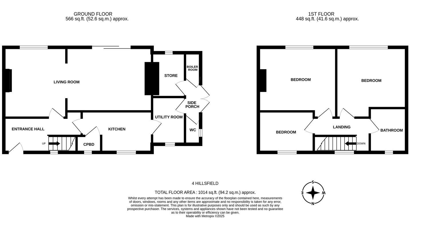
A Three Bedroom Semi-Detached Property With Potential For Development (Subject To The Relevant Permissions Being Sought) In Need Of Refurbishment. No Chain. EPC Rating "D"
Property Oracle says ..
This is a three-bedroom semi-detached house in Upton upon Severn, Worcestershire. The property is in a good location, close to local schools and amenities. The property is in reasonable condition, although some aspects of the interior are dated and could benefit from modernisation. The property has a good-sized garden. The property is listed at £300,000, which is slightly above the average price for similar properties in the area, but the property has a larger square footage than average.
Therefore, we give this property 6 / 10. *Disclaimer: This is our option and does constitute a recommendation or financial advice. Do your own research. *
- Price
- 7
- Condition
- 6
- Location
- 7
- Land
- 7
- Bedrooms
- 3
- Bathrooms
- 1
- Sqft (est)
- 1,014.00
The heatmap indicates the level of crime in the area. The color of the heatmap indicates the crime severity and recency.
Metrics Year-on-Year
- Average area value
- 263,750.00 £Decreased by 42.77 %
- Est sale value
- 359,970.00 £Increased by 22.84 %
- Average area rental value
- 975.00 £/moDecreased by 26.75 %
- Est letting value
- 1,014.00 £/mo
- Est rental Yield
- 4.44 %Increased by 27.95 %
- Crime Rate
- 88.00 %Unchanged by 0.00 %
Agent Activity
John Goodwin FRICS created the listing.
Nearby Schools
| Name | Type | Ofsted | Distance |
|---|---|---|---|
| Riverboats Children'S Centre | Children's Centre | 0.18 KM | |
| Upton-Upon-Severn Cofe Primary And Pre School | Voluntary Controlled School | Good | 0.18 KM |
| Hanley Castle High School | Academy Converter | Good | 2.83 KM |
| Bredon School | Other Independent School | 4.50 KM | |
| Hanley Swan St Gabriel'S With St Mary'S Cofe Primary School | Academy Converter | Good | 7.12 KM |
Images
Nearby Streets
| Name | Average Price | Average Sqft | Distance |
|---|---|---|---|
| Gardens Close | £ 0 | 0 | 0.00 KM |
| Lilac Close | £ 0 | 0 | 0.00 KM |
| Laburnum Walk | £ 0 | 0 | 0.00 KM |
| Pepperpot Mews | £ 0 | 0 | 0.00 KM |
| A4104 | £ 0 | 0 | 0.00 KM |
Nearby Listings
| Address | Price | Type | Score | Distance |
|---|---|---|---|---|
| Hillsfield, Upton upon Severn, Worcester, Worcestershire, WR8 0LH | £ 300,000 | BUY | 6 / 10 | 0.00 KM |
| Hillsfield, Upton-Upon-Severn, Worcester | £ 350,000 | BUY | Unknown | 0.00 KM |
| Gardens Close, Upton-Upon-Severn, Worcester | £ 350,000 | BUY | Unknown | 0.07 KM |
| Gardens Walk, Upton-Upon-Severn, Worcester | £ 340,000 | BUY | 7 / 10 | 0.13 KM |
| Minge Lane, Upton upon Severn, Worcestershire, WR8 0LS | £ 270,000 | BUY | 7 / 10 | 0.13 KM |
Nearby Properties
| Address | Price | Distance |
|---|---|---|
| 19 Hillsfield | £ 248,000 | 0.01 KM |
| 9 Hillsfield | £ 230,000 | 0.01 KM |
| 7 Hillsfield | £ 212,500 | 0.01 KM |
| 10 Hillsfield | £ 240,000 | 0.01 KM |
| 11 Hillsfield | £ 194,950 | 0.01 KM |