The Butts, Otford, Sevenoaks, Kent, TN14
By Knight Frank
£ 995,000
Reviews
3 out of 5 stars
Knight Frank says ..
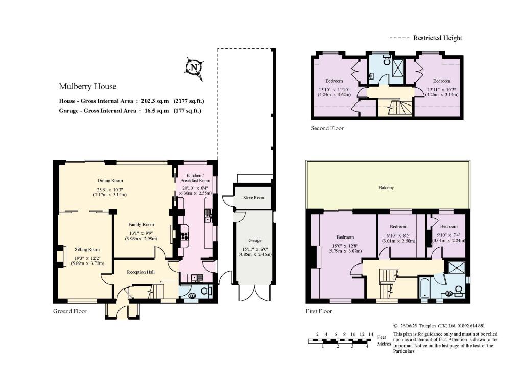
A beautifully presented 5 bedroom semi detached house of approx 2177 sq.ft with well landscaped garden, garage and parking for 4 cars. Mulberry House is located on a peaceful, sought-after road in the charming village of Otford, just 0.7 miles from Otford station. This delightful home includes a...
Property Oracle says ..
Mulberry House is a well-presented semi-detached property located in the desirable village of Otford, Kent. The property offers five bedrooms, two bathrooms, and generous living spaces, making it ideal for families. The property is in good condition, with modern interiors and a well-maintained garden. The location is convenient, with easy access to local schools, shops, and transportation links. The property is listed at £995,000, which is slightly below the average price for similar properties in the area. Overall, Mulberry House is a desirable family home in a sought-after location.
Therefore, we give this property 7 / 10. *Disclaimer: This is our option and does constitute a recommendation or financial advice. Do your own research. *
- Price
- 7
- Condition
- 8
- Location
- 7
- Land
- 9
- Bedrooms
- 5
- Bathrooms
- 2
- Sqft (est)
- 158.99
The heatmap indicates the level of crime in the area. The color of the heatmap indicates the crime severity and recency.
Metrics Year-on-Year
- Average area value
- 1,145,000.00 £Increased by 51.85 %
- Est sale value
- 126,874.02 £Increased by 52.58 %
- Average area rental value
- 1,717.00 £/moDecreased by 6.07 %
- Est letting value
- 158.99 £/moUnchanged by 0.00 %
- Est rental Yield
- 1.80 %Decreased by 38.14 %
- Crime Rate
- 1.00 %Unchanged by 0.00 %
Agent Activity
Knight Frank created the listing.
Nearby Schools
| Name | Type | Ofsted | Distance |
|---|---|---|---|
| Otford Primary School | Community School | Good | 0.56 KM |
| Russell House School | Other Independent School | 0.57 KM | |
| St Michael'S Prep School | Other Independent School | 2.35 KM | |
| Spring House Children'S Centre | Children's Centre | 2.42 KM | |
| Knole Academy | Academy Sponsor Led | Good | 2.53 KM |
Images
Nearby Streets
| Name | Average Price | Average Sqft | Distance |
|---|---|---|---|
| Sevenoaks Road | £ 1,150,000 | 0 | 0.00 KM |
| Station Approach | £ 0 | 0 | 0.00 KM |
| Broughton Road | £ 0 | 0 | 0.00 KM |
| Nightingale Road | £ 577,333 | 0 | 0.00 KM |
| Orchard Road | £ 850,000 | 0 | 0.00 KM |
Nearby Transport
| Name | NLC | TLC | Distance |
|---|---|---|---|
| Otford | 5071 | OTF | 0.76 KM |
| Bat And Ball | 5090 | BBL | 2.09 KM |
| Dunton Green | 5102 | DNG | 2.67 KM |
| Shoreham (Kent) | 5074 | SEH | 2.67 KM |
| Sevenoaks | 5124 | SEV | 3.69 KM |
Nearby Listings
| Address | Price | Type | Score | Distance |
|---|---|---|---|---|
| The Butts, Otford, Sevenoaks, Kent, TN14 | £ 995,000 | BUY | 7 / 10 | 0.00 KM |
| The Butts, Otford, Sevenoaks | £ 775,000 | BUY | Unknown | 0.07 KM |
| The Butts, Otford | £ 1,100,000 | BUY | 7 / 10 | 0.12 KM |
| The Butts, Otford, TN14 | £ 985,000 | BUY | 8 / 10 | 0.12 KM |
| Bubblestone Road, Otford, Sevenoaks, Kent, TN14 | £ 1,695,000 | BUY | Unknown | 0.18 KM |
Nearby Properties
| Address | Price | Distance |
|---|---|---|
| 28 The Butts | £ 450,000 | 0.06 KM |
| 2a The Butts | £ 900,000 | 0.06 KM |
| 16 The Butts | £ 529,000 | 0.06 KM |
| 1 The Butts | £ 565,000 | 0.06 KM |
| 30 The Butts | £ 677,000 | 0.06 KM |