CH
Church Street, Hampton
By Chase Buchanan
£ 2,995
Chase Buchanan says ..
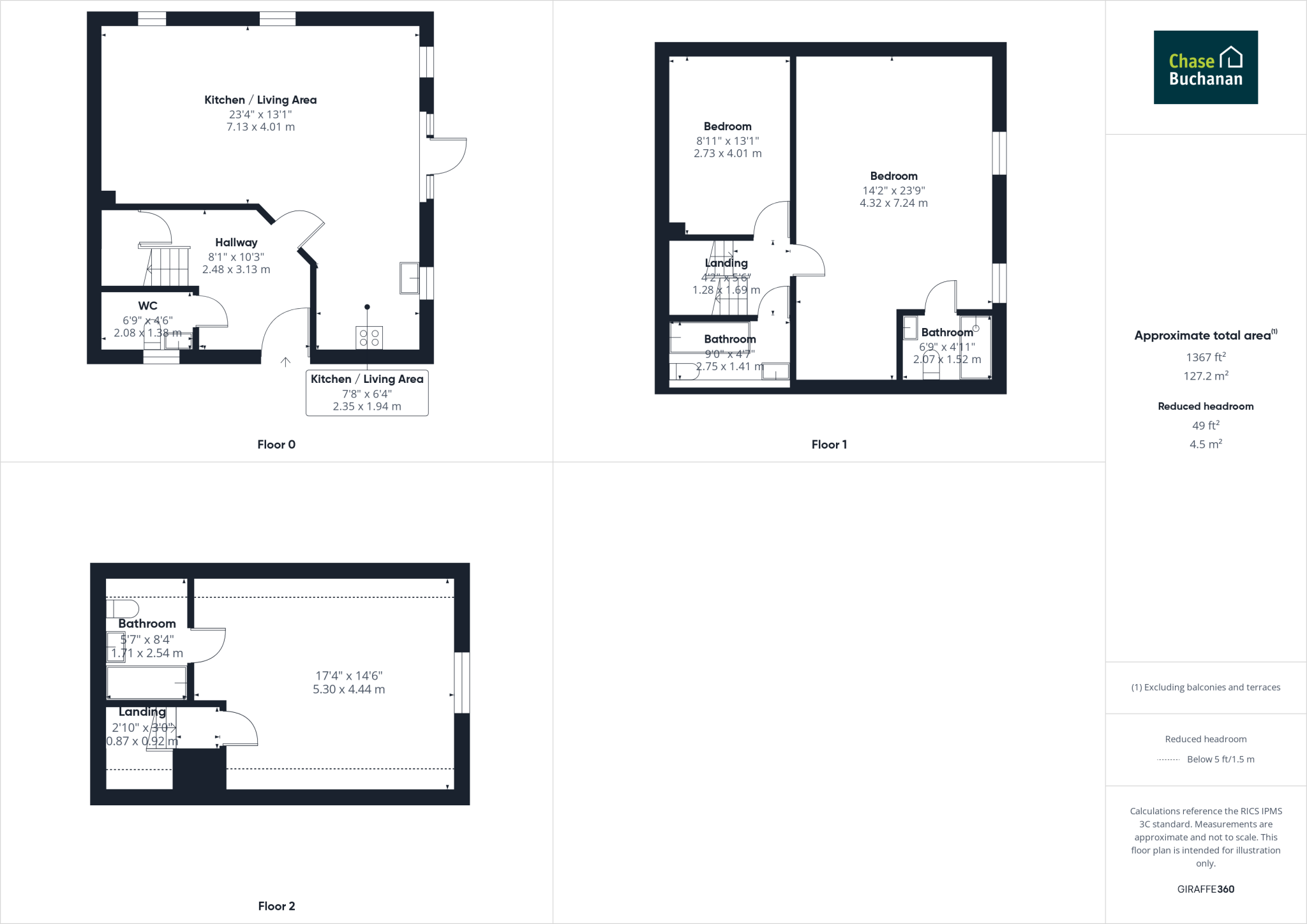
Set within a stunning church conversion and beautifully arranged over three floors, this rarely available three-bedroom, three-bathroom semi-detached home offers a perfect blend of character and contemporary living. On the ground floor, you’ll find a spacious and bright open-plan...
- Bedrooms
- 3
- Bathrooms
- 3
The heatmap indicates the level of crime in the area. The color of the heatmap indicates the crime severity and recency.
Metrics Year-on-Year
- Average area value
- 557,772.00 £Decreased by 25.18 %
- Average area rental value
- 2,626.00 £/moDecreased by 24.91 %
- Est rental Yield
- 5.65 %Increased by 0.36 %
- Crime Rate
- 11.00 %Unchanged by 0.00 %
from 745,509.00 £
from 3,497.00 £/mo
from 5.63 %
from 11.00 %
Agent Activity
Chase Buchanan created the listing.
Nearby Schools
| Name | Type | Ofsted | Distance |
|---|---|---|---|
| Twickenham Preparatory School | Other Independent School | 0.16 KM | |
| Carlisle Infant School | Community School | Good | 1.08 KM |
| St Lawrence Cofe Aided Junior School, East Molesey | Voluntary Aided School | Good | 1.25 KM |
| Hampton Junior School | Community School | Good | 1.39 KM |
| Hampton Hill Junior School | Community School | Outstanding | 1.50 KM |
Images
Nearby Streets
| Name | Average Price | Average Sqft | Distance |
|---|---|---|---|
| Johnson's Drive | £ 0 | 0 | 0.00 KM |
| Bell Hill | £ 0 | 0 | 0.00 KM |
| King's Paddock | £ 445,000 | 0 | 0.00 KM |
| Post Office Passage | £ 325,000 | 0 | 0.00 KM |
| Park Way | £ 890,000 | 0 | 0.00 KM |
Nearby Transport
| Name | NLC | TLC | Distance |
|---|---|---|---|
| Hampton | 5560 | HMP | 1.28 KM |
| Hampton Court | 5561 | HMC | 2.35 KM |
| Fulwell | 5587 | FLW | 2.56 KM |
| Teddington | 5572 | TED | 3.32 KM |
| Thames Ditton | 5610 | THD | 3.65 KM |
Nearby Listings
| Address | Price | Type | Score | Distance |
|---|---|---|---|---|
| Church Street, Hampton | £ 2,995 | RENT | Unknown | 0.00 KM |
| High Street, Hampton Hill, TW12 | £ 1,350 | RENT | Unknown | 0.06 KM |
| Kingsley Court, 20 Church Street, Hampton, TW12 | £ 1,695 | RENT | Unknown | 0.11 KM |
| Kings Paddock, Hampton, TW12 | £ 1,750 | RENT | Unknown | 0.23 KM |
| High Street, Hampton | £ 2,195 | RENT | Unknown | 0.24 KM |
Nearby Properties
| Address | Price | Distance |
|---|---|---|
| 23 Church Street | £ 949,950 | 0.01 KM |
| 35 Church Street | £ 755,000 | 0.01 KM |
| 21 Church Street | £ 725,000 | 0.01 KM |
| 9a Church Street | £ 295,000 | 0.01 KM |
| 20 High Street | £ 530,500 | 0.06 KM |