One Move Group says ..
Experience contemporary luxury on the 5th floor of the prestigious Royal Gateway development by Barratt London.
Property Oracle says ..
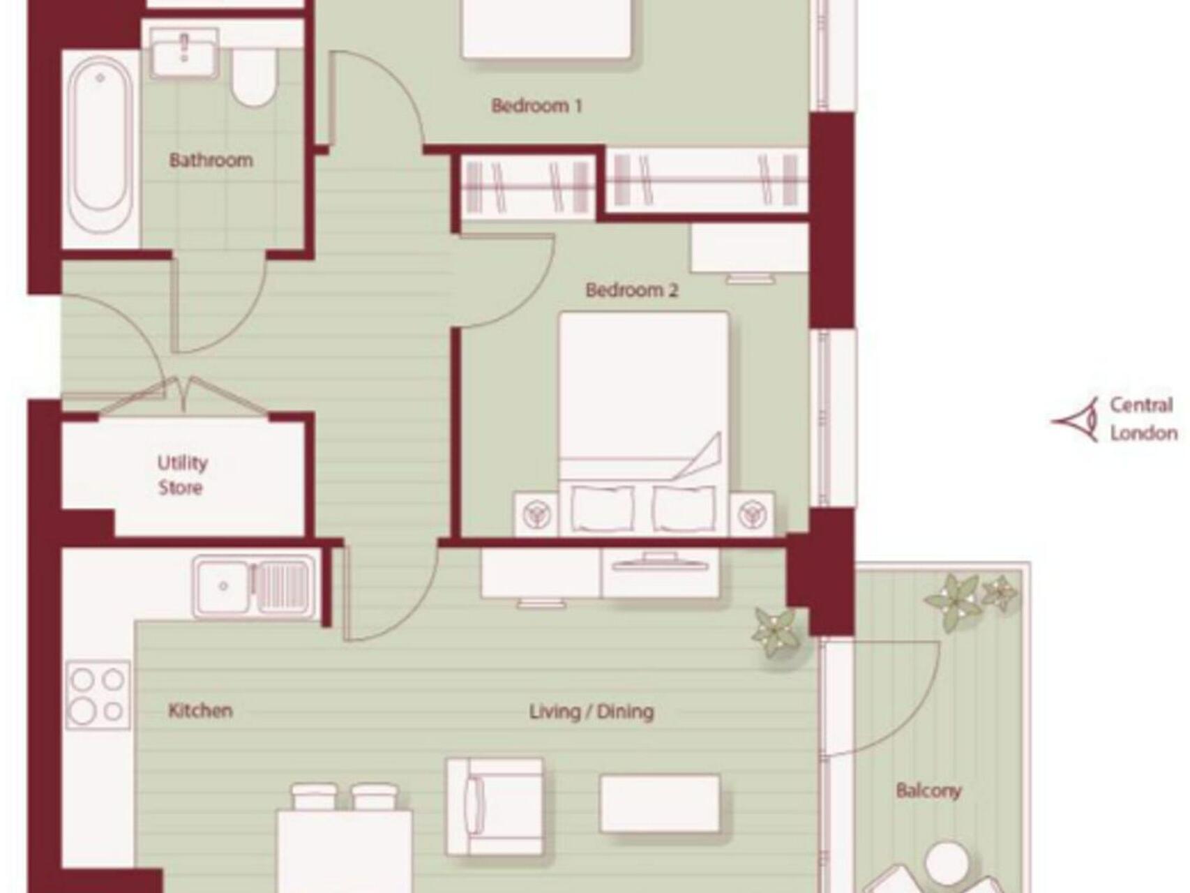
This is a modern two-bedroom flat in East Acton, London. The property is in excellent condition and benefits from its proximity to transportation links and local schools. While the flat has no private garden, it offers modern living in a convenient location. The flat is listed at £590,000, which is slightly below the average price for the area, but the price per square foot is higher than average.
Therefore, we give this property 6 / 10. *Disclaimer: This is our option and does constitute a recommendation or financial advice. Do your own research. *
- Price
- 6
- Condition
- 9
- Location
- 7
- Land
- 3
- Bedrooms
- 2
- Bathrooms
- 2
- Sqft (est)
- 625.00
The heatmap indicates the level of crime in the area. The color of the heatmap indicates the crime severity and recency.
Metrics Year-on-Year
- Average area value
- 602,363.00 £Decreased by 3.66 %
- Est sale value
- 476,875.00 £Increased by 25.49 %
- Average area rental value
- 2,309.00 £/moIncreased by 9.48 %
- Est letting value
- 1,250.00 £/moUnchanged by 0.00 %
- Est rental Yield
- 4.60 %Increased by 13.58 %
- Crime Rate
- 1.00 %Unchanged by 0.00 %
Agent Activity
One Move Group created the listing.
Nearby Schools
| Name | Type | Ofsted | Distance |
|---|---|---|---|
| London Bunka Yochien | Other Independent School | Good | 0.28 KM |
| John Perryn Primary School | Community School | Good | 1.08 KM |
| Derwentwater Primary School | Community School | Good | 1.21 KM |
| Maples Children'S Centre | Children's Centre Linked Site | 1.29 KM | |
| St Vincent'S Catholic Primary School | Voluntary Aided School | Good | 1.34 KM |
Images
Nearby Streets
| Name | Average Price | Average Sqft | Distance |
|---|---|---|---|
| Park View | £ 719,993 | 0 | 0.00 KM |
| Friary Road | £ 0 | 0 | 0.00 KM |
| Heartwood Boulevard | £ 563,375 | 0 | 0.00 KM |
| Canada Road | £ 514,167 | 0 | 0.00 KM |
| A4000 | £ 0 | 0 | 0.00 KM |
Nearby Transport
| Name | NLC | TLC | Distance |
|---|---|---|---|
| Acton Main Line | 3000 | AML | 0.39 KM |
| Acton Central | 1404 | ACC | 1.32 KM |
| Harlesden | 1521 | HDN | 1.96 KM |
| South Acton | 1452 | SAT | 2.36 KM |
| Willesden Junction | 1457 | WIJ | 2.66 KM |
Nearby Listings
| Address | Price | Type | Score | Distance |
|---|---|---|---|---|
| Cecil Road, London, W3 | £ 590,000 | BUY | 6 / 10 | 0.00 KM |
| Horn Lane, Acton | £ 650,000 | BUY | Unknown | 0.04 KM |
| Park View, London | £ 450,000 | BUY | Unknown | 0.04 KM |
| Park View, London | £ 450,000 | BUY | Unknown | 0.04 KM |
| Horn Lane, London | £ 800,000 | BUY | 4 / 10 | 0.06 KM |
Nearby Properties
| Address | Price | Distance |
|---|---|---|
| 8 Cecil Road | £ 312,000 | 0.03 KM |
| 355 Horn Lane | £ 440,000 | 0.04 KM |
| 335 Horn Lane | £ 499,000 | 0.04 KM |
| 359 Horn Lane | £ 89,000 | 0.04 KM |
| 363 Horn Lane | £ 720,000 | 0.04 KM |