ST
Woodside Avenue, London, N12
By Statons New Homes Showcase
£ 1,795,000
Reviews
3 out of 5 stars
Statons New Homes Showcase says ..
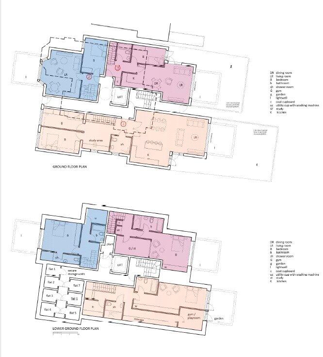
** PLANNING PERMISSION GRANTED FOR A BLOCK OF 6 BRAND NEW APARTMENTS ** Located in a highly sought after location within close proximity of Woodside Park unerground station and North Finchley shopping centre. Planning permsiion was granted in September 2024 (23/3485/FUL) by ...
Property Oracle says ..
Therefore, we give this property 7 / 10. *Disclaimer: This is our option and does constitute a recommendation or financial advice. Do your own research. *
- Price
- 6
- Condition
- 7
- Location
- 8
- Land
- 9
- Bedrooms
- 0
- Bathrooms
- 0
The heatmap indicates the level of crime in the area. The color of the heatmap indicates the crime severity and recency.
Metrics Year-on-Year
- Average area value
- 1,077,389.00 £Increased by 1.83 %
- Average area rental value
- 2,772.00 £/moIncreased by 5.36 %
- Est rental Yield
- 3.09 %Increased by 3.69 %
- Crime Rate
- 4.00 %Unchanged by 0.00 %
from 1,058,005.00 £
from 2,631.00 £/mo
from 2.98 %
from 4.00 %
Agent Activity
Statons New Homes Showcase created the listing.
Nearby Schools
| Name | Type | Ofsted | Distance |
|---|---|---|---|
| Northside Primary School | Community School | Outstanding | 0.30 KM |
| The Holmewood School | Other Independent Special School | Good | 0.41 KM |
| St Michael'S Catholic Grammar School | Voluntary Aided School | Outstanding | 0.43 KM |
| Finchley Catholic High School | Voluntary Aided School | Good | 0.52 KM |
| Woodside School | Other Independent Special School | 0.79 KM |
Images
Nearby Streets
| Name | Average Price | Average Sqft | Distance |
|---|---|---|---|
| Woodside Court | £ 850,000 | 0 | 0.00 KM |
| High Road | £ 0 | 0 | 0.00 KM |
| Coleridge Road | £ 0 | 0 | 0.00 KM |
| Station Approach | £ 0 | 0 | 0.00 KM |
| Castle Mews | £ 0 | 0 | 0.00 KM |
Nearby Transport
| Name | NLC | TLC | Distance |
|---|---|---|---|
| Oakleigh Park | 6020 | OKL | 2.71 KM |
| New Barnet | 6018 | NBA | 3.50 KM |
| New Southgate | 6019 | NSG | 4.22 KM |
| Hadley Wood | 6075 | HDW | 5.62 KM |
| Bowes Park | 6027 | BOP | 6.79 KM |
Nearby Listings
| Address | Price | Type | Score | Distance |
|---|---|---|---|---|
| Woodside Avenue, London, N12 | £ 1,795,000 | BUY | 7 / 10 | 0.00 KM |
| Woodside Avenue, Woodside Park, London, N12 | £ 1,750,000 | BUY | 6 / 10 | 0.00 KM |
| Woodside Avenue, Woodside Park, London, N12 | £ 2,000,000 | BUY | 7 / 10 | 0.00 KM |
| Woodside Avenue, Woodside Park, N12 | £ 1,750,000 | BUY | 7 / 10 | 0.05 KM |
| Woodside Avenue, London, N12 | £ 825,000 | BUY | 7 / 10 | 0.08 KM |
Nearby Properties
| Address | Price | Distance |
|---|---|---|
| 8 Woodside Avenue | £ 1,575,000 | 0.04 KM |
| 18 Woodside Avenue | £ 785,000 | 0.04 KM |
| 16 Woodside Avenue | £ 875,000 | 0.04 KM |
| 62 Woodside Park Road | £ 687,500 | 0.06 KM |
| 56 Woodside Park Road | £ 925,000 | 0.06 KM |