Brassington Street, Clay Cross
MA

Brassington Street, Clay Cross

By Martin & Co

£ 90,000

Reviews

2 out of 5 stars

Martin & Co says ..

PERFECT FIRST HOME ... This property has an enclosed rear GARDEN, modern kitchen and spacious rooms. Easy access to M1 and close to local amenities.

Property Oracle says ..

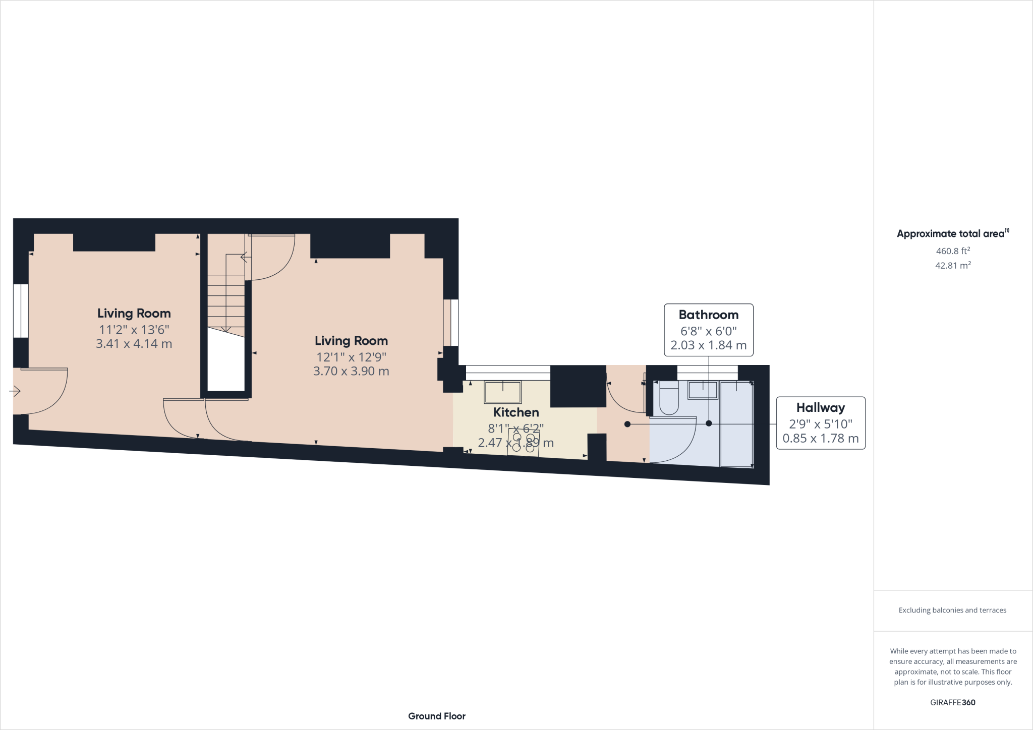
This two-bedroom terraced house located in Clay Cross, Derbyshire, is listed at £90,000. The property benefits from a relatively modern kitchen and bathroom, showing evidence of renovation or recent updates. The interior is presented as clean and unfurnished, showing neutral colour palettes and allowing for personal preferences in décor. The property’s exterior shows a standard, well-maintained terraced house consistent with the neighborhood. The small garden space is a practical feature, ideal for a smaller family or a couple. Nearby listings demonstrate a range of property types and values. However, significant variations in property sizes and types make direct comparisons for price per square foot difficult without precise data for all listings. The location in Clay Cross offers convenient access to transport links and schools, presenting both advantages and disadvantages depending on individual preferences. While not in a highly sought-after location, the property is reasonably priced within the current market context for the area. Potential buyers should research local amenities and transport facilities thoroughly to determine their suitability.

Therefore, we give this property 5 / 10. *Disclaimer: This is our option and does constitute a recommendation or financial advice. Do your own research. *

Price
7
Condition
6
Location
6
Land
4
Bedrooms
2
Bathrooms
1
Sqft (est)
789.75

The heatmap indicates the level of crime in the area. The color of the heatmap indicates the crime severity and recency.

Metrics Year-on-Year

Average area value
207,250.00 £
Decreased by 18.32 %
from 253,731.00 £
Est sale value
143,734.50 £
Decreased by 33.33 %
from 215,601.75 £
Average area rental value
1,073.00 £/mo
Increased by 15.75 %
from 927.00 £/mo
Est letting value
0.00 £/mo
from 0.00 £/mo
Est rental Yield
6.21 %
Increased by 41.78 %
from 4.38 %
Crime Rate
31.00 %
Unchanged by 0.00 %
from 31.00 %

Agent Activity

  • Martin & Co marked this listing as sold.

  • Martin & Co created the listing.

Nearby Schools

NameTypeOfstedDistance
Sharley Park Community Primary SchoolCommunity SchoolGood0.80 KM
Tupton Hall SchoolAcademy Sponsor Led1.35 KM
Tupton Primary And Nursery AcademyAcademy Sponsor Led2.32 KM
Holmgate Primary School And NurseryCommunity SchoolGood2.57 KM
North Wingfield Primary And Nursery AcademyAcademy Converter2.77 KM

Images

CAM02059G0-PR0158... CAM02059G0-PR0158... CAM02059G0-PR0158... CAM02059G0-PR0158... CAM02059G0-PR0158... CAM02059G0-PR0158... CAM02059G0-PR0158... CAM02059G0-PR0158... CAM02059G0-PR0158... CAM02059G0-PR0158... CAM02059G0-PR0158... CAM02059G0-PR0158... CAM02059G0-PR0158... CAM02059G0-PR0158... CAM02059G0-PR0078...

Nearby Streets

NameAverage PriceAverage SqftDistance
Egstow Place £ 000.00 KM
Trelawney Road £ 000.00 KM
St. Marys Rise £ 000.00 KM
Pease Close £ 225,00000.00 KM
Brassington Lane £ 000.00 KM

Nearby Transport

NameNLCTLCDistance
Chesterfield6615CHD7.72 KM
Alfreton1805ALF8.79 KM

Nearby Listings

AddressPriceTypeScoreDistance
Brassington Street, Clay Cross £ 90,000BUY5 / 100.00 KM
Brassington Street, Clay Cross £ 115,000BUYUnknown0.00 KM
Brassington Street, Clay Cross, Chesterfield, Derbyshire, S45 9NH £ 115,000BUY5 / 100.01 KM
Brassington Street, Clay Cross, Chesterfield £ 115,000BUY6 / 100.02 KM
Brassington Street, Clay Cross £ 220,000BUY6 / 100.04 KM

Nearby Properties

AddressPriceDistance
38a Brassington Street £ 32,5000.00 KM
48 Brassington Street £ 89,0000.00 KM
38b Brassington Street £ 42,5000.00 KM
49 Brassington Street £ 75,0000.00 KM
11 Brassington Street £ 101,0000.00 KM