OA
Callowbrook Lane, Rednal, Birmingham, B45
By Oakmans Estate Agents
£ 300,000
Reviews
3 out of 5 stars
Oakmans Estate Agents says ..
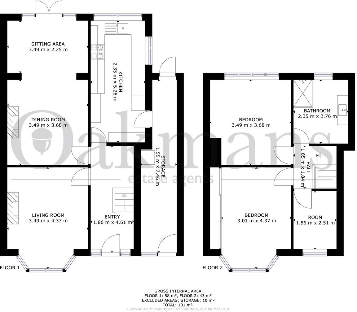
**Beautifully Presented Three Bedroom Extended Semi** Viewing is highly recommended on this very well presented and extended semi detached property in an excellent location within close proximity to public transport links, shops and schools and comprises in brief; porch, entrance hallw...
Property Oracle says ..
Therefore, we give this property 7 / 10. *Disclaimer: This is our option and does constitute a recommendation or financial advice. Do your own research. *
- Price
- 6
- Condition
- 8
- Location
- 7
- Land
- 7
- Bedrooms
- 3
- Bathrooms
- 1
- Sqft (est)
- 1,011.59
The heatmap indicates the level of crime in the area. The color of the heatmap indicates the crime severity and recency.
Metrics Year-on-Year
- Average area value
- 270,333.00 £Increased by 11.81 %
- Est sale value
- 260,990.22 £Increased by 9.32 %
- Average area rental value
- 725.00 £/moDecreased by 9.38 %
- Est letting value
- 0.00 £/mo
- Est rental Yield
- 3.22 %Decreased by 18.89 %
- Crime Rate
- 3.00 %Unchanged by 0.00 %
from 241,786.00 £
from 238,735.24 £
from 800.00 £/mo
from 0.00 £/mo
from 3.97 %
from 3.00 %
Agent Activity
Oakmans Estate Agents created the listing.
Nearby Schools
| Name | Type | Ofsted | Distance |
|---|---|---|---|
| Beaconside Primary And Nursery School | Community School | Good | 0.67 KM |
| Reaside Academy | Academy Sponsor Led | Good | 0.92 KM |
| St James Catholic Primary School | Academy Converter | 1.02 KM | |
| King Edward Vi Balaam Wood Academy | Academy Sponsor Led | 1.07 KM | |
| Holly Hill Methodist Cofe Infant School | Voluntary Aided School | Good | 1.16 KM |
Images
Nearby Streets
| Name | Average Price | Average Sqft | Distance |
|---|---|---|---|
| Brook Road | £ 0 | 0 | 0.00 KM |
| Heron Way | £ 0 | 0 | 0.00 KM |
| St Chad's Road | £ 144,500 | 0 | 0.00 KM |
| The Avenue | £ 226,667 | 0 | 0.00 KM |
| Grange Crescent | £ 335,000 | 0 | 0.00 KM |
Nearby Transport
| Name | NLC | TLC | Distance |
|---|---|---|---|
| Longbridge | 1110 | LOB | 4.36 KM |
| Barnt Green | 1096 | BTG | 4.89 KM |
| Northfield | 1111 | NFD | 6.24 KM |
| Alvechurch | 1198 | ALV | 7.99 KM |
| Bromsgrove | 4715 | BMV | 8.60 KM |
Nearby Listings
| Address | Price | Type | Score | Distance |
|---|---|---|---|---|
| Callowbrook Lane, Rednal, Birmingham, B45 | £ 300,000 | BUY | 7 / 10 | 0.00 KM |
| Callowbrook Lane, Rubery, Rednal, Birmingham, B45 | £ 300,000 | BUY | 7 / 10 | 0.03 KM |
| Callowbrook Lane, Rubery, Rednal, Birmingham, B45 | £ 300,000 | BUY | 7 / 10 | 0.03 KM |
| Callowbrook Lane, Rubery, Rednal, Birmingham, B45 | £ 135,000 | BUY | 5 / 10 | 0.04 KM |
| Callowbrook Lane, Rubery, Rednal, Birmingham, B45 | £ 225,000 | BUY | 6 / 10 | 0.12 KM |
Nearby Properties
| Address | Price | Distance |
|---|---|---|
| 133 Callowbrook Lane | £ 210,000 | 0.01 KM |
| 137 Callowbrook Lane | £ 105,000 | 0.01 KM |
| 125 Callowbrook Lane | £ 153,500 | 0.01 KM |
| 135 Callowbrook Lane | £ 176,000 | 0.01 KM |
| 2 Windmill Avenue | £ 360,000 | 0.09 KM |