Britannia Square Worcester, Worcestershire, WR1 3DG
By Fine & Country
£ 1,400,000
Reviews
3 out of 5 stars
Fine & Country says ..
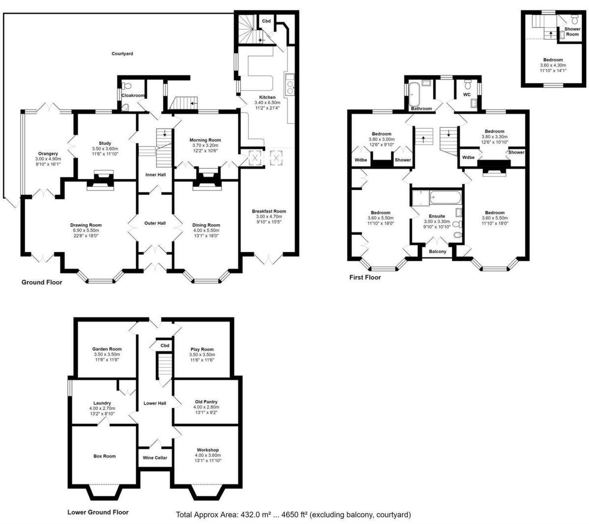
Undoubtedly one of Worcester’s most distinguished residences, this exquisite Grade II Listed Georgian family home extends to some 4,650 sq ft
Property Oracle says ..
This is a substantial detached property located in the desirable Britannia Square area of Worcester. The house boasts five bedrooms and three bathrooms, making it suitable for a large family. While the property is generally well-maintained, some areas would benefit from modernisation to suit contemporary tastes. The property features a garden and ample parking. The location is convenient for accessing local schools, transportation, and amenities. The asking price is high for the area but reflects the property’s size and prime location.
Therefore, we give this property 7 / 10. *Disclaimer: This is our option and does constitute a recommendation or financial advice. Do your own research. *
- Price
- 6
- Condition
- 7
- Location
- 9
- Land
- 7
- Bedrooms
- 5
- Bathrooms
- 3
The heatmap indicates the level of crime in the area. The color of the heatmap indicates the crime severity and recency.
Metrics Year-on-Year
- Average area value
- 306,076.00 £Increased by 13.87 %
- Average area rental value
- 1,012.00 £/moIncreased by 13.33 %
- Est rental Yield
- 3.97 %Decreased by 0.50 %
- Crime Rate
- 7.00 %Unchanged by 0.00 %
Agent Activity
Fine & Country created the listing.
Nearby Schools
| Name | Type | Ofsted | Distance |
|---|---|---|---|
| Royal Grammar School Worcester | Other Independent School | 0.20 KM | |
| St George'S Catholic Primary School | Voluntary Aided School | Good | 0.47 KM |
| Riversides School | Academy Special Sponsor Led | Good | 0.64 KM |
| St George'S Cofe Primary School | Voluntary Aided School | Requires improvement | 0.66 KM |
| Bishop Perowne Cofe College | Academy Converter | Good | 1.10 KM |
Images
Nearby Streets
| Name | Average Price | Average Sqft | Distance |
|---|---|---|---|
| Hebb Street | £ 225,000 | 0 | 0.00 KM |
| Mc Naught Place | £ 0 | 0 | 0.00 KM |
| Netherton Court | £ 0 | 0 | 0.00 KM |
| Langdale Road | £ 476,667 | 0 | 0.00 KM |
| Hop Market | £ 0 | 0 | 0.00 KM |
Nearby Transport
| Name | NLC | TLC | Distance |
|---|---|---|---|
| Worcester Foregate Street | 4893 | WOF | 0.58 KM |
| Worcester Shrub Hill | 4891 | WOS | 1.81 KM |
| Worcestershire Parkway | 6580 | WOP | 8.64 KM |
Nearby Listings
| Address | Price | Type | Score | Distance |
|---|---|---|---|---|
| Britannia Square Worcester, Worcestershire, WR1 3DG | £ 1,400,000 | BUY | 7 / 10 | 0.00 KM |
| Britannia Square, Worcester | £ 1,500,000 | BUY | 9 / 10 | 0.08 KM |
| 42 Britannia Road, Worcester | £ 1,480,000 | BUY | 5 / 10 | 0.13 KM |
| 17 Britannia Square, Worcester. WR1 3DG | £ 595,000 | BUY | 7 / 10 | 0.15 KM |
| Loves Grove, Worcester, Worcestershire, WR1 | £ 700,000 | BUY | 8 / 10 | 0.15 KM |
Nearby Properties
| Address | Price | Distance |
|---|---|---|
| 51 Britannia Square | £ 815,000 | 0.06 KM |
| 52a Britannia Square | £ 125,000 | 0.07 KM |
| 28a The Tything | £ 90,000 | 0.09 KM |
| 41 Back Lane South | £ 134,000 | 0.14 KM |
| 7 Back Lane South | £ 110,000 | 0.14 KM |