SE
The Larches, Horsell, Surrey, GU21
By Seymours Estate Agents
£ 525,000
Seymours Estate Agents says ..
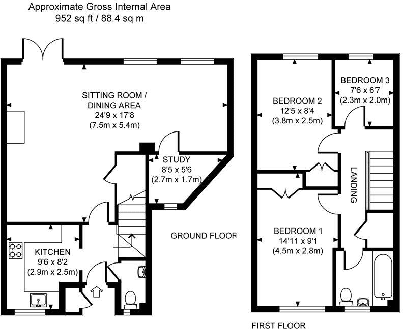
Viewings from Saturday 22nd March. Located on a quiet cul-de-sac within walking distance of both Woking and Horsell Village centres this three bedroom end of terrace property has been extended to provide well laid out family accommodation. Having been updated throughout th...
- Bedrooms
- 3
- Bathrooms
- 1
The heatmap indicates the level of crime in the area. The color of the heatmap indicates the crime severity and recency.
Metrics Year-on-Year
- Average area value
- 661,667.00 £Decreased by 14.84 %
- Average area rental value
- 2,961.00 £/moIncreased by 33.56 %
- Est rental Yield
- 5.37 %Increased by 57.02 %
- Crime Rate
- 3.00 %Unchanged by 0.00 %
from 776,931.00 £
from 2,217.00 £/mo
from 3.42 %
from 3.00 %
Agent Activity
Seymours Estate Agents created the listing.
Nearby Schools
| Name | Type | Ofsted | Distance |
|---|---|---|---|
| Woking South Sure Start Children'S Centre | Children's Centre Linked Site | 0.66 KM | |
| St Andrew'S Woking School Trust | Other Independent School | 0.73 KM | |
| Horsell Village School & Sure Start Children'S Centre | Children's Centre | 0.98 KM | |
| Woking High School | Academy Converter | Good | 1.01 KM |
| The Horsell Village School | Academy Converter | 1.05 KM |
Images
Nearby Streets
| Name | Average Price | Average Sqft | Distance |
|---|---|---|---|
| Fenn's Way | £ 735,000 | 0 | 0.00 KM |
| Churchfields | £ 1,000,000 | 0 | 0.00 KM |
| Forge End | £ 0 | 0 | 0.00 KM |
| Grange Road | £ 0 | 0 | 0.00 KM |
| Percy Street | £ 0 | 0 | 0.00 KM |
Nearby Transport
| Name | NLC | TLC | Distance |
|---|---|---|---|
| Woking | 5685 | WOK | 0.90 KM |
| Worplesdon | 5686 | WPL | 4.53 KM |
| West Byfleet | 5684 | WBY | 6.51 KM |
| Longcross | 5674 | LNG | 7.64 KM |
| Brookwood | 5687 | BKO | 8.43 KM |
Nearby Listings
| Address | Price | Type | Score | Distance |
|---|---|---|---|---|
| The Larches, Horsell, Surrey, GU21 | £ 525,000 | BUY | Unknown | 0.00 KM |
| Thurlton Court, Horsell, Woking, Surrey, GU21 | £ 475,000 | BUY | 6 / 10 | 0.08 KM |
| Broomhall Lane, Horsell, Surrey, GU21 | £ 550,000 | BUY | 7 / 10 | 0.09 KM |
| Thurlton Court, Woking | £ 450,000 | BUY | Unknown | 0.11 KM |
| Laleham Court, Horsell, Woking, Surrey, GU21 | £ 320,000 | BUY | 5 / 10 | 0.13 KM |
Nearby Properties
| Address | Price | Distance |
|---|---|---|
| 13 The Larches | £ 499,950 | 0.01 KM |
| 10 The Larches | £ 450,000 | 0.01 KM |
| 8 The Larches | £ 535,000 | 0.01 KM |
| 11 The Larches | £ 480,000 | 0.01 KM |
| 6 The Larches | £ 412,000 | 0.01 KM |