Yopa says ..
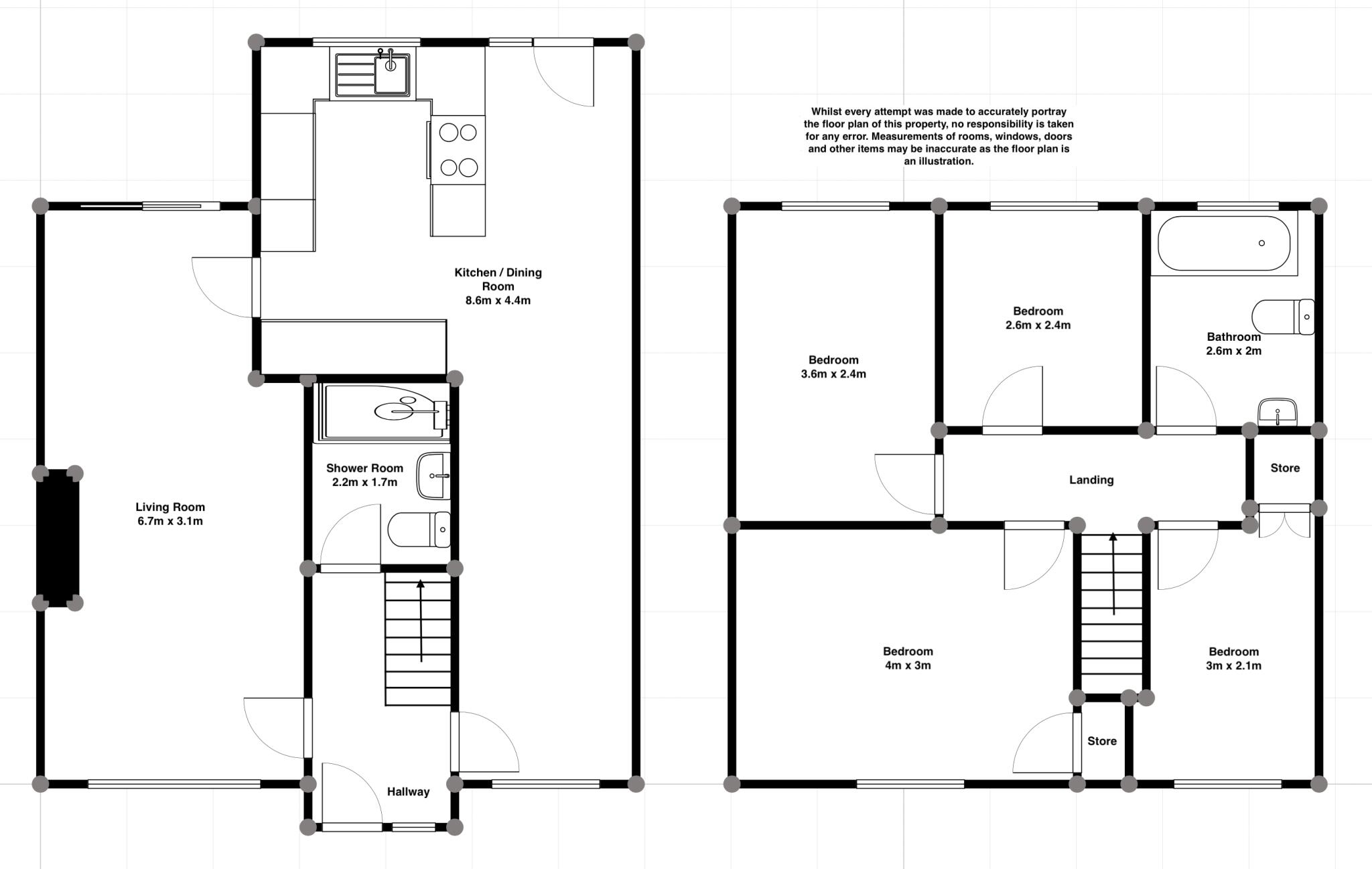
YOPA is proud to present this modern, stylish & extended four bedroom semi detached property in the increasingly sought after locality of Malpas. With a large drive, open plan kitchen diner, two bathrooms and solar pv panels, enquire early to avoid disappointment. All offers & interest are invited.
Property Oracle says ..
This is a 4-bedroom semi-detached property in Malpas, Newport. The property benefits from a modern kitchen and bathroom, and a good-sized garden. While generally in good order, some areas could benefit from modernisation. The property is located within a residential area, close to local schools and transportation links. The asking price of £300,000 seems reasonable for the location and property type.
Therefore, we give this property 6 / 10. *Disclaimer: This is our option and does constitute a recommendation or financial advice. Do your own research. *
- Price
- 7
- Condition
- 6
- Location
- 7
- Land
- 7
- Bedrooms
- 4
- Bathrooms
- 2
- Sqft (est)
- 358.44
The heatmap indicates the level of crime in the area. The color of the heatmap indicates the crime severity and recency.
Metrics Year-on-Year
- Average area value
- 360,833.00 £Decreased by 13.57 %
- Est sale value
- 125,812.44 £Decreased by 9.07 %
- Average area rental value
- 1,178.00 £/moIncreased by 8.17 %
- Est letting value
- 358.44 £/moUnchanged by 0.00 %
- Est rental Yield
- 3.92 %Increased by 25.24 %
- Crime Rate
- 7.00 %Unchanged by 0.00 %
Agent Activity
Yopa created the listing.
Nearby Schools
| Name | Type | Ofsted | Distance |
|---|---|---|---|
| Malpas Park Primary School | Welsh Establishment | 0.58 KM | |
| Malpas Court Primary School | Welsh Establishment | 1.19 KM | |
| Rougemont School | Welsh Establishment | 1.39 KM | |
| Crindau Junior & Infant School | Welsh Establishment | 1.83 KM | |
| Newport High School | Welsh Establishment | 2.00 KM |
Images
Nearby Streets
| Name | Average Price | Average Sqft | Distance |
|---|---|---|---|
| Cherry Tree Close | £ 217,500 | 0 | 0.00 KM |
| The Coppins | £ 0 | 0 | 0.00 KM |
| Elm Grove | £ 270,000 | 0 | 0.00 KM |
| The Spinney | £ 245,000 | 0 | 0.00 KM |
| Alder Grove | £ 0 | 0 | 0.00 KM |
Nearby Transport
| Name | NLC | TLC | Distance |
|---|---|---|---|
| Newport (South Wales) | 3674 | NWP | 2.88 KM |
| Cwmbran | 3738 | CWM | 4.93 KM |
| Pye Corner | 1663 | PYE | 5.55 KM |
| Rogerstone | 9921 | ROR | 7.46 KM |
| Pontypool And New Inn | 3744 | PPL | 9.37 KM |
Nearby Listings
| Address | Price | Type | Score | Distance |
|---|---|---|---|---|
| Malpas, Malpas, Newport, NP20 | £ 300,000 | BUY | 6 / 10 | 0.00 KM |
| Rowan Way, Newport | £ 250,000 | BUY | 6 / 10 | 0.11 KM |
| Rowan Way, Newport, NP20 | £ 280,000 | BUY | 6 / 10 | 0.15 KM |
| Birchgrove Close, Newport | £ 230,000 | BUY | 6 / 10 | 0.16 KM |
| Birchgrove Close, Newport | £ 230,000 | BUY | 7 / 10 | 0.16 KM |
Nearby Properties
| Address | Price | Distance |
|---|---|---|
| 75 Rowan Way | £ 110,000 | 0.01 KM |
| 106 Rowan Way | £ 220,000 | 0.01 KM |
| 65 Rowan Way | £ 153,000 | 0.01 KM |
| 45 Rowan Way | £ 152,000 | 0.01 KM |
| 71 Rowan Way | £ 150,000 | 0.01 KM |