Farm Road, Little Park, Andover, Hampshire, SP11
By Woolley & Wallis
£ 695,000
Reviews
3 out of 5 stars
Woolley & Wallis says ..
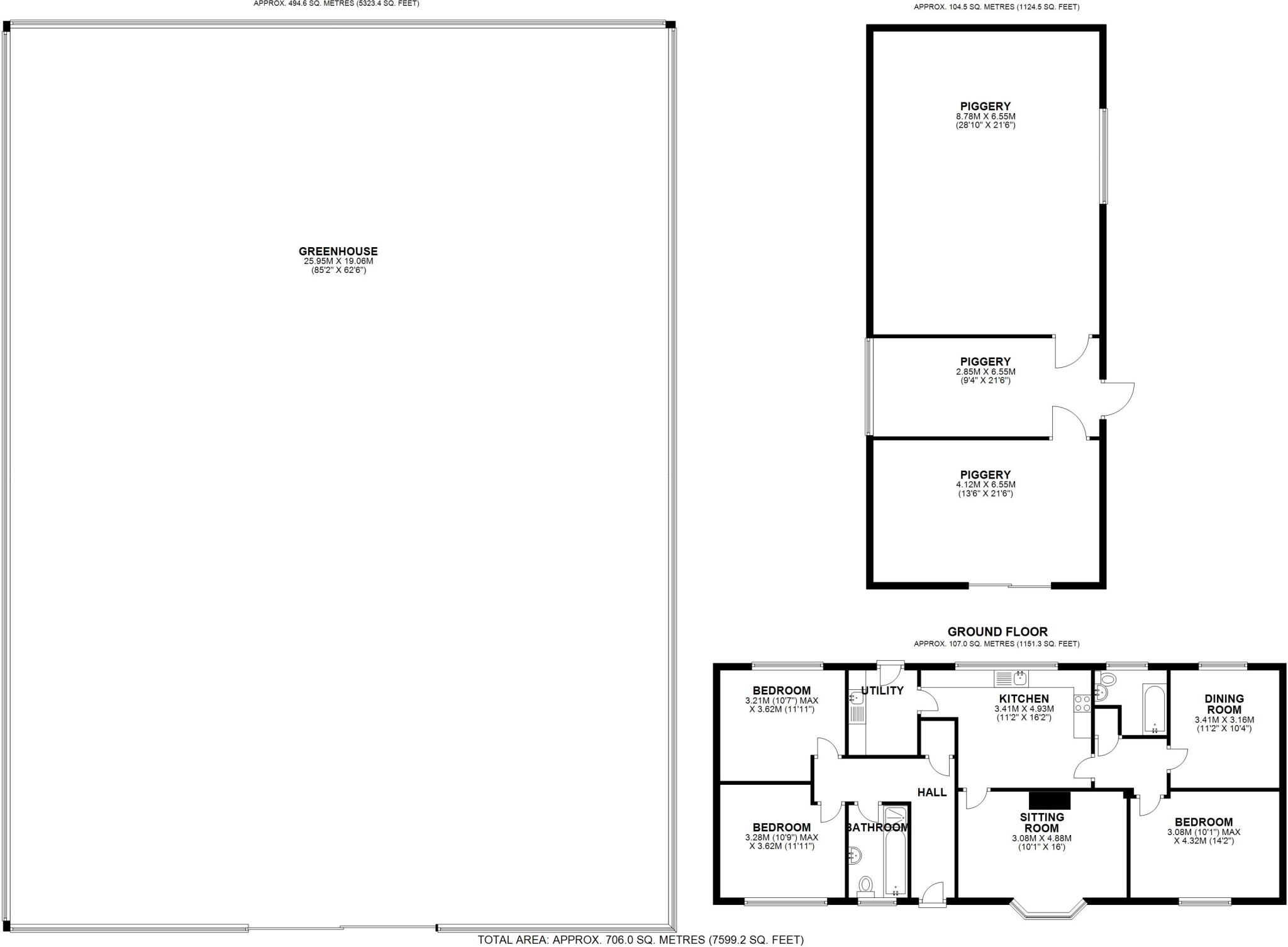
A delightful small holding with approx 10 acres, a detached bungalow, two large outbuildings and fantastic transport links situated just outside Abbotts Ann. The property is offered on a chain free basis.
Property Oracle says ..
This property is located in Little Park, Andover, Hampshire, and benefits from a large plot size of 7,599.32 sqft. The property itself appears to be a 3-bedroom, 2-bathroom bungalow in need of some modernisation. The location is relatively rural, with the nearest train station in Andover being 3.06km away. Several schools are within a 2km radius, including Portway Infant and Junior Schools (both rated Outstanding or Good by Ofsted). The asking price of £695,000 seems high considering the condition of the property and the lack of comparable recent sales data in the immediate vicinity. However, the large plot size and potential for development or extension could justify a higher price. More information on comparable properties and the condition of the property would be needed for a more precise valuation.
Therefore, we give this property 6 / 10. *Disclaimer: This is our option and does constitute a recommendation or financial advice. Do your own research. *
- Price
- 5
- Condition
- 6
- Location
- 7
- Land
- 9
- Bedrooms
- 3
- Bathrooms
- 2
- Sqft (est)
- 7,304.07
- Lot (est)
- 7,599.32
The heatmap indicates the level of crime in the area. The color of the heatmap indicates the crime severity and recency.
Metrics Year-on-Year
- Average area value
- 397,143.00 £Increased by 19.84 %
- Est sale value
- 2,841,283.23 £Increased by 89.76 %
- Average area rental value
- 950.00 £/moDecreased by 13.08 %
- Est letting value
- 0.00 £/mo
- Est rental Yield
- 2.87 %Decreased by 27.53 %
- Crime Rate
- 0.00 %
Agent Activity
Woolley & Wallis marked this listing as sold.
Woolley & Wallis created the listing.
Nearby Schools
| Name | Type | Ofsted | Distance |
|---|---|---|---|
| Portway Junior School | Community School | Good | 1.55 KM |
| Portway Infant School | Community School | Outstanding | 1.55 KM |
| John Hanson Community School | Community School | Good | 1.59 KM |
| Balksbury Junior School | Community School | Good | 1.75 KM |
| Balksbury Infant School | Community School | Outstanding | 1.76 KM |
Images
Nearby Streets
| Name | Average Price | Average Sqft | Distance |
|---|---|---|---|
| Farm Road | £ 0 | 0 | 0.00 KM |
| Kingsmead | £ 0 | 0 | 0.00 KM |
| Mill Lane | £ 0 | 0 | 0.00 KM |
| Beech Walk | £ 0 | 0 | 0.00 KM |
| Pine Walk | £ 230,000 | 0 | 0.00 KM |
Nearby Transport
| Name | NLC | TLC | Distance |
|---|---|---|---|
| Andover | 5510 | ADV | 3.06 KM |
Nearby Listings
| Address | Price | Type | Score | Distance |
|---|---|---|---|---|
| Farm Road, Little Park, Andover, Hampshire, SP11 | £ 695,000 | BUY | 6 / 10 | 0.00 KM |
| Farm Road, Little Park, Andover | £ 475,000 | BUY | Unknown | 0.47 KM |
| Farm Road, Little Park, Andover | £ 600,000 | BUY | Unknown | 0.51 KM |
| Cattle Lane, Abbotts Ann, Andover, Hampshire, SP11 | £ 750,000 | BUY | 8 / 10 | 0.64 KM |
| Andover | £ 550,000 | BUY | Unknown | 0.83 KM |
Nearby Properties
| Address | Price | Distance |
|---|---|---|
| 5 Farm Road | £ 483,500 | 0.49 KM |
| 4 Farm Road | £ 760,000 | 0.49 KM |
| 9 Farm Road | £ 285,000 | 0.49 KM |
| 6 Farm Road | £ 552,500 | 0.49 KM |
| Marbury | £ 1,000,000 | 0.82 KM |