Harper & Woods says ..
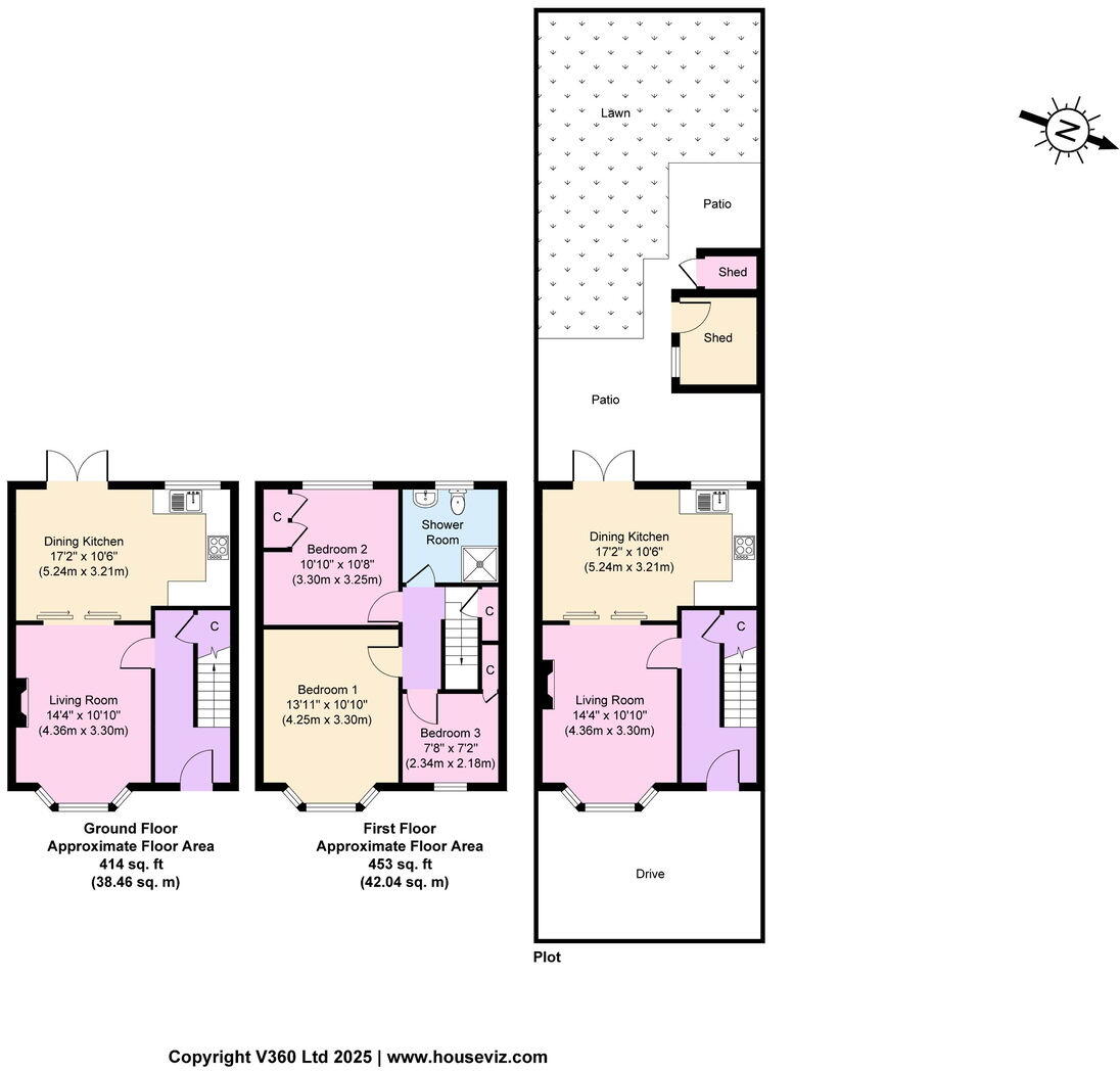
A beautiful mid row home! This three bedroom property with double driveway and spacious, sunny rear garden boasts an open plan dining kitchen and stylish shower room, it would be a perfect home for a family to make memories in! Set in a handy location, near to the services and amenities in Lis...
Property Oracle says ..
This three-bedroom terraced house is located on Poulton Road in Wallasey, Wirral. The property benefits from a modern kitchen and bathroom, and a well-maintained garden. While the square footage is not provided, the list price of £175,000 is slightly above the average price for the area (£115,253), but comparable to other similar properties in the vicinity. The proximity to schools and transportation links adds to its appeal. The overall condition of the property appears to be good, based on the images provided.
Therefore, we give this property 7 / 10. *Disclaimer: This is our option and does constitute a recommendation or financial advice. Do your own research. *
- Price
- 7
- Condition
- 8
- Location
- 7
- Land
- 7
- Bedrooms
- 3
- Bathrooms
- 1
The heatmap indicates the level of crime in the area. The color of the heatmap indicates the crime severity and recency.
Metrics Year-on-Year
- Average area value
- 126,786.00 £Decreased by 3.51 %
- Average area rental value
- 900.00 £/moIncreased by 5.02 %
- Est rental Yield
- 8.52 %Increased by 8.81 %
- Crime Rate
- 2.00 %Unchanged by 0.00 %
Agent Activity
Harper & Woods created the listing.
Nearby Schools
| Name | Type | Ofsted | Distance |
|---|---|---|---|
| Park Primary School | Community School | Good | 0.59 KM |
| St Alban'S Catholic Primary School | Voluntary Aided School | Good | 0.78 KM |
| Somerville Nursery School | Local Authority Nursery School | Good | 0.92 KM |
| Somerville Primary School | Community School | Good | 1.13 KM |
| Kingsway Primary School | Community School | Good | 1.27 KM |
Images
Nearby Streets
| Name | Average Price | Average Sqft | Distance |
|---|---|---|---|
| Deveraux Drive | £ 0 | 0 | 0.00 KM |
| Alderley Road | £ 0 | 0 | 0.00 KM |
| School Close | £ 295,000 | 0 | 0.00 KM |
| Wellesley Road | £ 205,000 | 0 | 0.00 KM |
| Beechcroft Road | £ 0 | 0 | 0.00 KM |
Nearby Transport
| Name | NLC | TLC | Distance |
|---|---|---|---|
| Birkenhead Park | 2220 | BKP | 1.68 KM |
| Birkenhead North | 2145 | BKN | 1.86 KM |
| New Brighton | 2152 | NBN | 2.88 KM |
| Conway Park | 3624 | CNP | 3.03 KM |
| Wallasey Village | 2265 | WLV | 3.17 KM |
Nearby Listings
| Address | Price | Type | Score | Distance |
|---|---|---|---|---|
| Poulton Road, Wallasey | £ 175,000 | BUY | 7 / 10 | 0.00 KM |
| Poulton Road, Wallasey | £ 189,995 | BUY | 7 / 10 | 0.00 KM |
| Dale Hey, Wallasey, Wirral | £ 180,000 | BUY | 6 / 10 | 0.03 KM |
| Poulton Road, Wallasey, Wirral | £ 150,000 | BUY | 6 / 10 | 0.07 KM |
| Gorsey Lane, Wallasey, Wirral | £ 170,000 | BUY | 7 / 10 | 0.12 KM |
Nearby Properties
| Address | Price | Distance |
|---|---|---|
| 15 Dale Hey | £ 42,500 | 0.04 KM |
| 21 Dale Hey | £ 77,500 | 0.04 KM |
| 8 Dale Hey | £ 95,250 | 0.04 KM |
| 10 Dale Hey | £ 102,000 | 0.04 KM |
| 7 Dale Hey | £ 40,000 | 0.04 KM |