Winkworth says ..
Ground floor apartment close to Beckenham Junction & New Beckenham This well-presented one-bedroom ground floor flat is ideally situated between New Beckenham and Beckenham Junction stations, offering excellent transport links and easy access to Beckenham High Street and Beckenham ...
Property Oracle says ..
Therefore, we give this property 5 / 10. *Disclaimer: This is our option and does constitute a recommendation or financial advice. Do your own research. *
- Price
- 4
- Condition
- 4
- Location
- 7
- Land
- 6
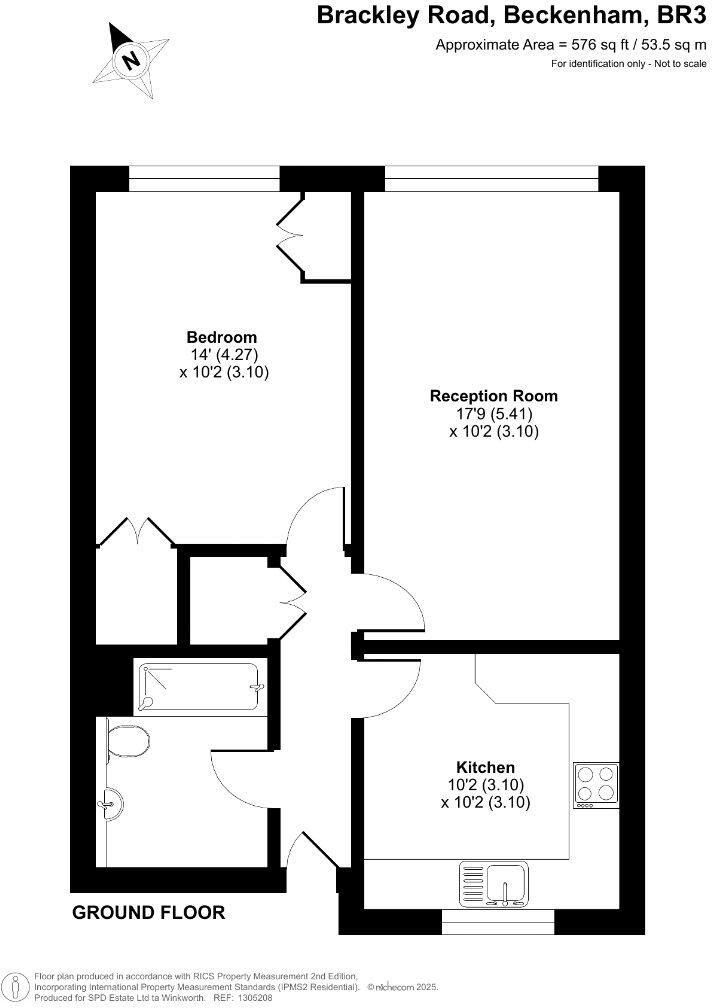
- Bedrooms
- 1
- Bathrooms
- 1
- Sqft (est)
- 427.74
The heatmap indicates the level of crime in the area. The color of the heatmap indicates the crime severity and recency.
Metrics Year-on-Year
- Average area value
- 440,454.00 £Decreased by 13.97 %
- Est sale value
- 227,985.42 £Increased by 14.62 %
- Average area rental value
- 1,581.00 £/moDecreased by 15.18 %
- Est letting value
- 427.74 £/moUnchanged by 0.00 %
- Est rental Yield
- 4.31 %Decreased by 1.37 %
- Crime Rate
- 3.00 %Unchanged by 0.00 %
from 511,955.00 £
from 198,899.10 £
from 1,864.00 £/mo
from 427.74 £/mo
from 4.37 %
from 3.00 %
Agent Activity
Winkworth created the listing.
Nearby Schools
| Name | Type | Ofsted | Distance |
|---|---|---|---|
| Worsley Bridge Primary School | Academy Sponsor Led | Good | 0.11 KM |
| Harris Primary Academy Beckenham Green | Academy Converter | 0.84 KM | |
| Sedgehill Academy | Academy Sponsor Led | 1.12 KM | |
| Watergate School | Foundation Special School | Outstanding | 1.25 KM |
| Kings London | Other Independent School | Good | 1.28 KM |
Images
Nearby Streets
| Name | Average Price | Average Sqft | Distance |
|---|---|---|---|
| Trafford Way | £ 0 | 0 | 0.00 KM |
| Adelaide Court | £ 250,000 | 0 | 0.00 KM |
| Maywood Close | £ 1,100,000 | 0 | 0.00 KM |
| Queen's Court | £ 275,000 | 0 | 0.00 KM |
| Pool Close | £ 0 | 0 | 0.00 KM |
Nearby Transport
| Name | NLC | TLC | Distance |
|---|---|---|---|
| Beckenham Junction | 5046 | BKJ | 0.49 KM |
| New Beckenham | 5058 | NBC | 0.91 KM |
| Lower Sydenham | 5053 | LSY | 1.25 KM |
| Beckenham Hill | 5076 | BEC | 1.61 KM |
| Clock House | 5048 | CLK | 1.67 KM |
Nearby Listings
| Address | Price | Type | Score | Distance |
|---|---|---|---|---|
| Brackley Road, Beckenham, BR3 | £ 300,000 | BUY | 5 / 10 | 0.00 KM |
| Brackley Road, Beckenham, Kent | £ 325,000 | BUY | 6 / 10 | 0.06 KM |
| Abbey Park, Beckenham, BR3 | £ 375,000 | BUY | 7 / 10 | 0.06 KM |
| Abbey Park, Beckenham | £ 320,000 | BUY | 7 / 10 | 0.09 KM |
| 15 Brackley Road, Beckenham, BR3 | £ 320,000 | BUY | 6 / 10 | 0.12 KM |
Nearby Properties
| Address | Price | Distance |
|---|---|---|
| 294 Worsley Bridge Road | £ 491,000 | 0.16 KM |
| 290 Worsley Bridge Road | £ 830,000 | 0.16 KM |
| 33 Brackley Road | £ 625,000 | 0.17 KM |
| 39 Brackley Road | £ 506,000 | 0.17 KM |
| 37 Brackley Road | £ 625,000 | 0.17 KM |