109 Wilford Crescent East, Nottingham NG2 2ED
By SDL Property Auctions
£ 160,000
Reviews
2 out of 5 stars
SDL Property Auctions says ..
For sale on 31 July 2025 Our national property auction will be broadcast online with live auctioneers. To bid by proxy, online, or by phone, please submit your registration form no later than 5pm the day before the auction. The auction will commence at 09:00.
Property Oracle says ..
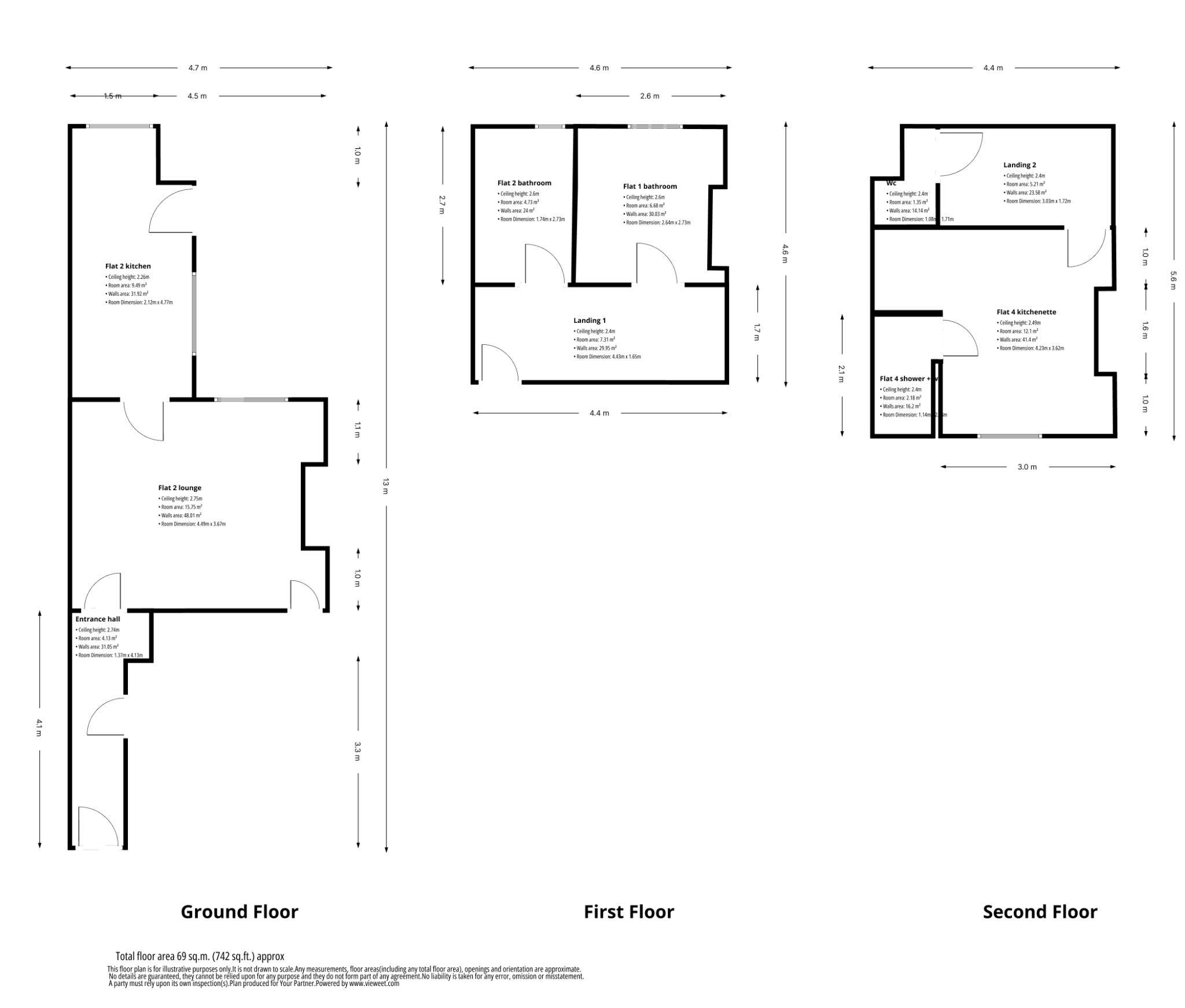
The property is a terraced house located in Nottingham, close to local schools and transport links. The property is in need of renovation. The list price is reasonable, potentially offering an opportunity for value appreciation through renovation.
Therefore, we give this property 5 / 10. *Disclaimer: This is our option and does constitute a recommendation or financial advice. Do your own research. *
- Price
- 7
- Condition
- 3
- Location
- 7
- Land
- 4
- Bedrooms
- 4
- Bathrooms
- 0
The heatmap indicates the level of crime in the area. The color of the heatmap indicates the crime severity and recency.
Metrics Year-on-Year
- Average area value
- 185,000.00 £Decreased by 7.65 %
- Average area rental value
- 1,073.00 £/moDecreased by 6.12 %
- Est rental Yield
- 6.96 %Increased by 1.61 %
- Crime Rate
- 4.00 %Unchanged by 0.00 %
Agent Activity
SDL Property Auctions created the listing.
Nearby Schools
| Name | Type | Ofsted | Distance |
|---|---|---|---|
| Greenfields Community School | Community School | Good | 0.24 KM |
| Meadows Sure Start Children'S Centre | Children's Centre | 0.35 KM | |
| Clayfield House | Secure Units | 0.87 KM | |
| Welbeck Primary School | Community School | Outstanding | 1.03 KM |
| The Nottingham Emmanuel School | Academy Converter | Good | 1.11 KM |
Images
Nearby Streets
| Name | Average Price | Average Sqft | Distance |
|---|---|---|---|
| Measham Close | £ 0 | 0 | 0.00 KM |
| Radcliffe Street Court 2 | £ 0 | 0 | 0.00 KM |
| Brookfield Court | £ 180,000 | 0 | 0.00 KM |
| Victoria Embankment | £ 0 | 0 | 0.00 KM |
| Welbeck Road | £ 0 | 0 | 0.00 KM |
Nearby Transport
| Name | NLC | TLC | Distance |
|---|---|---|---|
| Nottingham | 1826 | NOT | 0.99 KM |
| Beeston | 1625 | BEE | 7.39 KM |
| Netherfield | 6241 | NET | 7.46 KM |
| Carlton | 6201 | CTO | 7.73 KM |
| Bulwell | 1865 | BLW | 8.96 KM |
Nearby Listings
| Address | Price | Type | Score | Distance |
|---|---|---|---|---|
| 109 Wilford Crescent East, Nottingham NG2 2ED | £ 160,000 | BUY | 5 / 10 | 0.00 KM |
| Wilford Crescent East, The Meadows, Nottinghamshire, NG2 2ED | £ 220,000 | BUY | 5 / 10 | 0.03 KM |
| Lamcote Grove, Nottingham | £ 180,000 | BUY | 5 / 10 | 0.05 KM |
| Wilford Crescent East, The Meadows, Nottinghamshire NG2 2ED | £ 230,000 | BUY | 7 / 10 | 0.06 KM |
| Wilford Crescent East, Nottingham | £ 220,000 | BUY | 6 / 10 | 0.09 KM |
Nearby Properties
| Address | Price | Distance |
|---|---|---|
| 91 Wilford Crescent East | £ 78,500 | 0.04 KM |
| 61 Wilford Crescent East | £ 135,000 | 0.04 KM |
| 93 Wilford Crescent East | £ 145,000 | 0.04 KM |
| 78 Wilford Crescent East | £ 120,000 | 0.04 KM |
| 117 Wilford Crescent East | £ 98,000 | 0.04 KM |