Whitstable Road, Faversham
By Sealeys Walker Jarvis
£ 385,000
Reviews
3 out of 5 stars
Sealeys Walker Jarvis says ..
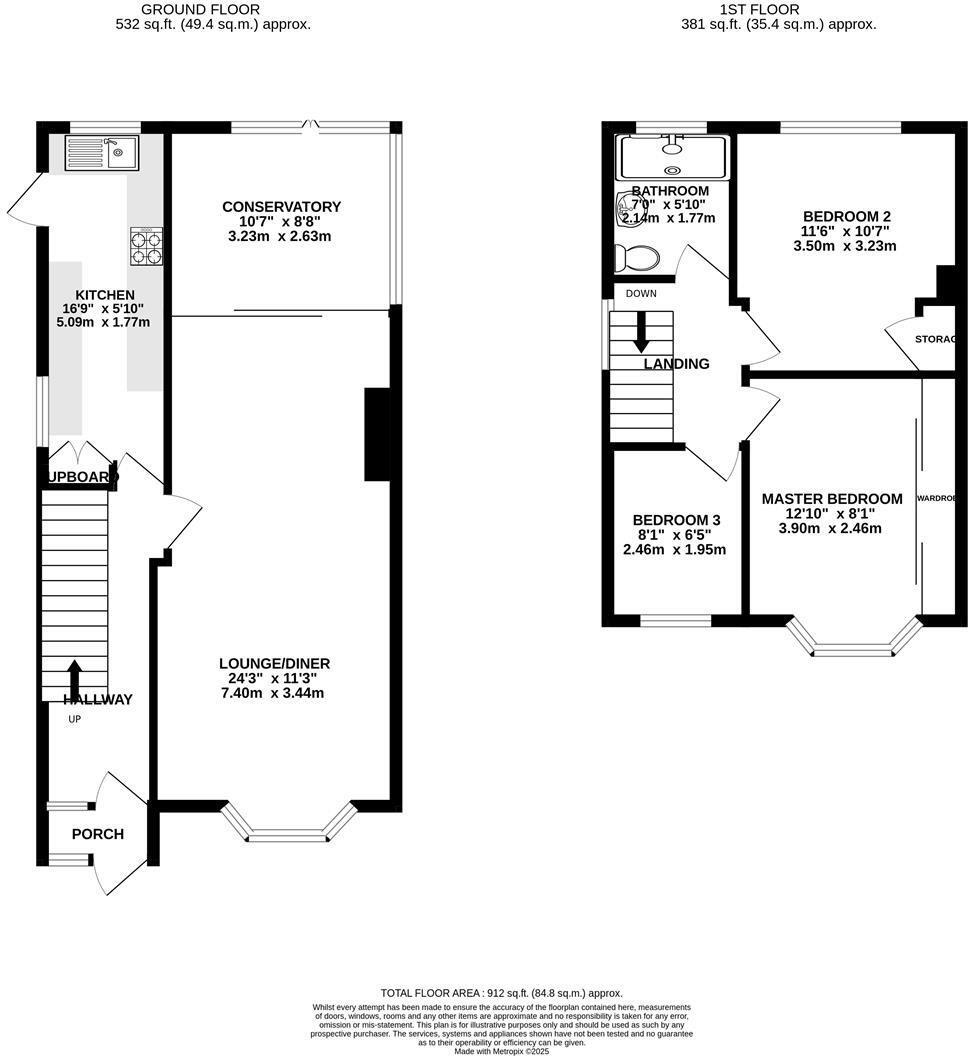
We are pleased to bring to the market this 3 bedroom semi-detached house. The ground floor comprises of an open plan lounge/diner, long galley kitchen plus a conservatory. There are 3 bedrooms upstairs plus the family shower room. To the rear of the property is a huge garden with a patio area...
Property Oracle says ..
This semi-detached property on Whitstable Road, Faversham, offers three bedrooms and one bathroom within 762.60 sqft. While the house requires some modernisation, it features a generously sized garden with a greenhouse and shed. The location is convenient, with proximity to schools and transportation. The asking price of £385,000 is slightly above the local average, reflecting the property’s potential and garden space. The property includes a conservatory. The house is of traditional style and would benefit from some modernisation.
Therefore, we give this property 7 / 10. *Disclaimer: This is our option and does constitute a recommendation or financial advice. Do your own research. *
- Price
- 7
- Condition
- 6
- Location
- 7
- Land
- 8
- Bedrooms
- 3
- Bathrooms
- 1
- Sqft (est)
- 762.60
The heatmap indicates the level of crime in the area. The color of the heatmap indicates the crime severity and recency.
Metrics Year-on-Year
- Average area value
- 350,323.00 £Decreased by 1.18 %
- Est sale value
- 328,680.60 £Increased by 20.73 %
- Average area rental value
- 1,334.00 £/moDecreased by 2.49 %
- Est letting value
- 762.60 £/moUnchanged by 0.00 %
- Est rental Yield
- 4.57 %Decreased by 1.30 %
- Crime Rate
- 20.00 %Unchanged by 0.00 %
Agent Activity
Sealeys Walker Jarvis created the listing.
Nearby Schools
| Name | Type | Ofsted | Distance |
|---|---|---|---|
| St Mary Of Charity Cofe (Aided) Primary School | Academy Sponsor Led | Outstanding | 0.57 KM |
| St Mary'S Children'S Centre | Children's Centre | 0.64 KM | |
| Queen Elizabeth'S Grammar School | Academy Converter | Outstanding | 0.73 KM |
| The Abbey School | Academy Converter | Good | 1.82 KM |
| Ethelbert Road Primary School | Community School | Outstanding | 1.95 KM |
Images
Nearby Streets
| Name | Average Price | Average Sqft | Distance |
|---|---|---|---|
| Charles Drayson Court | £ 0 | 0 | 0.00 KM |
| Abbots Road | £ 0 | 0 | 0.00 KM |
| Dewberry Close | £ 385,000 | 0 | 0.00 KM |
| William Street | £ 0 | 0 | 0.00 KM |
| Shooting Meadow Path | £ 0 | 0 | 0.00 KM |
Nearby Transport
| Name | NLC | TLC | Distance |
|---|---|---|---|
| Faversham | 5167 | FAV | 1.12 KM |
| Selling | 5179 | SEG | 5.94 KM |
Nearby Listings
| Address | Price | Type | Score | Distance |
|---|---|---|---|---|
| Whitstable Road, Faversham | £ 385,000 | BUY | 7 / 10 | 0.00 KM |
| Whitstable Road, Faversham, Kent | £ 350,000 | BUY | 5 / 10 | 0.02 KM |
| Whitstable Road, Faversham, ME13 | £ 490,000 | BUY | 6 / 10 | 0.06 KM |
| Edward Vinson Drive, Faversham | £ 200,000 | BUY | 7 / 10 | 0.12 KM |
| Thomas Neame Avenue, Faversham | £ 200,000 | BUY | 7 / 10 | 0.13 KM |
Nearby Properties
| Address | Price | Distance |
|---|---|---|
| 51 Whitstable Road | £ 277,500 | 0.02 KM |
| 49 Whitstable Road | £ 246,000 | 0.02 KM |
| 31 Whitstable Road | £ 397,500 | 0.02 KM |
| 45 Whitstable Road | £ 245,000 | 0.02 KM |
| 27 Whitstable Road | £ 270,000 | 0.02 KM |