Winston Avenue, Kings Hill
By Kings Hill Properties
£ 250,000
Reviews
3 out of 5 stars
Kings Hill Properties says ..
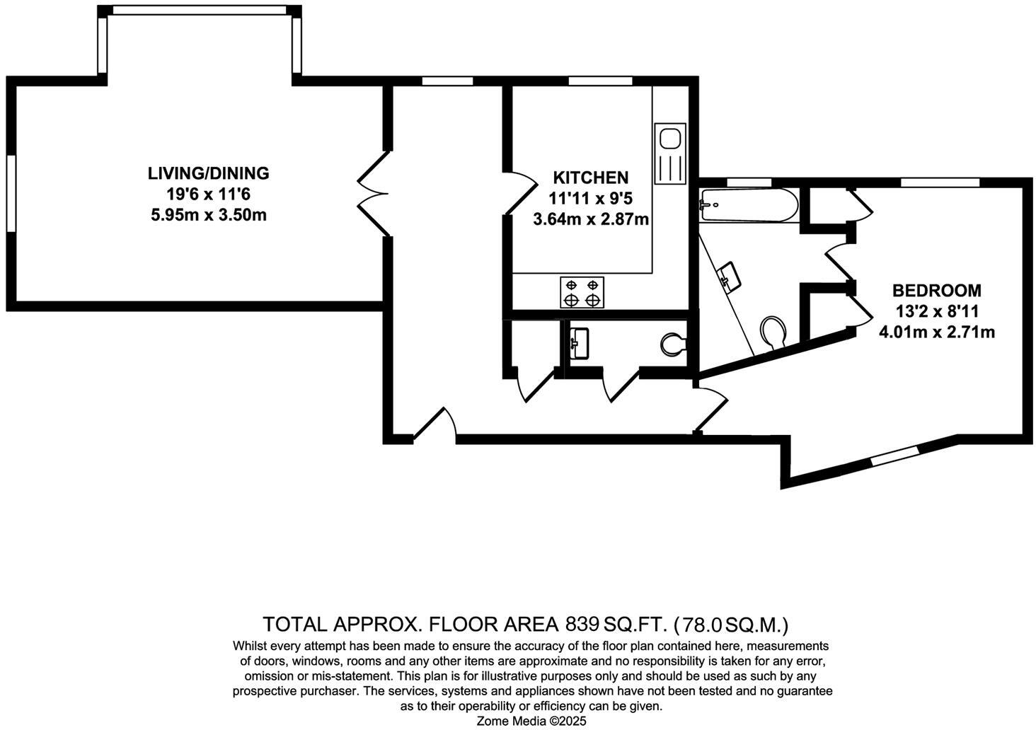
**CHAIN FREE** Generous one bed GROUND FLOOR apartment (839sqft) situated in the heart of Kings Hill, with easy access to Liberty Square amenities which include shops, super markets, health services, pubs, restaurants, cafes and much more! This delightful 1 bedroom apartment is ...
Property Oracle says ..
This is a one-bedroom apartment located on Winston Avenue, Kings Hill. The property is in good condition, with a modern interior. The apartment is approximately 839.59 sqft. The property benefits from nearby schools and transportation links. The asking price of £250,000 appears reasonable compared to other properties in the area, considering the square footage and location. The apartment does not have a private garden, but it is situated in an area with communal green spaces. The property is listed with Kings Hill Properties.
Therefore, we give this property 6 / 10. *Disclaimer: This is our option and does constitute a recommendation or financial advice. Do your own research. *
- Price
- 7
- Condition
- 8
- Location
- 7
- Land
- 3
- Bedrooms
- 1
- Bathrooms
- 1
- Sqft (est)
- 839.59
The heatmap indicates the level of crime in the area. The color of the heatmap indicates the crime severity and recency.
Metrics Year-on-Year
- Average area value
- 562,188.00 £Increased by 0.28 %
- Est sale value
- 519,706.21 £Increased by 40.68 %
- Average area rental value
- 2,283.00 £/moIncreased by 15.48 %
- Est letting value
- 1,679.18 £/moIncreased by 100.00 %
- Est rental Yield
- 4.87 %Increased by 15.13 %
- Crime Rate
- 46.00 %Unchanged by 0.00 %
Agent Activity
Kings Hill Properties created the listing.
Nearby Schools
| Name | Type | Ofsted | Distance |
|---|---|---|---|
| Kings Hill School Primary And Nursery | Community School | Good | 0.94 KM |
| Valley Invicta Primary School At Kings Hill | Academy Sponsor Led | Good | 1.06 KM |
| The Discovery School | Community School | Outstanding | 1.19 KM |
| West Malling Church Of England Primary School And Mcginty Speech And Language Centre | Academy Converter | Good | 2.58 KM |
| More Park Catholic Primary School | Academy Converter | Good | 2.88 KM |
Images
Nearby Streets
| Name | Average Price | Average Sqft | Distance |
|---|---|---|---|
| Hamilton Way | £ 0 | 0 | 0.00 KM |
| Viollette Close | £ 0 | 0 | 0.00 KM |
| Orchard Way | £ 312,998 | 0 | 0.00 KM |
| Royal Crescent | £ 295,000 | 0 | 0.00 KM |
| Cabusse Close | £ 422,623 | 0 | 0.00 KM |
Nearby Transport
| Name | NLC | TLC | Distance |
|---|---|---|---|
| West Malling | 5129 | WMA | 2.58 KM |
| Wateringbury | 5241 | WTR | 2.99 KM |
| East Malling | 5134 | EML | 3.88 KM |
| Yalding | 5232 | YAL | 5.08 KM |
| New Hythe | 5238 | NHE | 7.00 KM |
Nearby Listings
| Address | Price | Type | Score | Distance |
|---|---|---|---|---|
| Winston Avenue, Kings Hill | £ 250,000 | BUY | 6 / 10 | 0.00 KM |
| Winston Avenue, Kings Hill, ME19 4WT | £ 575,000 | BUY | 8 / 10 | 0.09 KM |
| Cardinal Walk, Kings Hill, West Malling, Kent, ME19 | £ 550,000 | BUY | 8 / 10 | 0.10 KM |
| Melrose Avenue, Kings Hill, West Malling, Kent, ME19 4SJ | £ 250,000 | BUY | 6 / 10 | 0.10 KM |
| 27 Melrose Avenue, Kings Hill, ME19 4SJ | £ 250,000 | BUY | 6 / 10 | 0.11 KM |
Nearby Properties
| Address | Price | Distance |
|---|---|---|
| 107 Tower View | £ 478,000 | 0.02 KM |
| 123 Tower View | £ 295,000 | 0.02 KM |
| 119 Tower View | £ 435,000 | 0.02 KM |
| 117 Tower View | £ 307,000 | 0.02 KM |
| 105 Tower View | £ 480,000 | 0.02 KM |