JO
Ellesmere Avenue, London, NW7
By Joseph Scott
£ 600,000
Reviews
3 out of 5 stars
Joseph Scott says ..
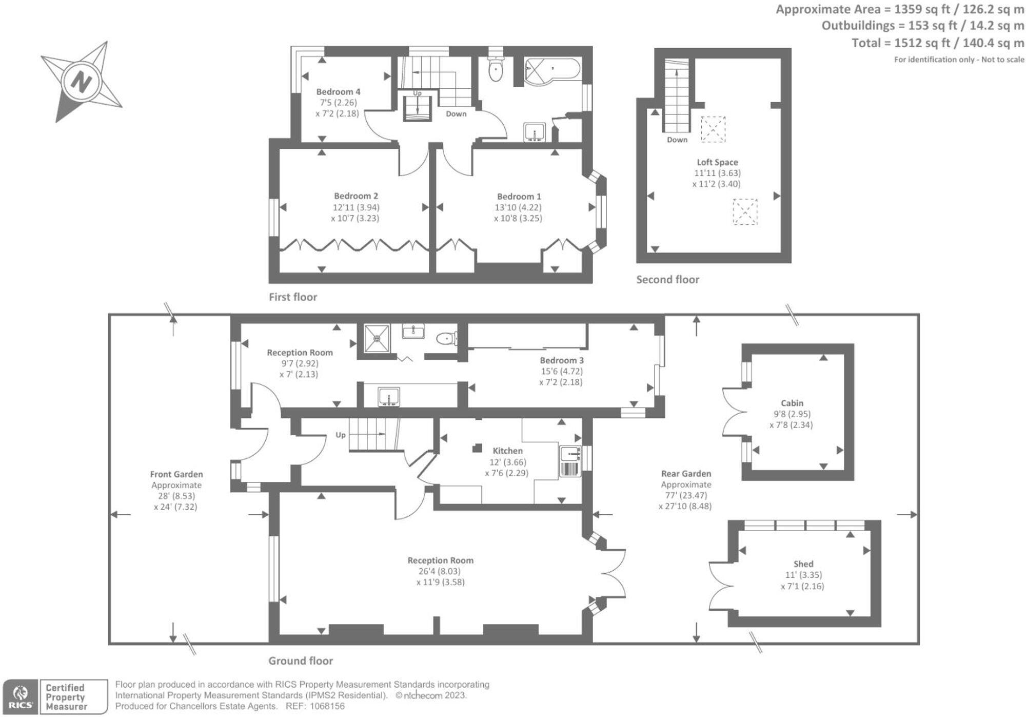
Exclusive To Joseph Scott - A Beautifully Presented, Extended Four Bedroom, Semi Detached House With Private Rear Garden and Annexe.The ground floor of this lovely property comprises a well appointed kitchen and through lounge.
Property Oracle says ..
Therefore, we give this property 7 / 10. *Disclaimer: This is our option and does constitute a recommendation or financial advice. Do your own research. *
- Price
- 8
- Condition
- 6
- Location
- 7
- Land
- 7
- Bedrooms
- 4
- Bathrooms
- 2
- Sqft (est)
- 1,512.00
- Lot (est)
- 1,977.00
The heatmap indicates the level of crime in the area. The color of the heatmap indicates the crime severity and recency.
Metrics Year-on-Year
- Average area value
- 758,663.00 £Increased by 3.95 %
- Est sale value
- 719,712.00 £Decreased by 26.99 %
- Average area rental value
- 2,364.00 £/moDecreased by 11.43 %
- Est letting value
- 1,512.00 £/moDecreased by 50.00 %
- Est rental Yield
- 3.74 %Decreased by 14.81 %
- Crime Rate
- 4.00 %Unchanged by 0.00 %
from 729,814.00 £
from 985,824.00 £
from 2,669.00 £/mo
from 3,024.00 £/mo
from 4.39 %
from 4.00 %
Agent Activity
Joseph Scott created the listing.
Nearby Schools
| Name | Type | Ofsted | Distance |
|---|---|---|---|
| Northway School | Community Special School | Outstanding | 0.49 KM |
| Fairway Primary School And Children'S Centre | Community School | Good | 0.50 KM |
| Fairway Primary School And Children'S Centre | Children's Centre | 0.54 KM | |
| Courtland School | Community School | Outstanding | 0.74 KM |
| Mathilda Marks-Kennedy Jewish Primary School | Voluntary Aided School | Outstanding | 0.86 KM |
Images
Nearby Streets
| Name | Average Price | Average Sqft | Distance |
|---|---|---|---|
| Manor Drive | £ 925,000 | 0 | 0.00 KM |
| Marsh Lane | £ 2,044,158 | 0 | 0.00 KM |
| Limes Avenue | £ 999,000 | 0 | 0.00 KM |
| Kenilworth Road | £ 595,000 | 0 | 0.00 KM |
| Station Road | £ 0 | 0 | 0.00 KM |
Nearby Transport
| Name | NLC | TLC | Distance |
|---|---|---|---|
| Mill Hill Broadway | 1527 | MIL | 1.42 KM |
| Elstree And Borehamwood | 1542 | ELS | 4.19 KM |
| Hendon | 1522 | HEN | 5.20 KM |
| Kenton | 1399 | KNT | 8.01 KM |
| South Kenton | 1453 | SOK | 8.13 KM |
Nearby Listings
| Address | Price | Type | Score | Distance |
|---|---|---|---|---|
| Ellesmere Avenue, London, NW7 | £ 600,000 | BUY | 7 / 10 | 0.00 KM |
| Ellesmere Avenue, London, NW7 | £ 650,000 | BUY | 6 / 10 | 0.00 KM |
| Ellesmere Avenue, Mill Hill, London, NW7 | £ 625,000 | BUY | 7 / 10 | 0.00 KM |
| Ellesmere Avenue, Mill Hill, London, NW7 | £ 625,000 | BUY | 6 / 10 | 0.04 KM |
| Laurel Gardens, London | £ 850,000 | BUY | Unknown | 0.14 KM |
Nearby Properties
| Address | Price | Distance |
|---|---|---|
| 57 Ellesmere Avenue | £ 129,000 | 0.01 KM |
| 25 Ellesmere Avenue | £ 640,000 | 0.01 KM |
| 15 Ellesmere Avenue | £ 360,000 | 0.01 KM |
| 43 Ellesmere Avenue | £ 292,000 | 0.01 KM |
| 73 Ellesmere Avenue | £ 295,000 | 0.01 KM |