Sell My Group says ..
BRAND NEW Park Home (38'x20') | Established residential development | Exclusive for the over 45s | Pet friendly | Fully furnished | 17 acres of land | Rural location | Near Newcastle Upon Tyne | High Specification | Modern Home | Fully Furnished | Part Exchange available for a quick sale
Property Oracle says ..
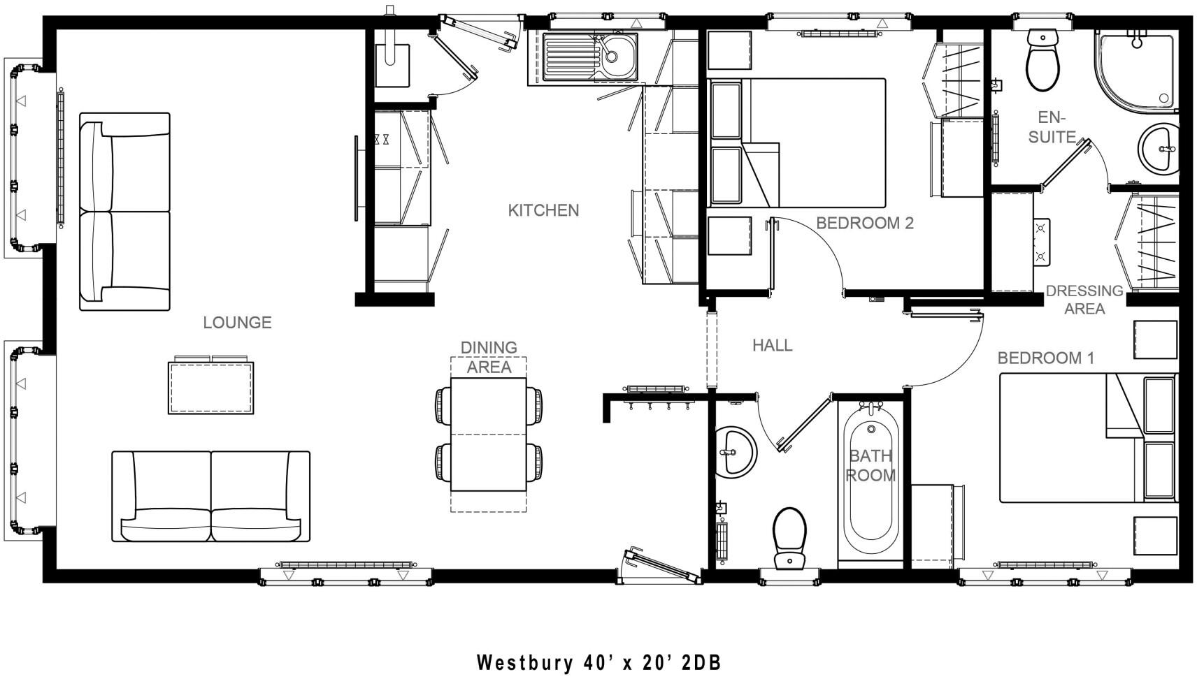
The property is a 2 bedroom, 2 bathroom park home located in Birtley, Tyne and Wear. Based on the provided information and images, here’s an analysis: Location: The property is situated in a rural location near Birtley, offering a quieter lifestyle. The proximity to Newcastle Upon Tyne is a positive aspect, providing access to city amenities. Several schools are within a reasonable distance, although specific Ofsted ratings for some are unavailable. Train stations are also relatively close by, enhancing transport links. Condition: The park home appears to be in excellent condition. The images showcase a modern, well-maintained interior and exterior. The property looks newly built or recently renovated, suggesting minimal need for repairs. Land: The property has a plot size of 800 sqft. While this is not extensive, it provides adequate space for the park home itself and a small surrounding area. The images show a paved area immediately around the home, with some additional grassy land visible nearby. More information on the exact boundaries and usage rights would be needed for a more precise assessment. Price: The list price is £106,995. Considering the property is a new or as-new park home, the price seems reasonable compared to similar nearby listings, although the lack of square footage data for those listings makes a precise comparison difficult. More data on average prices per sqft for similar park homes in the area would allow for a more definitive assessment of value.
Therefore, we give this property 7 / 10. *Disclaimer: This is our option and does constitute a recommendation or financial advice. Do your own research. *
- Price
- 7
- Condition
- 9
- Location
- 7
- Land
- 6
- Bedrooms
- 2
- Bathrooms
- 2
- Sqft (est)
- 800.00
- Lot (est)
- 800.00
The heatmap indicates the level of crime in the area. The color of the heatmap indicates the crime severity and recency.
Metrics Year-on-Year
- Average area value
- 265,000.00 £Increased by 2.60 %
- Est sale value
- 212,000.00 £Increased by 9.05 %
- Average area rental value
- 1,270.00 £/moDecreased by 15.05 %
- Est letting value
- 800.00 £/moUnchanged by 0.00 %
- Est rental Yield
- 5.75 %Decreased by 17.27 %
- Crime Rate
- 0.00 %
Agent Activity
Sell My Group created the listing.
Nearby Schools
| Name | Type | Ofsted | Distance |
|---|---|---|---|
| Kibblesworth Academy | Academy Converter | Good | 1.27 KM |
| Ouston Primary School | Academy Converter | 1.80 KM | |
| St Benet'S Catholic Primary School, Ouston | Academy Converter | 2.14 KM | |
| Pelton Community Primary School | Community School | Good | 2.91 KM |
| Chowdene Children'S Centre | Children's Centre Linked Site | 3.08 KM |
Images
Nearby Streets
| Name | Average Price | Average Sqft | Distance |
|---|---|---|---|
| The Crescent | £ 0 | 0 | 0.00 KM |
| Lamesley Road | £ 455,000 | 0 | 0.00 KM |
| Grange Terrace | £ 0 | 0 | 0.00 KM |
| Argyll | £ 163,333 | 0 | 0.00 KM |
Nearby Transport
| Name | NLC | TLC | Distance |
|---|---|---|---|
| Chester-Le-Street | 7736 | CLS | 5.96 KM |
| Dunston | 7744 | DOT | 6.80 KM |
| Newcastle | 7728 | NCL | 7.74 KM |
| Heworth | 7766 | HEW | 8.13 KM |
| Manors | 7603 | MAS | 8.15 KM |
Nearby Listings
| Address | Price | Type | Score | Distance |
|---|---|---|---|---|
| Birtley, Tyne and Wear, DH2 | £ 97,995 | BUY | 6 / 10 | 0.00 KM |
| Birtley, Tyne And Wear, DH2 | £ 106,995 | BUY | 7 / 10 | 0.00 KM |
| Angel of the North Residential Park, Birtley, Chester Le Street | £ 106,995 | BUY | 6 / 10 | 0.00 KM |
| Birtley, Chester-le-Street, DH2 1XG | £ 106,995 | BUY | Unknown | 0.07 KM |
| Bewicke Main Residential Park, Birtley, Chester Le Street, Tyne and Wear, DH2 | £ 95,000 | BUY | 6 / 10 | 0.29 KM |
Nearby Properties
| Address | Price | Distance |
|---|---|---|
| 25 Ouselaw | £ 129,995 | 0.92 KM |
| 26 Hollydene | £ 75,950 | 0.99 KM |
| 21 Hollydene | £ 210,000 | 0.99 KM |
| 25 Hollydene | £ 178,000 | 0.99 KM |
| 30 Hollydene | £ 45,000 | 0.99 KM |