PA
Heaton Terrace, Station Town, Wingate, Durham, TS28 5EX
By Pattinson Estate Agents
£ 475,000
Reviews
3 out of 5 stars
Pattinson Estate Agents says ..
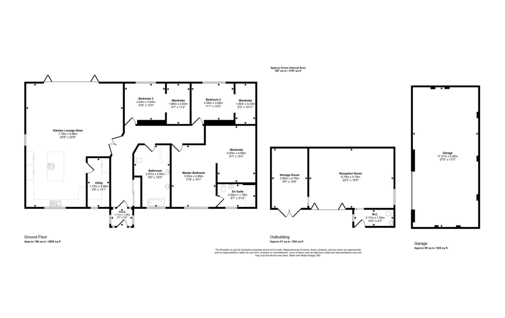
Exceptional Detached Residence with Panoramic Countryside Views – A Rare & Luxurious Family Home Total Floor Area: 2,604.87 sq ft Pattinson Estate Agents are delighted to welcome to the market this truly remarkable and individually designed detached residence, offering a rare opportunity ...
Property Oracle says ..
Therefore, we give this property 7 / 10. *Disclaimer: This is our option and does constitute a recommendation or financial advice. Do your own research. *
- Price
- 4
- Condition
- 9
- Location
- 7
- Land
- 8
- Bedrooms
- 3
- Bathrooms
- 2
The heatmap indicates the level of crime in the area. The color of the heatmap indicates the crime severity and recency.
Metrics Year-on-Year
- Average area value
- 155,598.00 £Decreased by 6.11 %
- Average area rental value
- 550.00 £/moIncreased by 1.48 %
- Est rental Yield
- 4.24 %Increased by 8.16 %
- Crime Rate
- 0.00 %
from 165,715.00 £
from 542.00 £/mo
from 3.92 %
from 0.00 %
Agent Activity
Pattinson Estate Agents created the listing.
Nearby Schools
| Name | Type | Ofsted | Distance |
|---|---|---|---|
| St Marys Catholic Primary School, Wingate | Academy Converter | 1.76 KM | |
| Wingate Primary School | Community School | Outstanding | 1.78 KM |
| Wellfield School | Community School | Good | 1.98 KM |
| Wingate Community Nursery School | Local Authority Nursery School | Outstanding | 2.30 KM |
| Hutton Henry Cofe (Controlled) Primary School | Voluntary Controlled School | Good | 2.47 KM |
Images
Nearby Streets
| Name | Average Price | Average Sqft | Distance |
|---|---|---|---|
| Dormand Villa | £ 0 | 0 | 0.00 KM |
| Church Street | £ 89,950 | 0 | 0.00 KM |
| Catchgate Court | £ 0 | 0 | 0.00 KM |
| Plantation Close | £ 209,950 | 0 | 0.00 KM |
| Winning Close | £ 205,000 | 0 | 0.00 KM |
Nearby Listings
| Address | Price | Type | Score | Distance |
|---|---|---|---|---|
| Heaton Terrace, Station Town, Wingate, Durham, TS28 5EX | £ 79,995 | BUY | 6 / 10 | 0.00 KM |
| Heaton Terrace, Station Town, Wingate, Durham, TS28 5EX | £ 475,000 | BUY | 7 / 10 | 0.00 KM |
| Heaton Terrace, Station Town, Wingate, Durham, TS28 5EX | £ 84,995 | BUY | 7 / 10 | 0.00 KM |
| Cravens Cottages, Station Town | £ 60,000 | BUY | Unknown | 0.15 KM |
| Cravens Cottages, Wingate, TS28 | £ 50,000 | BUY | Unknown | 0.15 KM |
Nearby Properties
| Address | Price | Distance |
|---|---|---|
| 5 Bridge Terrace | £ 38,500 | 0.05 KM |
| 4 Bridge Terrace | £ 43,000 | 0.05 KM |
| 14 Heaton Terrace | £ 50,000 | 0.10 KM |
| 6 Heaton Terrace | £ 53,000 | 0.10 KM |
| 16 Heaton Terrace | £ 50,000 | 0.10 KM |