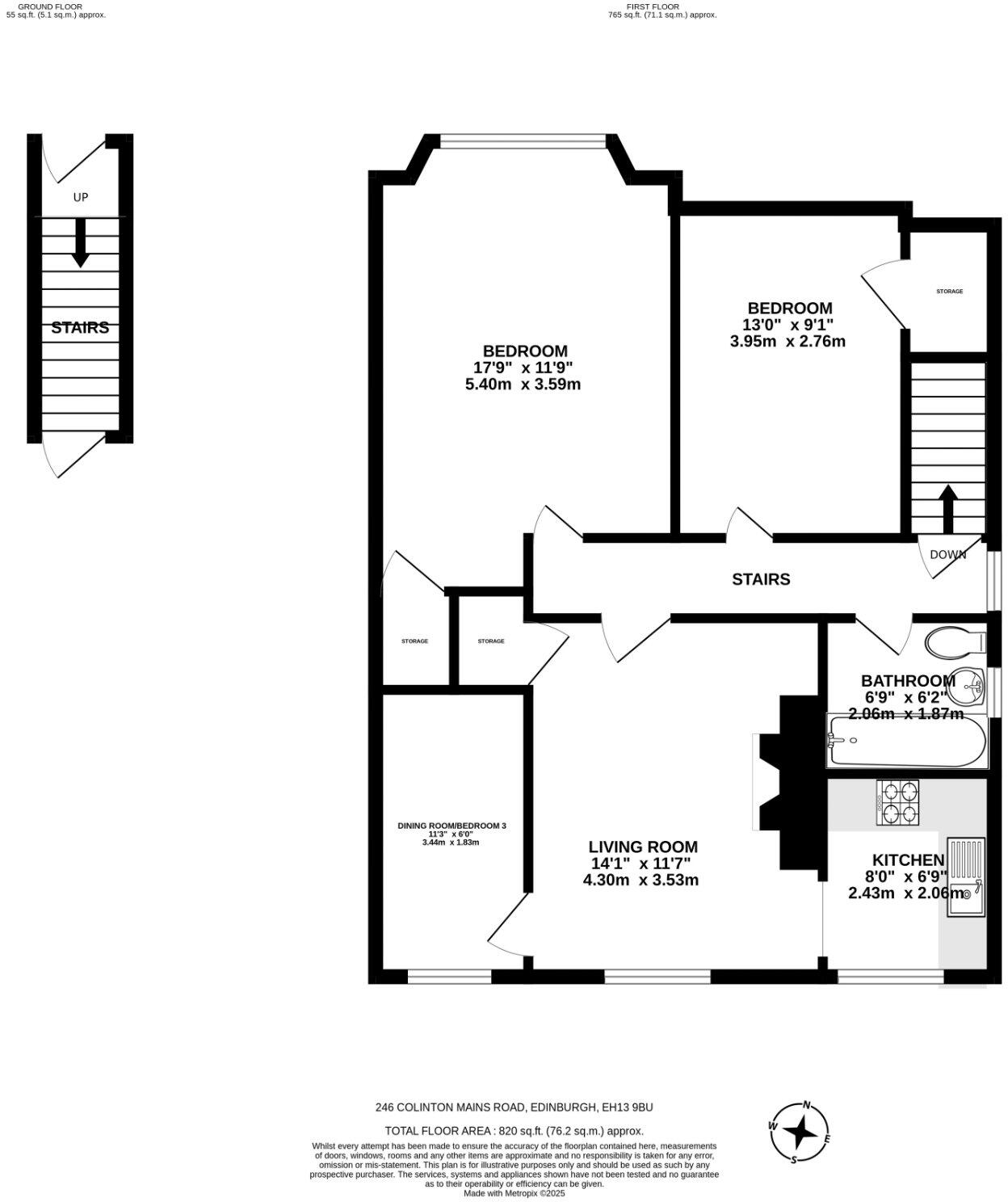
246 Colinton Mains Road, Edinburgh, EH13
By D J Alexander
£ 185,000
Reviews
3 out of 5 stars
D J Alexander says ..
Set on the popular Colinton Mains Road, this bright and spacious three-bedroom upper villa forms part of a block of four properties and offers versatile accommodation ideal for a range of purchasers, including families, first-time buyers, or buy-to-let investors.
Property Oracle says ..
This is a three-bedroom flat in the Colinton/Fairmilehead area of Edinburgh. The property is in need of some modernisation, but it benefits from a good-sized garden. The property is listed at £185,000, which is below the average price for the area.
Therefore, we give this property 6 / 10. *Disclaimer: This is our option and does constitute a recommendation or financial advice. Do your own research. *
- Price
- 8
- Condition
- 5
- Location
- 7
- Land
- 7
- Bedrooms
- 3
- Bathrooms
- 1
- Sqft (est)
- 820.00
The heatmap indicates the level of crime in the area. The color of the heatmap indicates the crime severity and recency.
Metrics Year-on-Year
- Average area value
- 472,778.00 £Increased by 11.87 %
- Est sale value
- 355,880.00 £Increased by 13.61 %
- Average area rental value
- 1,117.00 £/moDecreased by 36.13 %
- Est letting value
- 820.00 £/moUnchanged by 0.00 %
- Est rental Yield
- 2.84 %Decreased by 42.86 %
- Crime Rate
- 0.00 %
Agent Activity
D J Alexander created the listing.
Nearby Schools
| Name | Type | Ofsted | Distance |
|---|---|---|---|
| Merchiston Castle School | Offshore Schools | 2.47 KM |
Images
Nearby Streets
| Name | Average Price | Average Sqft | Distance |
|---|---|---|---|
| Firrhill Loan | £ 150,000 | 0 | 0.00 KM |
| Oxgangs Row | £ 145,000 | 0 | 0.00 KM |
| Oxgangs Grove | £ 0 | 0 | 0.00 KM |
| Morham Park | £ 680,000 | 0 | 0.00 KM |
| Rattray Crescent | £ 425,000 | 0 | 0.00 KM |
Nearby Transport
| Name | NLC | TLC | Distance |
|---|---|---|---|
| Slateford | 9236 | SLA | 2.62 KM |
| Kingsknowe | 9217 | KGE | 3.90 KM |
| Haymarket | 9419 | HYM | 4.68 KM |
| Wester Hailes | 9231 | WTA | 5.84 KM |
| Edinburgh | 9328 | EDB | 7.08 KM |
Nearby Listings
| Address | Price | Type | Score | Distance |
|---|---|---|---|---|
| 246 Colinton Mains Road, Edinburgh, EH13 | £ 185,000 | BUY | 6 / 10 | 0.00 KM |
| 266 Colinton Mains Road, Edinburgh, EH13 | £ 190,000 | BUY | 6 / 10 | 0.08 KM |
| 22 Oxgangs Terrace, Edinburgh, EH13 9BY | £ 240,000 | BUY | 7 / 10 | 0.10 KM |
| 28 Oxgangs Terrace, Edinburgh, EH13 9BY | £ 205,000 | BUY | 7 / 10 | 0.10 KM |
| 2 Oxgangs Farm Grove, Oxgangs, Edinburgh, EH13 9PW | £ 330,000 | BUY | Unknown | 0.13 KM |