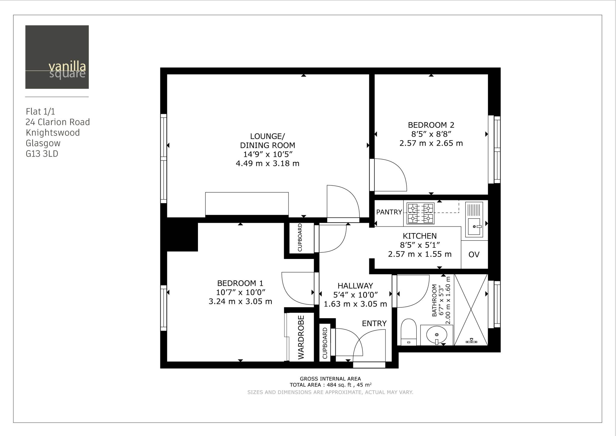
Clarion Road, Knightswood
VA

Clarion Road, Knightswood

By Vanilla Square

£ 105,000

Reviews

3 out of 5 stars

Vanilla Square says ..

Stunning Refurbished Two-Bedroom Flat in Sought-After Knightswood.

Property Oracle says ..

This is a two-bedroom flat in Knightswood, Glasgow. The property appears to be in good condition, with modern kitchen and bathroom fittings. It benefits from a shared garden and is located within reasonable distance of local amenities and transportation links. The flat is listed at £105,000, which seems competitive compared to the average property price in the area. The communal entrance could use some cosmetic improvements. Overall, this property presents a good opportunity for first-time buyers or investors looking for a well-maintained flat in a convenient location.

Therefore, we give this property 6 / 10. *Disclaimer: This is our option and does constitute a recommendation or financial advice. Do your own research. *

Price
7
Condition
8
Location
7
Land
5
Bedrooms
2
Bathrooms
1
Sqft (est)
48.73

The heatmap indicates the level of crime in the area. The color of the heatmap indicates the crime severity and recency.

Metrics Year-on-Year

Average area value
155,333.00 £
Decreased by 5.91 %
from 165,090.00 £
Est sale value
9,940.92 £
Increased by 5.70 %
from 9,404.89 £
Average area rental value
977.00 £/mo
Increased by 2.41 %
from 954.00 £/mo
Est letting value
48.73 £/mo
Unchanged by 0.00 %
from 48.73 £/mo
Est rental Yield
7.55 %
Increased by 8.95 %
from 6.93 %
Crime Rate
0.00 %
from 0.00 %

Agent Activity

  • Vanilla Square created the listing.

Images

1-print-24 Clario... 14-print-24 Clari... 11-print-24 Clari... 13-print-24 Clari... 16-print-24 Clari... 20-print-24 Clari... 24-print-24 Clari... 29-print-24 Clari... 27-print-24 Clari... 6-print-24 Clario... 39-print-24 Clari... 37-print-24 Clari... 3-print-24 Clario... 34-print-24 Clari... 30-print-24 Clari... 36-print-24 Clari... 15-print-24 Clari... 12-print-24 Clari... 17-print-24 Clari... 21-print-24 Clari... 23-print-24 Clari... 25-print-24 Clari... 10-print-24 Clari... 8-print-24 Clario...

Nearby Streets

NameAverage PriceAverage SqftDistance
Clarion Road £ 000.00 KM
Bassett Avenue £ 000.00 KM
Bard Avenue £ 000.00 KM
Dodhill Place £ 000.00 KM
Loanfoot Avenue £ 149,00000.00 KM

Nearby Transport

NameNLCTLCDistance
Drumchapel9994DMC1.23 KM
Scotstounhill9996SCH1.24 KM
Garscadden9979GRS1.29 KM
Westerton9998WES2.60 KM
Yoker9990YOK3.30 KM

Nearby Listings

AddressPriceTypeScoreDistance
Clarion Road, Knightswood £ 105,000BUY6 / 100.00 KM
Clarion Road, Knightswood, G13 £ 189,000BUY6 / 100.02 KM
Clarion Road, Knightswood £ 72,000BUY4 / 100.09 KM
Truce Road, Knightswood, Glasgow, G13 £ 135,000BUYUnknown0.19 KM
Archerhill Crescent, Knightswood £ 144,000BUY7 / 100.27 KM