Chancellors says ..
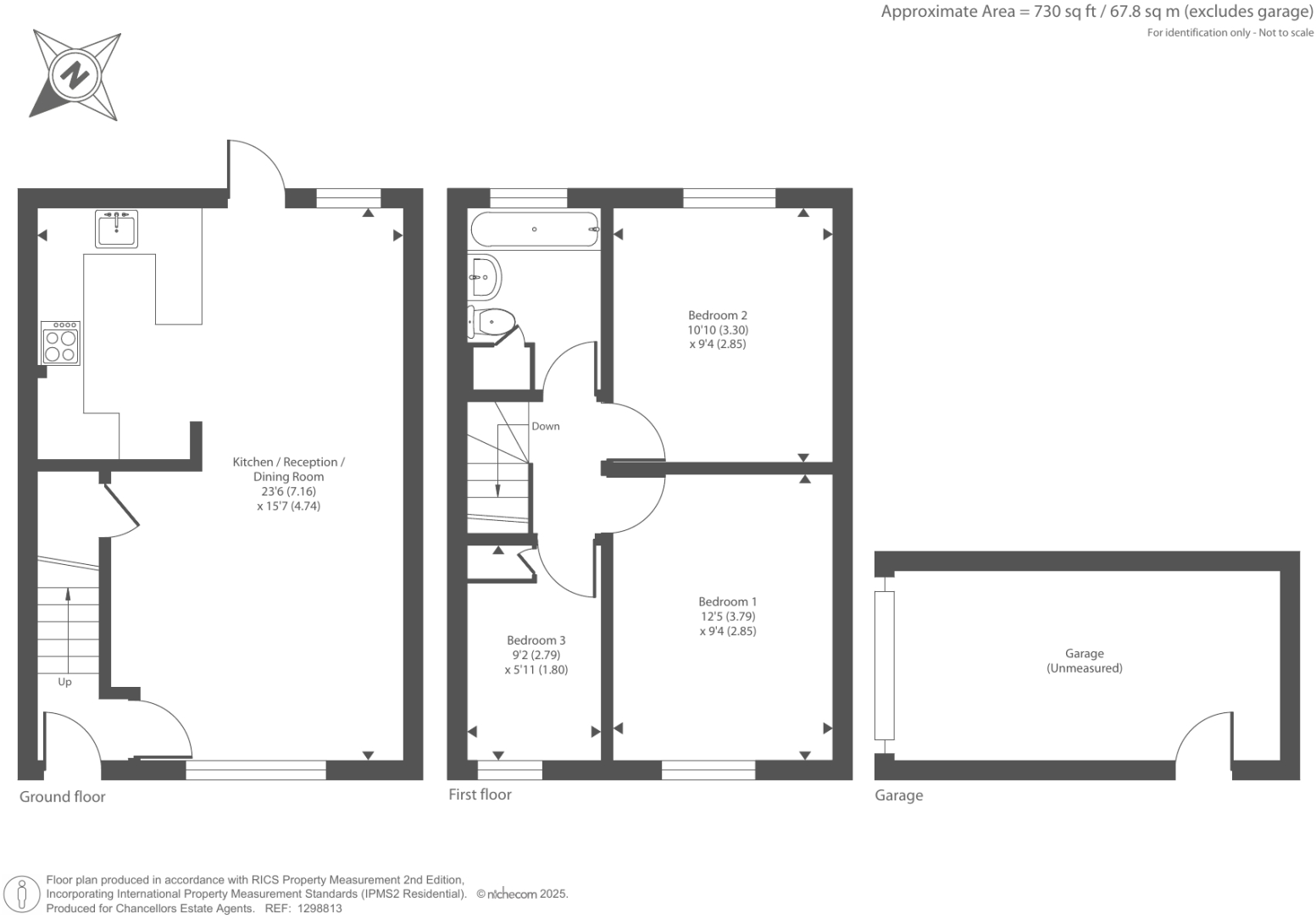
Launch Day - Saturday 7th June. A modern three bedroom home with a driveway to garage situated within a mile of Windlesham amenities. The property is well presented throughout and internal viewings are highly recommended.
Property Oracle says ..
Therefore, we give this property 7 / 10. *Disclaimer: This is our option and does constitute a recommendation or financial advice. Do your own research. *
- Price
- 7
- Condition
- 8
- Location
- 7
- Land
- 6
- Bedrooms
- 3
- Bathrooms
- 1
- Sqft (est)
- 639.50
The heatmap indicates the level of crime in the area. The color of the heatmap indicates the crime severity and recency.
Metrics Year-on-Year
- Average area value
- 1,260,829.00 £Increased by 15.29 %
- Est sale value
- 569,794.50 £Increased by 84.47 %
- Average area rental value
- 6,050.00 £/moIncreased by 108.62 %
- Est letting value
- 2,558.00 £/moIncreased by 300.00 %
- Est rental Yield
- 5.76 %Increased by 81.13 %
- Crime Rate
- 25.00 %Unchanged by 0.00 %
from 1,093,650.00 £
from 308,878.50 £
from 2,900.00 £/mo
from 639.50 £/mo
from 3.18 %
from 25.00 %
Agent Activity
Chancellors created the listing.
Nearby Schools
| Name | Type | Ofsted | Distance |
|---|---|---|---|
| Fernways School | Other Independent Special School | 1.47 KM | |
| Woodcote House School | Other Independent School | 1.80 KM | |
| Windlesham Village Infant School | Academy Converter | Requires improvement | 2.11 KM |
| Valley End Cofe Infant School | Voluntary Controlled School | Outstanding | 2.13 KM |
| Gordon'S School | Academy Converter | Outstanding | 2.54 KM |
Images
Nearby Streets
| Name | Average Price | Average Sqft | Distance |
|---|---|---|---|
| Oakwood Road | £ 925,000 | 0 | 0.00 KM |
| Kent Road | £ 650,000 | 0 | 0.00 KM |
| Pound Lane | £ 0 | 0 | 0.00 KM |
| Molyneux Road | £ 0 | 0 | 0.00 KM |
| Graham Road | £ 0 | 0 | 0.00 KM |
Nearby Transport
| Name | NLC | TLC | Distance |
|---|---|---|---|
| Sunningdale | 5671 | SNG | 3.65 KM |
| Bagshot | 5681 | BAG | 3.98 KM |
| Ascot (Berks) | 5666 | ACT | 5.20 KM |
| Longcross | 5674 | LNG | 6.78 KM |
| Brookwood | 5687 | BKO | 7.13 KM |
Nearby Listings
| Address | Price | Type | Score | Distance |
|---|---|---|---|---|
| Windlesham, Surrey, GU20 | £ 460,000 | BUY | 7 / 10 | 0.00 KM |
| Edward Road, Windlesham, Surrey, GU20 | £ 895,000 | BUY | 7 / 10 | 0.08 KM |
| Windle Close, Windlesham | £ 675,000 | BUY | 7 / 10 | 0.09 KM |
| Edward Road, Windlesham, GU20 | £ 850,000 | BUY | Unknown | 0.10 KM |
| Windlesham, Surrey, GU20 | £ 550,000 | BUY | 6 / 10 | 0.11 KM |
Nearby Properties
| Address | Price | Distance |
|---|---|---|
| 36a Chertsey Road | £ 310,000 | 0.02 KM |
| 40 Chertsey Road | £ 417,000 | 0.02 KM |
| 54 Chertsey Road | £ 245,000 | 0.02 KM |
| 44 Chertsey Road | £ 355,000 | 0.02 KM |
| 30 Chertsey Road | £ 525,000 | 0.02 KM |