Julian Marks says ..
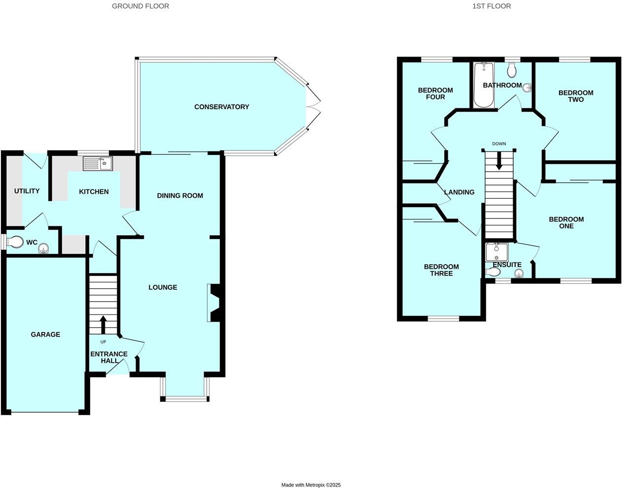
Situated in a quiet cul-de-sac in Eggbuckland is this detached family in need of modernisation. The accommodation comprises an entrance hall, lounge, dining area, conservatory, kitchen, utility & cloakroom on the ground floor. There are 4 bedrooms with the master having an en-suite & a family bat...
Property Oracle says ..
This is a 4-bedroom detached house in Eggbuckland, Plymouth, listed for £300,000. The property benefits from a garage and conservatory. While it is located in a good location, close to schools and transport links, the house requires extensive renovation. The garden is overgrown. The price reflects the condition of the property.
Therefore, we give this property 5 / 10. *Disclaimer: This is our option and does constitute a recommendation or financial advice. Do your own research. *
- Price
- 7
- Condition
- 3
- Location
- 7
- Land
- 6
- Bedrooms
- 4
- Bathrooms
- 1
- Sqft (est)
- 1,035.00
The heatmap indicates the level of crime in the area. The color of the heatmap indicates the crime severity and recency.
Metrics Year-on-Year
- Average area value
- 251,250.00 £Decreased by 14.94 %
- Est sale value
- 307,395.00 £Decreased by 1.33 %
- Average area rental value
- 1,138.00 £/moIncreased by 4.88 %
- Est letting value
- 1,035.00 £/moUnchanged by 0.00 %
- Est rental Yield
- 5.44 %Increased by 23.36 %
- Crime Rate
- 0.00 %
Agent Activity
Julian Marks created the listing.
Nearby Schools
| Name | Type | Ofsted | Distance |
|---|---|---|---|
| Eggbuckland Vale Primary School | Academy Converter | Good | 0.36 KM |
| Eggbuckland Community College | Academy Converter | Requires improvement | 0.77 KM |
| St Edward'S Cofe Primary School | Academy Converter | Good | 0.91 KM |
| Sweet Peas Peverell Children'S Centre | Children's Centre | 1.02 KM | |
| Crownlands Children'S Centre | Children's Centre | 1.13 KM |
Images
Nearby Streets
| Name | Average Price | Average Sqft | Distance |
|---|---|---|---|
| Carisbrooke Road | £ 325,000 | 0 | 0.00 KM |
| The Retreat | £ 340,000 | 0 | 0.00 KM |
| Greatfield Road | £ 0 | 0 | 0.00 KM |
| Cardigan Road | £ 0 | 0 | 0.00 KM |
| Petersfield Close | £ 0 | 0 | 0.00 KM |
Nearby Transport
| Name | NLC | TLC | Distance |
|---|---|---|---|
| Plymouth | 3580 | PLY | 3.90 KM |
| Devonport | 3579 | DPT | 6.49 KM |
| Dockyard (Devonport) | 3588 | DOC | 6.90 KM |
| Keyham | 3571 | KEY | 7.10 KM |
| St Budeaux Ferry Road | 3590 | SBF | 7.80 KM |
Nearby Listings
| Address | Price | Type | Score | Distance |
|---|---|---|---|---|
| Eggbuckland, Plymouth | £ 300,000 | BUY | 5 / 10 | 0.00 KM |
| Eggbuckland, Plymouth | £ 300,000 | BUY | 6 / 10 | 0.06 KM |
| Eggbuckland, Plymouth | £ 230,000 | BUY | Unknown | 0.13 KM |
| Church Hill, Plymouth, PL6 | £ 315,000 | BUY | 7 / 10 | 0.18 KM |
| Eggbuckland, Plymouth | £ 600,000 | BUY | 7 / 10 | 0.18 KM |
Nearby Properties
| Address | Price | Distance |
|---|---|---|
| 1 Doidges Farm Close | £ 210,000 | 0.06 KM |
| 7 Doidges Farm Close | £ 250,000 | 0.06 KM |
| 2 Doidges Farm Close | £ 307,000 | 0.06 KM |
| 5 Doidges Farm Close | £ 218,000 | 0.06 KM |
| 24 Doidges Farm Close | £ 233,000 | 0.06 KM |