Julian Marks says ..
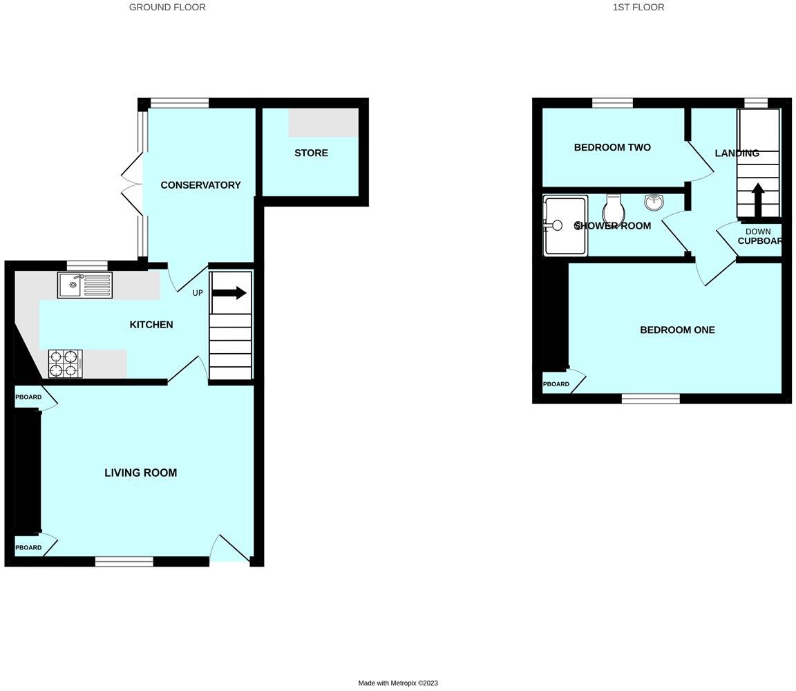
A period semi-detached cottage, dating back to at least 1755, with accommodation situated in a convenient location close to central Plymstock. The accommodation briefly comprises a living room, kitchen, conservatory and store room whilst on the first floor there are 2 bedrooms and a shower room. ...
Property Oracle says ..
This is a two-bedroom semi-detached house located on Church Road in Plymstock, Plymouth. The property is in a convenient location, close to local amenities and schools. While the property requires some modernisation, it is priced competitively for the area. It features a small rear garden and a conservatory. The property is located within a short distance of local schools including Plymstock School which is rated as ‘Good’ by Ofsted.
Therefore, we give this property 5 / 10. *Disclaimer: This is our option and does constitute a recommendation or financial advice. Do your own research. *
- Price
- 7
- Condition
- 5
- Location
- 7
- Land
- 3
- Bedrooms
- 2
- Bathrooms
- 1
- Sqft (est)
- 580.00
The heatmap indicates the level of crime in the area. The color of the heatmap indicates the crime severity and recency.
Metrics Year-on-Year
- Average area value
- 311,919.00 £Decreased by 6.41 %
- Est sale value
- 270,280.00 £Increased by 32.76 %
- Average area rental value
- 1,169.00 £/moIncreased by 9.05 %
- Est letting value
- 580.00 £/moUnchanged by 0.00 %
- Est rental Yield
- 4.50 %Increased by 16.58 %
- Crime Rate
- 4.00 %Unchanged by 0.00 %
Agent Activity
Julian Marks created the listing.
Nearby Schools
| Name | Type | Ofsted | Distance |
|---|---|---|---|
| Plymstock School | Academy Converter | Good | 0.18 KM |
| Goosewell Primary Academy | Academy Sponsor Led | Good | 0.74 KM |
| Pomphlett Primary School | Academy Converter | 0.82 KM | |
| Plymstock Children'S Centre | Children's Centre | 0.92 KM | |
| Coombe Dean School | Academy Converter | Requires improvement | 1.22 KM |
Images
Nearby Streets
| Name | Average Price | Average Sqft | Distance |
|---|---|---|---|
| Church Road | £ 327,500 | 0 | 0.00 KM |
| Woodlands | £ 0 | 0 | 0.00 KM |
| Reigate Road | £ 282,500 | 0 | 0.00 KM |
| Encombe Street | £ 240,000 | 0 | 0.00 KM |
| Paddock Close | £ 0 | 0 | 0.00 KM |
Nearby Transport
| Name | NLC | TLC | Distance |
|---|---|---|---|
| Plymouth | 3580 | PLY | 6.54 KM |
| Devonport | 3579 | DPT | 9.50 KM |
Nearby Listings
| Address | Price | Type | Score | Distance |
|---|---|---|---|---|
| Plymstock, Plymouth | £ 200,000 | BUY | 5 / 10 | 0.00 KM |
| Church Road, Plymstock, Plymouth | £ 270,000 | BUY | 7 / 10 | 0.04 KM |
| Church Road, Plymstock, Plymouth, Devon, PL9 | £ 180,000 | BUY | 7 / 10 | 0.06 KM |
| Plymstock, Plymouth | £ 200,000 | BUY | 5 / 10 | 0.13 KM |
| Horn Cross Road, Plymouth, Devon | £ 199,950 | BUY | 5 / 10 | 0.14 KM |
Nearby Properties
| Address | Price | Distance |
|---|---|---|
| 41 Church Road | £ 123,000 | 0.01 KM |
| 39 Church Road | £ 190,000 | 0.01 KM |
| 43 Church Road | £ 36,000 | 0.01 KM |
| 45 Church Road | £ 139,000 | 0.03 KM |
| 20 Church Road | £ 214,000 | 0.05 KM |