CL
1057 Cathcart Road, Flat 1/1, Cathcart, Glasgow, G42 9AF
By Clyde Property
£ 119,000
Reviews
3 out of 5 stars
Clyde Property says ..
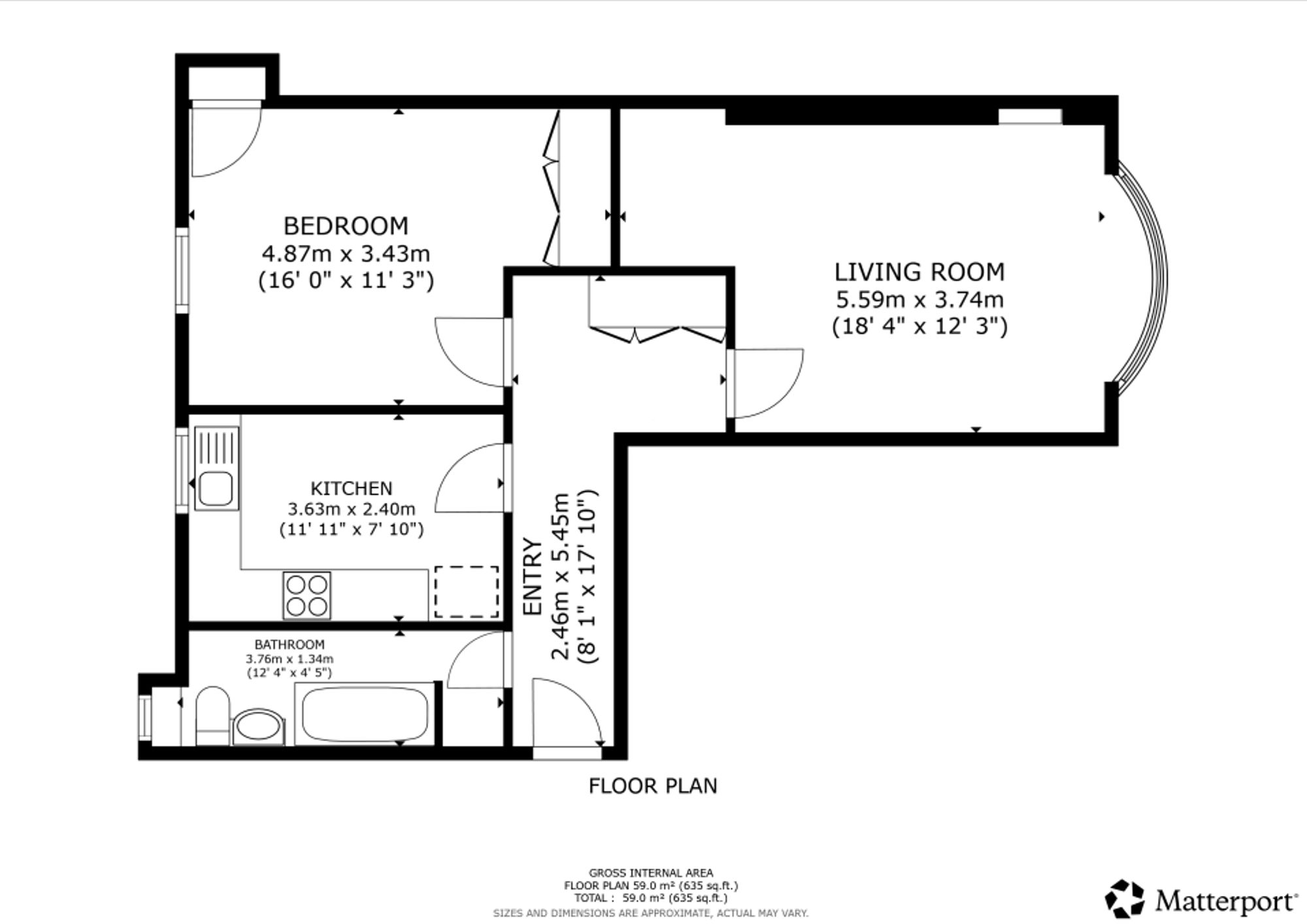
Located within an extremely popular South Side address, this attractive, one-bedroom apartment enjoys a preferred first floor position only 0.1 of a mile from Mount Florida Rail Station.Cathcart Road has long been thought of as an extremely desirable address, offering central accommodation, just ...
Property Oracle says ..
Therefore, we give this property 6 / 10. *Disclaimer: This is our option and does constitute a recommendation or financial advice. Do your own research. *
- Price
- 8
- Condition
- 8
- Location
- 7
- Land
- 1
- Bedrooms
- 1
- Bathrooms
- 1
- Sqft (est)
- 635.07
The heatmap indicates the level of crime in the area. The color of the heatmap indicates the crime severity and recency.
Metrics Year-on-Year
- Average area value
- 189,182.00 £Decreased by 1.44 %
- Est sale value
- 149,876.52 £Increased by 2.16 %
- Average area rental value
- 1,231.00 £/moIncreased by 15.59 %
- Est letting value
- 635.07 £/moUnchanged by 0.00 %
- Est rental Yield
- 7.81 %Increased by 17.27 %
- Crime Rate
- 0.00 %
from 191,952.00 £
from 146,701.17 £
from 1,065.00 £/mo
from 635.07 £/mo
from 6.66 %
from 0.00 %
Agent Activity
Clyde Property created the listing.
Images
Nearby Streets
| Name | Average Price | Average Sqft | Distance |
|---|---|---|---|
| Advie Place | £ 249,000 | 0 | 0.00 KM |
| Myrtle View Road | £ 0 | 0 | 0.00 KM |
| Kingsbarns Drive | £ 0 | 0 | 0.00 KM |
| Old Castle Gardens | £ 0 | 0 | 0.00 KM |
| Myrtle Hill Lane | £ 0 | 0 | 0.00 KM |
Nearby Transport
| Name | NLC | TLC | Distance |
|---|---|---|---|
| Mount Florida | 9819 | MFL | 0.34 KM |
| Crosshill | 9814 | COI | 0.73 KM |
| Cathcart | 9795 | CCT | 1.06 KM |
| Queens Park (Glasgow) | 9822 | QPK | 1.34 KM |
| Kings Park | 9817 | KGP | 1.52 KM |
Nearby Listings
| Address | Price | Type | Score | Distance |
|---|---|---|---|---|
| 1057 Cathcart Road, Flat 1/1, Cathcart, Glasgow, G42 9AF | £ 119,000 | BUY | 6 / 10 | 0.00 KM |
| 3 Cumming Drive, Flat 1/3, Mount Florida, Glasgow, G42 9AE | £ 109,000 | BUY | 5 / 10 | 0.04 KM |
| 3/1, 25 Stanmore Road, Mount Florida, G42 9AH | £ 249,000 | BUY | 7 / 10 | 0.04 KM |
| Stanmore Road, Glasgow, G42 | £ 249,950 | BUY | 7 / 10 | 0.05 KM |
| Stanmore Road, Mount Florida, Glasgow | £ 255,000 | BUY | Unknown | 0.06 KM |