Rampton Baseley says ..
This beautifully presented raised ground floor apartment offers a wonderful balance of period charm and modern living, with the added benefit of a superb private garden and large home office.
Property Oracle says ..
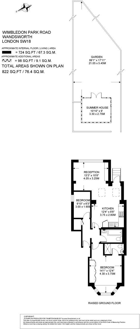
This is a spacious two-bedroom apartment located on Wimbledon Park Road in East Putney. The property is in good condition and benefits from a garden. The apartment is situated in a sought-after residential area with good access to local amenities, schools, and transportation links. The property is modern and well-presented. The apartment is reasonably priced for the area, especially considering its size.
Therefore, we give this property 7 / 10. *Disclaimer: This is our option and does constitute a recommendation or financial advice. Do your own research. *
- Price
- 7
- Condition
- 8
- Location
- 8
- Land
- 7
- Bedrooms
- 2
- Bathrooms
- 2
- Sqft (est)
- 1,771.40
The heatmap indicates the level of crime in the area. The color of the heatmap indicates the crime severity and recency.
Metrics Year-on-Year
- Average area value
- 947,495.00 £Increased by 27.87 %
- Est sale value
- 1,495,061.60 £Increased by 10.47 %
- Average area rental value
- 2,563.00 £/moDecreased by 14.37 %
- Est letting value
- 3,542.80 £/moDecreased by 33.33 %
- Est rental Yield
- 3.25 %Decreased by 32.99 %
- Crime Rate
- 4.00 %Unchanged by 0.00 %
Agent Activity
Rampton Baseley created the listing.
Nearby Schools
| Name | Type | Ofsted | Distance |
|---|---|---|---|
| St Michael'S Cofe Primary School | Voluntary Aided School | Outstanding | 0.30 KM |
| Sheringdale Primary School | Community School | Outstanding | 0.57 KM |
| Riversdale Primary School | Community School | Good | 0.59 KM |
| West Hill Primary School | Community School | Good | 0.64 KM |
| West Hill Primary School And Children'S Centre | Children's Centre | 0.71 KM |
Images
Nearby Streets
| Name | Average Price | Average Sqft | Distance |
|---|---|---|---|
| Glenville Mews | £ 0 | 0 | 0.00 KM |
| Bush Cottages | £ 0 | 0 | 0.00 KM |
| Wandle Trail | £ 0 | 0 | 0.00 KM |
| Oakhill Road | £ 785,000 | 0 | 0.00 KM |
| Wandle Trail | £ 690,000 | 0 | 0.00 KM |
Nearby Transport
| Name | NLC | TLC | Distance |
|---|---|---|---|
| Earlsfield | 5584 | EAD | 1.82 KM |
| Wandsworth Town | 5576 | WNT | 1.84 KM |
| Putney | 5603 | PUT | 2.00 KM |
| Haydons Road | 5289 | HYR | 3.19 KM |
| Imperial Wharf | 9586 | IMW | 3.35 KM |
Nearby Listings
| Address | Price | Type | Score | Distance |
|---|---|---|---|---|
| Wimbledon Park Road, SW18 | £ 675,000 | BUY | 7 / 10 | 0.00 KM |
| Wimbledon Park Road, Southfields, London, SW18 | £ 600,000 | BUY | 7 / 10 | 0.00 KM |
| Wimbledon Park Road, London | £ 539,950 | BUY | 5 / 10 | 0.01 KM |
| Wimbledon Park Road, SW18 | £ 525,000 | BUY | 6 / 10 | 0.07 KM |
| Wimbledon Park Road, London, SW18 | £ 625,000 | BUY | 6 / 10 | 0.07 KM |
Nearby Properties
| Address | Price | Distance |
|---|---|---|
| 31 Wimbledon Park Road | £ 2,225,000 | 0.02 KM |
| 59a Wimbledon Park Road | £ 450,000 | 0.02 KM |
| 63d Wimbledon Park Road | £ 286,000 | 0.02 KM |
| 65b Wimbledon Park Road | £ 425,000 | 0.02 KM |
| 35a Wimbledon Park Road | £ 691,000 | 0.02 KM |