eXp UK says ..
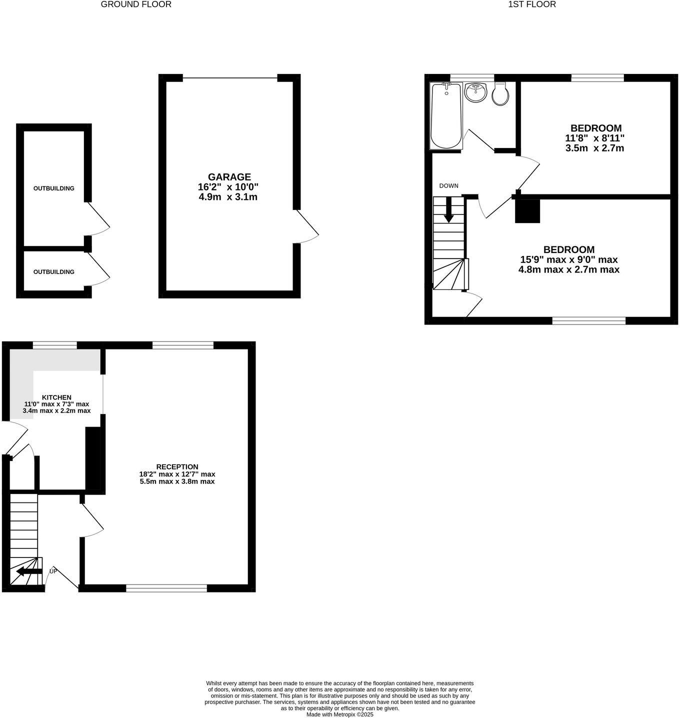
Well presented two double bedroom property with single garage situated within easy access to the M4 motorway, A419, A420 and the Great Western Hospital offered to the market with NO ONWARD CHAIN.
Property Oracle says ..
Therefore, we give this property 6 / 10. *Disclaimer: This is our option and does constitute a recommendation or financial advice. Do your own research. *
- Price
- 8
- Condition
- 6
- Location
- 7
- Land
- 6
- Bedrooms
- 2
- Bathrooms
- 1
- Sqft (est)
- 710.20
The heatmap indicates the level of crime in the area. The color of the heatmap indicates the crime severity and recency.
Metrics Year-on-Year
- Average area value
- 481,967.00 £Increased by 28.07 %
- Est sale value
- 284,080.00 £Decreased by 15.97 %
- Average area rental value
- 1,254.00 £/moIncreased by 10.97 %
- Est letting value
- 710.20 £/moUnchanged by 0.00 %
- Est rental Yield
- 3.12 %Decreased by 13.33 %
- Crime Rate
- 9.00 %Unchanged by 0.00 %
from 376,332.00 £
from 338,055.20 £
from 1,130.00 £/mo
from 710.20 £/mo
from 3.60 %
from 9.00 %
Agent Activity
eXp UK created the listing.
Nearby Schools
| Name | Type | Ofsted | Distance |
|---|---|---|---|
| Mountford Manor Primary School | Academy Converter | Good | 0.25 KM |
| New College Swindon | Further Education | 0.53 KM | |
| St Joseph'S Catholic College | Academy Converter | Good | 0.89 KM |
| Goddard Park Community Primary School | Academy Converter | Good | 1.07 KM |
| Lawn Manor Academy | Academy Converter | Requires improvement | 1.09 KM |
Images
Nearby Streets
| Name | Average Price | Average Sqft | Distance |
|---|---|---|---|
| Stuart Close | £ 0 | 0 | 0.00 KM |
| Tudor Walk | £ 0 | 0 | 0.00 KM |
| Rogers Close | £ 230,000 | 0 | 0.00 KM |
| Middleton Close | £ 0 | 0 | 0.00 KM |
| Ashley Close | £ 0 | 0 | 0.00 KM |
Nearby Transport
| Name | NLC | TLC | Distance |
|---|---|---|---|
| Swindon (Wilts) | 3333 | SWI | 3.29 KM |
Nearby Listings
| Address | Price | Type | Score | Distance |
|---|---|---|---|---|
| Frobisher Drive, Swindon, SN3 | £ 200,000 | BUY | 6 / 10 | 0.00 KM |
| Frobisher Drive, Swindon | £ 200,000 | BUY | 6 / 10 | 0.06 KM |
| Frobisher Drive, Swindon, Wiltshire, SN3 | £ 240,000 | BUY | 6 / 10 | 0.06 KM |
| Dacre Road, Swindon, SN3 | £ 200,000 | BUY | 7 / 10 | 0.14 KM |
| Walcot, Swindon | £ 260,000 | BUY | 6 / 10 | 0.19 KM |
Nearby Properties
| Address | Price | Distance |
|---|---|---|
| 135 Frobisher Drive | £ 181,000 | 0.00 KM |
| 117 Frobisher Drive | £ 33,000 | 0.00 KM |
| 123 Frobisher Drive | £ 92,000 | 0.00 KM |
| 131 Frobisher Drive | £ 185,000 | 0.00 KM |
| 125 Frobisher Drive | £ 99,500 | 0.00 KM |