Blackberry Close, Nantwich, Cheshire
By Rostons
£ 250,000
Reviews
3 out of 5 stars
Rostons says ..
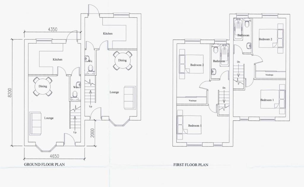
Exciting opportunity to acquire a plot of land approximately 0.24 acres with planning permission for two pairs of semi-detached houses plus a detached house and garage. Full planning permission has been granted for the two designs of properties.
Property Oracle says ..
This listing presents an opportunity to purchase a plot of land with approved planning permission for a significant residential development in Nantwich, Cheshire. The 2,500 sq ft plot is located on Blackberry Close in Wrenbury, offering a blend of convenient access to Nantwich’s amenities and a more tranquil suburban setting. The granted planning permission encompasses the construction of two pairs of semi-detached houses and a detached house with a garage, creating a substantial development prospect. This presents a lucrative opportunity for property developers or investors seeking high-potential returns, provided they can manage the development costs and risk associated with such a project. However, potential buyers should conduct their own thorough due diligence, including obtaining independent costings for the construction of the proposed buildings, and factoring in associated fees and taxes. The absence of an existing structure means this purchase carries inherent risk, with potential issues such as groundworks, unexpected costs, and planning approvals needing careful consideration before committing to the purchase. Proximity to Nantwich, known for its strong market and attractive lifestyle, adds appeal to the overall proposition, but it is important to note the lack of detailed pricing information for comparable land sales is a factor in making a thorough analysis difficult. Near by schools have a good Ofsted rating which add value for those looking to purchase for families.
Therefore, we give this property 6 / 10. *Disclaimer: This is our option and does constitute a recommendation or financial advice. Do your own research. *
- Price
- 6
- Condition
- 3
- Location
- 7
- Land
- 8
- Bedrooms
- 0
- Bathrooms
- 0
- Lot (est)
- 2,500.00
The heatmap indicates the level of crime in the area. The color of the heatmap indicates the crime severity and recency.
Metrics Year-on-Year
- Average area value
- 851,250.00 £Increased by 58.60 %
- Average area rental value
- 1,400.00 £/moIncreased by 7.78 %
- Est rental Yield
- 1.97 %Decreased by 32.07 %
- Crime Rate
- 23.00 %Unchanged by 0.00 %
Agent Activity
Rostons marked this listing as sold.
Rostons created the listing.
Nearby Schools
| Name | Type | Ofsted | Distance |
|---|---|---|---|
| Millfields Primary School And Nursery | Community School | Good | 0.59 KM |
| Malbank School And Sixth Form College | Foundation School | Requires improvement | 1.00 KM |
| St Anne'S Catholic Primary School | Voluntary Aided School | Good | 1.48 KM |
| Nantwich Primary Academy | Academy Sponsor Led | Good | 1.71 KM |
| Nantwich And Rural Children'S Centre | Children's Centre | 1.71 KM |
Images
Nearby Streets
| Name | Average Price | Average Sqft | Distance |
|---|---|---|---|
| Blackberry Close | £ 0 | 0 | 0.00 KM |
| Nightingale Place | £ 435,000 | 0 | 0.00 KM |
| Green Lane | £ 0 | 0 | 0.00 KM |
| Tudor Way | £ 460,000 | 0 | 0.00 KM |
| Crown Mews | £ 0 | 0 | 0.00 KM |
Nearby Transport
| Name | NLC | TLC | Distance |
|---|---|---|---|
| Nantwich | 1247 | NAN | 1.64 KM |
| Wrenbury | 1350 | WRE | 8.28 KM |
Nearby Listings
| Address | Price | Type | Score | Distance |
|---|---|---|---|---|
| Blackberry Close, Nantwich, Cheshire | £ 250,000 | BUY | 6 / 10 | 0.00 KM |
| Honeysuckle Drive, Edleston, Nantwich | £ 154,000 | BUY | 6 / 10 | 0.10 KM |
| Hazel Way, Edleston, Nantwich, Cheshire, CW5 | £ 250,000 | BUY | 8 / 10 | 0.10 KM |
| Hazel Way, Edleston, Nantwich | £ 565,000 | BUY | 8 / 10 | 0.12 KM |
| Blossom Grove, Edleston, CW5 | £ 525,000 | BUY | 8 / 10 | 0.12 KM |
Nearby Properties
| Address | Price | Distance |
|---|---|---|
| 138 Queens Drive | £ 258,500 | 0.08 KM |
| 166 Queens Drive | £ 105,000 | 0.08 KM |
| 198 Queens Drive | £ 183,000 | 0.08 KM |
| 146 Queens Drive | £ 162,000 | 0.08 KM |
| 184 Queens Drive | £ 98,000 | 0.08 KM |