Westlecot Road, Old Town, Swindon
CH

Westlecot Road, Old Town, Swindon

By Chappells

£ 700,000

Reviews

3 out of 5 stars

Chappells says ..

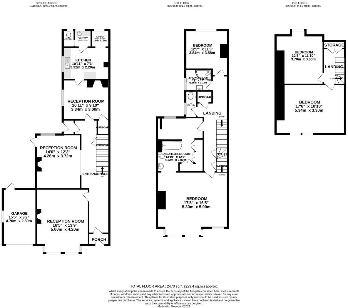
**New Instruction** NO ONWARD CHAIN ** LOCATED ON ONE OF OLD TOWN'S MOST PRESTIGIOUS TREE LINED ROADS THIS SPLENDID VICTORIAN/EDWARDIAN SEMI DETACHED HOME OFFERS GRANDEUR AND SPACE WITH ACCOMMODATION ARRANGED OVER THREE FLOORS. BOASTING AN ARRAY OF ORIGINAL PERIOD FEATURES THIS BEAUTIFUL HOME ...

Property Oracle says ..

This is a 5-bedroom semi-detached property located in the Old Town area of Swindon. The property is listed with Chappells. While the location is desirable, close to schools and amenities, the property itself appears to be in need of significant renovation. The house features a garden, driveway, and garage, adding to its appeal. However, the dated interior and lack of square footage information raise concerns about the asking price of £700,000.

Therefore, we give this property 6 / 10. *Disclaimer: This is our option and does constitute a recommendation or financial advice. Do your own research. *

Price
6
Condition
5
Location
8
Land
7
Bedrooms
5
Bathrooms
2

The heatmap indicates the level of crime in the area. The color of the heatmap indicates the crime severity and recency.

Metrics Year-on-Year

Average area value
364,023.00 £
Increased by 8.60 %
from 335,191.00 £
Average area rental value
1,137.00 £/mo
Decreased by 2.15 %
from 1,162.00 £/mo
Est rental Yield
3.75 %
Decreased by 9.86 %
from 4.16 %
Crime Rate
0.00 %
from 0.00 %

Agent Activity

  • Chappells created the listing.

Nearby Schools

NameTypeOfstedDistance
The Commonweal SchoolAcademy ConverterGood0.32 KM
Lethbridge Primary SchoolAcademy ConverterGood0.70 KM
King William Street Church Of England Primary SchoolAcademy ConverterGood0.91 KM
East Wichel Primary School & NurseryCommunity SchoolGood0.93 KM
The Croft Primary SchoolAcademy Sponsor LedOutstanding1.05 KM

Images

IMG_0782.jpg IMG_0780.jpg IMG_0792.jpg IMG_0793.jpg IMG_0794.jpg IMG_0807.jpg IMG_0808.jpg IMG_0805.jpg IMG_0799.jpg IMG_0802.jpg IMG_0811.jpg IMG_0814.jpg IMG_0815.jpg IMG_5630.jpg IMG_0784.jpg IMG_0786.jpg IMG_0777.jpg IMG_0788.jpg IMG_0789.jpg IMG_0790.jpg IMG_0775.jpg IMG_0796.jpg IMG_0800.jpg IMG_0812.jpg IMG_0773.jpg IMG_0827.jpg IMG_0825.jpg IMG_0816.jpg IMG_0823.jpg IMG_0824.jpg IMG_0828.jpg IMG_0826.jpg IMG_0771.jpg IMG_0829.jpg

Nearby Streets

NameAverage PriceAverage SqftDistance
Okus Road £ 385,00000.00 KM
Blackberry Alley £ 240,00000.00 KM
Bow Court £ 000.00 KM
Queensbury House £ 140,00000.00 KM
The Mews £ 000.00 KM

Nearby Transport

NameNLCTLCDistance
Swindon (Wilts)3333SWI1.98 KM

Nearby Listings

AddressPriceTypeScoreDistance
Westlecot Road, Old Town, Swindon £ 700,000BUY6 / 100.00 KM
Westlecot House, Westlecot Road, Swindon, SN1 £ 450,000BUY7 / 100.03 KM
Westlecot Road, Westlecot House Westlecot Road, SN1 £ 350,000BUY6 / 100.06 KM
Westlecot Road, Old Town, Swindon, Wiltshire, SN1 £ 420,000BUY6 / 100.06 KM
Westlecot House, Westlecot Road, Swindon, SN1 £ 400,000BUY6 / 100.06 KM

Nearby Properties

AddressPriceDistance
92 Goddard Avenue £ 250,0000.07 KM
86 Goddard Avenue £ 354,9950.07 KM
85 Goddard Avenue £ 247,5000.07 KM
91 Goddard Avenue £ 387,5000.07 KM
95 Goddard Avenue £ 380,0000.07 KM