Jackson Street, Baldock, Hertfordshire, SG7 5AQ
By eXp UK
£ 650,000
Reviews
2 out of 5 stars
eXp UK says ..
A charming three-bedroom, mid-Victorian home, tucked away in a quiet, yet convenient location, just a few minute's walking distance of Baldock Town Centre and train station. For all enquiries, please quote reference GM0074.
Property Oracle says ..
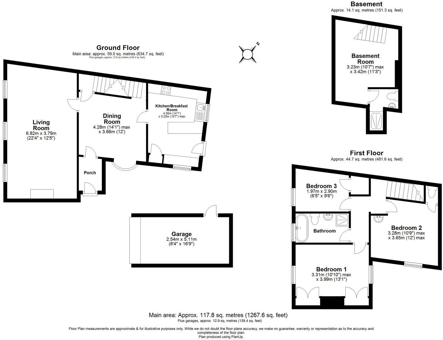
This property is a 3-bedroom, 2-bathroom semi-detached house located on Jackson Street in Baldock, Hertfordshire. The asking price of £650,000 is significantly higher than the average price of £430,000 for the area, and the price per square foot is also above average. However, the property benefits from a convenient location close to Baldock train station and several well-regarded schools, including The Knights Templar School which is rated as “Good” by Ofsted. The property itself appears to be a period property, with exposed beams and traditional features. While the interior is well-maintained, there is no evidence of recent renovations. The property includes a small, enclosed rear courtyard with a shed, which provides some outdoor space. Overall, this property offers a blend of character, location, and convenience, but the high price point may be a deterrent for some buyers.
Therefore, we give this property 5 / 10. *Disclaimer: This is our option and does constitute a recommendation or financial advice. Do your own research. *
- Price
- 4
- Condition
- 7
- Location
- 9
- Land
- 3
- Bedrooms
- 3
- Bathrooms
- 2
- Sqft (est)
- 1,267.99
The heatmap indicates the level of crime in the area. The color of the heatmap indicates the crime severity and recency.
Metrics Year-on-Year
- Average area value
- 347,000.00 £Decreased by 1.86 %
- Est sale value
- 660,622.79 £Increased by 29.28 %
- Average area rental value
- 1,311.00 £/moDecreased by 4.93 %
- Est letting value
- 1,267.99 £/moUnchanged by 0.00 %
- Est rental Yield
- 4.53 %Decreased by 3.21 %
- Crime Rate
- 25.00 %Unchanged by 0.00 %
Agent Activity
eXp UK created the listing.
Nearby Schools
| Name | Type | Ofsted | Distance |
|---|---|---|---|
| The Knights Templar School | Academy Converter | Good | 0.45 KM |
| Brandles School | Academy Special Sponsor Led | 0.75 KM | |
| Hartsfield Junior Mixed And Infant School | Community School | Good | 0.79 KM |
| Weston Way Nursery School | Local Authority Nursery School | Outstanding | 1.13 KM |
| Nh2 Holly Blue Family Centre | Children's Centre | 1.22 KM |
Images
Nearby Streets
| Name | Average Price | Average Sqft | Distance |
|---|---|---|---|
| Lavender Court | £ 275,000 | 0 | 0.00 KM |
| Grosvenor Road | £ 595,000 | 0 | 0.00 KM |
| Elm Park | £ 0 | 0 | 0.00 KM |
| Park Gardens | £ 400,000 | 0 | 0.00 KM |
| Pepys Way | £ 0 | 0 | 0.00 KM |
Nearby Transport
| Name | NLC | TLC | Distance |
|---|---|---|---|
| Baldock | 6084 | BDK | 0.26 KM |
| Letchworth Garden City | 6089 | LET | 4.59 KM |
| Hitchin | 6086 | HIT | 9.23 KM |
| Arlesey | 6171 | ARL | 9.34 KM |
| Ashwell And Morden | 6083 | AWM | 9.83 KM |
Nearby Listings
| Address | Price | Type | Score | Distance |
|---|---|---|---|---|
| Jackson Street, Baldock, Hertfordshire, SG7 5AQ | £ 650,000 | BUY | 5 / 10 | 0.00 KM |
| Norton Place, Icknield Way, Baldock SG7 5FH | £ 400,000 | BUY | Unknown | 0.08 KM |
| Aldridge Court, Baldock, SG7 | £ 675,000 | BUY | Unknown | 0.10 KM |
| Aldridge Court, Baldock, SG7 | £ 650,000 | BUY | 8 / 10 | 0.10 KM |
| Icknield Way, Baldock | £ 430,000 | BUY | Unknown | 0.10 KM |
Nearby Properties
| Address | Price | Distance |
|---|---|---|
| 4 Jackson Street | £ 350,000 | 0.01 KM |
| 8 Jackson Street | £ 130,000 | 0.01 KM |
| 6 Jackson Street | £ 340,000 | 0.01 KM |
| 7b Jackson Street | £ 390,000 | 0.01 KM |
| 4 Meeting House Lane | £ 220,000 | 0.06 KM |