RO
Mount Pleasant Road, Dartford, Kent, DA1
By Robinson Jackson
£ 325,000
Reviews
3 out of 5 stars
Robinson Jackson says ..
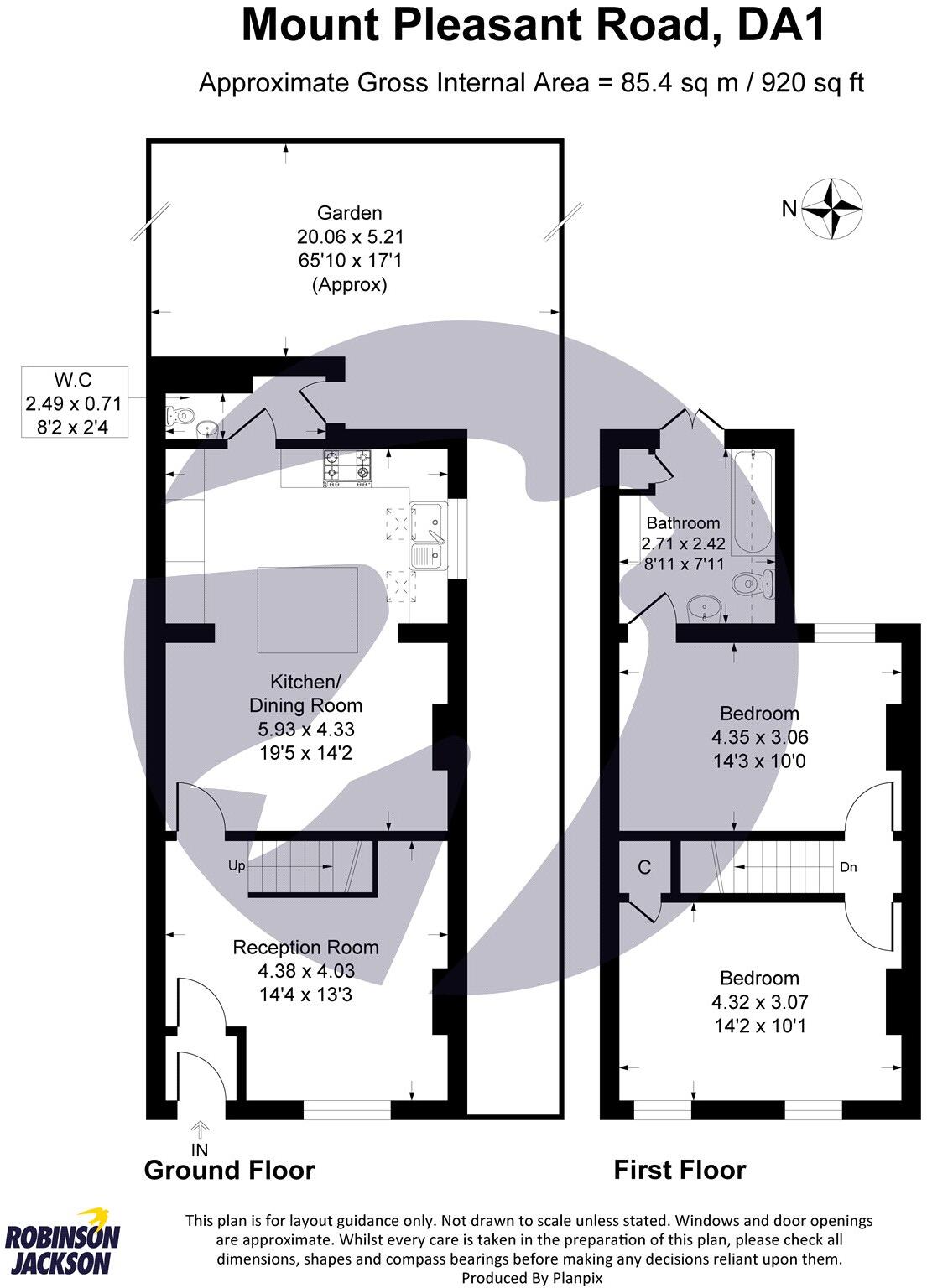
Guide Price £325,000-£350,000 Robinson Jackson are pleased to present this beautifully presented period home, ideally located within close proximity to Dartford Mainline Station and Town Centre. The property features two double bedrooms, a stylish first-floor bat...
Property Oracle says ..
Therefore, we give this property 7 / 10. *Disclaimer: This is our option and does constitute a recommendation or financial advice. Do your own research. *
- Price
- 6
- Condition
- 8
- Location
- 7
- Land
- 7
- Bedrooms
- 2
- Bathrooms
- 1
- Sqft (est)
- 920.00
The heatmap indicates the level of crime in the area. The color of the heatmap indicates the crime severity and recency.
Metrics Year-on-Year
- Average area value
- 245,074.00 £Decreased by 15.93 %
- Est sale value
- 216,200.00 £Decreased by 37.50 %
- Average area rental value
- 1,254.00 £/moDecreased by 5.43 %
- Est letting value
- 920.00 £/moUnchanged by 0.00 %
- Est rental Yield
- 6.14 %Increased by 12.45 %
- Crime Rate
- 11.00 %Unchanged by 0.00 %
from 291,529.00 £
from 345,920.00 £
from 1,326.00 £/mo
from 920.00 £/mo
from 5.46 %
from 11.00 %
Agent Activity
Robinson Jackson created the listing.
Nearby Schools
| Name | Type | Ofsted | Distance |
|---|---|---|---|
| Brent Children'S Centre | Children's Centre | 0.13 KM | |
| Dartford Primary Academy | Academy Converter | Good | 0.77 KM |
| River Mill Primary School | Free Schools | 0.89 KM | |
| Temple Hill Primary Academy | Academy Converter | Good | 1.19 KM |
| Temple Hill Children'S Centre | Children's Centre | 1.19 KM |
Images
Nearby Streets
| Name | Average Price | Average Sqft | Distance |
|---|---|---|---|
| St Vincents Villas | £ 0 | 0 | 0.00 KM |
| Station Approach | £ 0 | 0 | 0.00 KM |
| Market Place | £ 0 | 0 | 0.00 KM |
| High Street | £ 215,000 | 0 | 0.00 KM |
| Bulls Head Yard | £ 0 | 0 | 0.00 KM |
Nearby Transport
| Name | NLC | TLC | Distance |
|---|---|---|---|
| Dartford | 5101 | DFD | 0.45 KM |
| Purfleet | 7453 | PFL | 4.30 KM |
| Slade Green | 5154 | SGR | 4.36 KM |
| Stone Crossing | 5248 | SCG | 4.61 KM |
| Crayford | 5100 | CRY | 4.84 KM |
Nearby Listings
| Address | Price | Type | Score | Distance |
|---|---|---|---|---|
| Mount Pleasant Road, Dartford, Kent, DA1 | £ 325,000 | BUY | 7 / 10 | 0.00 KM |
| Mount Pleasant Road, Dartford, DA1 | £ 400,000 | BUY | 6 / 10 | 0.00 KM |
| Mount Pleasant Road, Dartford, Kent | £ 350,000 | BUY | Unknown | 0.01 KM |
| Mount Pleasant Road, Dartford, Kent | £ 231,500 | BUY | 6 / 10 | 0.01 KM |
| Mount Pleasant Road, Dartford, Kent | £ 250,000 | BUY | 4 / 10 | 0.01 KM |
Nearby Properties
| Address | Price | Distance |
|---|---|---|
| 65 Mount Pleasant Road | £ 128,000 | 0.01 KM |
| 25 Mount Pleasant Road | £ 270,000 | 0.01 KM |
| 57 Mount Pleasant Road | £ 342,000 | 0.01 KM |
| 89 Mount Pleasant Road | £ 231,000 | 0.01 KM |
| 37 Mount Pleasant Road | £ 229,950 | 0.01 KM |