eXp UK says ..
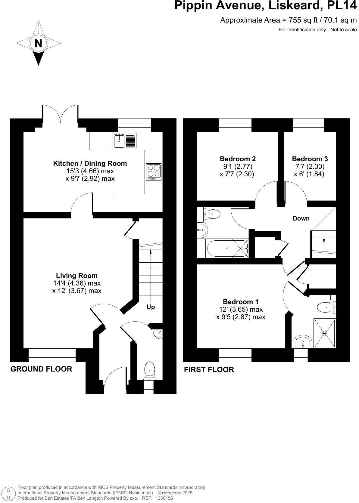
A beautifully presented three-bedroom semi-detached home, tucked away in a private position within a popular residential development on the outskirts of Liskeard. The property features a stylish and contemporary interior, off-road parking for two cars, and a low-maintenance south-facing garden...
Property Oracle says ..
This is a three-bedroom semi-detached house in Liskeard, Cornwall. The property is in good condition and has a small garden. It is located close to schools and transportation links. The house has two bathrooms. The listing price is £225,000, which seems reasonable for the area. The property is modern and well-maintained, making it an attractive option for potential buyers.
Therefore, we give this property 6 / 10. *Disclaimer: This is our option and does constitute a recommendation or financial advice. Do your own research. *
- Price
- 7
- Condition
- 8
- Location
- 6
- Land
- 5
- Bedrooms
- 3
- Bathrooms
- 2
The heatmap indicates the level of crime in the area. The color of the heatmap indicates the crime severity and recency.
Metrics Year-on-Year
- Average area value
- 380,500.00 £Decreased by 7.95 %
- Average area rental value
- 1,550.00 £/moIncreased by 31.91 %
- Est rental Yield
- 4.89 %Increased by 43.40 %
- Crime Rate
- 12.00 %Unchanged by 0.00 %
Agent Activity
eXp UK created the listing.
Nearby Schools
| Name | Type | Ofsted | Distance |
|---|---|---|---|
| Liskeard School And Community College | Academy Converter | Good | 0.99 KM |
| St Martin'S Cofe Primary School | Academy Sponsor Led | Requires improvement | 1.19 KM |
| Caradon Alternative Provision Academy | Academy Alternative Provision Converter | Good | 1.56 KM |
| Liskeard & Looe Children'S Centre | Children's Centre | 1.73 KM | |
| Taliesin Education Ltd | Other Independent Special School | Requires improvement | 2.23 KM |
Images
Nearby Streets
| Name | Average Price | Average Sqft | Distance |
|---|---|---|---|
| Mispickle Road | £ 220,000 | 0 | 0.00 KM |
| Copperfield | £ 0 | 0 | 0.00 KM |
| Malachite Avenue | £ 0 | 0 | 0.00 KM |
| Quartz Close | £ 0 | 0 | 0.00 KM |
| WitheyBrook Lane | £ 230,000 | 0 | 0.00 KM |
Nearby Transport
| Name | NLC | TLC | Distance |
|---|---|---|---|
| Liskeard | 3573 | LSK | 2.34 KM |
| Coombe Junction Halt | 3570 | COE | 3.41 KM |
| St Keyne Wishing Well Halt | 3572 | SKN | 4.56 KM |
| Causeland | 3568 | CAU | 6.52 KM |
| Menheniot | 3576 | MEN | 6.68 KM |
Nearby Listings
| Address | Price | Type | Score | Distance |
|---|---|---|---|---|
| Pippin Avenue, Liskeard, PL14 | £ 225,000 | BUY | 6 / 10 | 0.00 KM |
| Tom Putt Mews, Liskeard, Cornwall, PL14 | £ 190,000 | BUY | 7 / 10 | 0.06 KM |
| Pippin Avenue, Liskeard | £ 325,000 | BUY | 7 / 10 | 0.06 KM |
| Pippin Avenue, Liskeard, Cornwall, PL14 | £ 350,000 | BUY | 6 / 10 | 0.06 KM |
| Clover Drive, Liskeard, Cornwall, PL14 | £ 180,000 | BUY | 7 / 10 | 0.09 KM |
Nearby Properties
| Address | Price | Distance |
|---|---|---|
| 29 Pippin Avenue | £ 215,000 | 0.06 KM |
| 4 Pippin Avenue | £ 230,750 | 0.06 KM |
| 31 Pippin Avenue | £ 186,000 | 0.09 KM |
| 6 Tom Putt Mews | £ 171,000 | 0.10 KM |
| 5 Hockings Green | £ 245,000 | 0.15 KM |