Hunters says ..
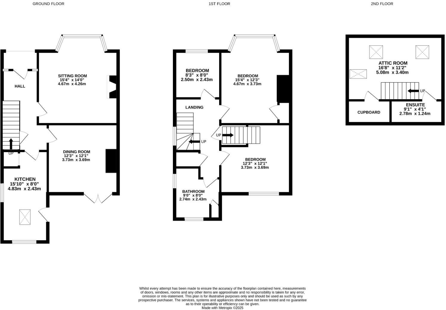
A striking three/four bedroom semi-detached home offers a perfect blend of character and modern living. Built in 1929, the property exudes a sense of history while providing ample space for a growing family or those seeking a comfortable home and is situated with a few minutes walk of Hythe's cha...
Property Oracle says ..
This property is a 3 bedroom, 2 bathroom semi-detached house located on Bartholomew Street in Hythe, Kent. The house is presented in good condition and has been recently updated, giving it a modern feel while retaining some traditional features. The property benefits from a good-sized garden, which is a significant advantage in this market. The location is also very desirable, being close to local schools, shops and transport links. While the average price per sqft in the area is £393, this property is slightly above average, though given the condition and the size of the garden, the asking price of £500,000 seems reasonable.
Therefore, we give this property 8 / 10. *Disclaimer: This is our option and does constitute a recommendation or financial advice. Do your own research. *
- Price
- 7
- Condition
- 9
- Location
- 9
- Land
- 8
- Bedrooms
- 3
- Bathrooms
- 2
- Sqft (est)
- 1,628.58
The heatmap indicates the level of crime in the area. The color of the heatmap indicates the crime severity and recency.
Metrics Year-on-Year
- Average area value
- 695,750.00 £Increased by 35.80 %
- Est sale value
- 949,462.14 £Increased by 15.22 %
- Average area rental value
- 1,400.00 £/moDecreased by 11.56 %
- Est letting value
- 1,628.58 £/moUnchanged by 0.00 %
- Est rental Yield
- 2.41 %Decreased by 35.04 %
- Crime Rate
- 29.00 %Unchanged by 0.00 %
Agent Activity
Hunters created the listing.
Nearby Schools
| Name | Type | Ofsted | Distance |
|---|---|---|---|
| Hythe Bay Children'S Centre | Children's Centre | 0.46 KM | |
| Hythe Bay Cofe Primary School | Voluntary Controlled School | Good | 0.52 KM |
| Saltwood Cofe Primary School | Voluntary Aided School | Outstanding | 0.96 KM |
| St Augustine'S Catholic Primary School | Voluntary Aided School | Good | 1.20 KM |
| Brockhill Park Performing Arts College | Academy Converter | Good | 1.97 KM |
Images
Nearby Streets
| Name | Average Price | Average Sqft | Distance |
|---|---|---|---|
| Oak Hill Passage | £ 1,250,000 | 0 | 0.00 KM |
| Chapel Mews | £ 0 | 0 | 0.00 KM |
| Church Rise | £ 549,975 | 0 | 0.00 KM |
| Church Hill | £ 600,000 | 0 | 0.00 KM |
| Mount Street | £ 325,000 | 0 | 0.00 KM |
Nearby Transport
| Name | NLC | TLC | Distance |
|---|---|---|---|
| Sandling | 5025 | SDG | 2.61 KM |
| Westenhanger | 5030 | WHA | 5.36 KM |
| Folkestone West | 5027 | FKW | 8.22 KM |
| Folkestone Central | 5035 | FKC | 9.89 KM |
Nearby Listings
| Address | Price | Type | Score | Distance |
|---|---|---|---|---|
| Bartholomew Street, Hythe | £ 500,000 | BUY | 8 / 10 | 0.00 KM |
| Bartholomew Street, Hythe, Kent | £ 80,000 | BUY | 6 / 10 | 0.05 KM |
| Bartholomew Stree, Hythe, Kent | £ 56,500 | BUY | Unknown | 0.05 KM |
| Bartholomew Street, Hythe | £ 87,000 | BUY | 5 / 10 | 0.06 KM |
| The Maltings, High Street, Hythe, Kent | £ 260,000 | BUY | 6 / 10 | 0.07 KM |
Nearby Properties
| Address | Price | Distance |
|---|---|---|
| 30 Hillside Street | £ 363,500 | 0.07 KM |
| 18 Hillside Street | £ 370,000 | 0.07 KM |
| 14 Hillside Street | £ 360,000 | 0.07 KM |
| 22 Hillside Street | £ 181,000 | 0.07 KM |
| 28 Hillside Street | £ 250,000 | 0.07 KM |