haart says ..
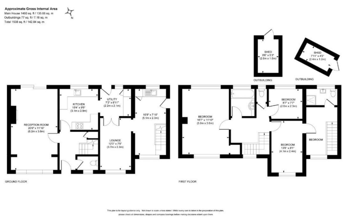
Offering flexible living with a self-contained annexe, this beautifully maintained detached home in the heart of Knaphill is ideal for families, extended households, or those seeking additional income potential. Enjoy nearby shops, green spaces, and easy access to London via Brookwood Station
Property Oracle says ..
Therefore, we give this property 7 / 10. *Disclaimer: This is our option and does constitute a recommendation or financial advice. Do your own research. *
- Price
- 7
- Condition
- 8
- Location
- 8
- Land
- 7
- Bedrooms
- 4
- Bathrooms
- 3
- Sqft (est)
- 848.67
The heatmap indicates the level of crime in the area. The color of the heatmap indicates the crime severity and recency.
Metrics Year-on-Year
- Average area value
- 586,400.00 £Increased by 18.76 %
- Est sale value
- 403,966.92 £Increased by 6.01 %
- Average area rental value
- 2,150.00 £/moIncreased by 9.47 %
- Est letting value
- 848.67 £/moUnchanged by 0.00 %
- Est rental Yield
- 4.40 %Decreased by 7.76 %
- Crime Rate
- 4.00 %Unchanged by 0.00 %
from 493,776.00 £
from 381,052.83 £
from 1,964.00 £/mo
from 848.67 £/mo
from 4.77 %
from 4.00 %
Agent Activity
haart created the listing.
Nearby Schools
| Name | Type | Ofsted | Distance |
|---|---|---|---|
| St John'S Primary School And Sure Start Children'S Centre | Children's Centre | 0.30 KM | |
| St John'S Primary School | Academy Sponsor Led | Requires improvement | 0.30 KM |
| St Hugh Of Lincoln Catholic Primary School | Academy Converter | Good | 0.62 KM |
| The Oaktree School | Academy Converter | 0.80 KM | |
| The Hermitage School | Academy Converter | Good | 0.89 KM |
Images
Nearby Streets
| Name | Average Price | Average Sqft | Distance |
|---|---|---|---|
| Beechwood Close | £ 0 | 0 | 0.00 KM |
| Oakway | £ 475,000 | 0 | 0.00 KM |
| Elmgrove Close | £ 425,000 | 0 | 0.00 KM |
| Oakwood Road | £ 0 | 0 | 0.00 KM |
| Rose Lodge | £ 0 | 0 | 0.00 KM |
Nearby Transport
| Name | NLC | TLC | Distance |
|---|---|---|---|
| Brookwood | 5687 | BKO | 3.27 KM |
| Worplesdon | 5686 | WPL | 4.29 KM |
| Woking | 5685 | WOK | 5.79 KM |
| Longcross | 5674 | LNG | 7.78 KM |
| Sunningdale | 5671 | SNG | 8.76 KM |
Nearby Listings
| Address | Price | Type | Score | Distance |
|---|---|---|---|---|
| Victoria Road, Woking | £ 550,000 | BUY | 7 / 10 | 0.00 KM |
| Victoria Road, Woking | £ 750,000 | BUY | 8 / 10 | 0.00 KM |
| Knaphill | £ 385,000 | BUY | 6 / 10 | 0.12 KM |
| Burnham Road, Knaphill, Woking, Surrey, GU21 | £ 439,950 | BUY | 6 / 10 | 0.12 KM |
| Victoria Road, Knaphill, Woking, Surrey, GU21 | £ 750,000 | BUY | 7 / 10 | 0.14 KM |
Nearby Properties
| Address | Price | Distance |
|---|---|---|
| 6 Inkerman Road | £ 250,000 | 0.05 KM |
| 8 Inkerman Road | £ 350,000 | 0.05 KM |
| 10 Inkerman Road | £ 230,000 | 0.05 KM |
| 31a Victoria Road | £ 492,500 | 0.12 KM |
| 9 Victoria Road | £ 169,950 | 0.12 KM |