Chorley New Road, Horwich, Bolton
By Ben Rose
£ 139,995
Reviews
3 out of 5 stars
Ben Rose says ..
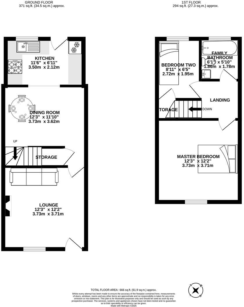
Ben Rose Estate Agents are delighted to present this charming mid-terrace, two-bedroom home to the market, situated in the highly desirable area of Horwich, Bolton. Perfectly suited to first-time buyers, the property offers a welcoming living space, thoughtfully designed for comfort and practical...
Property Oracle says ..
This is a terraced property located on Chorley New Road, Horwich, Bolton. It features two bedrooms and one bathroom, with a total square footage of 666.29 sqft. The property includes a rear garden. While the property has some modern updates, there is room for improvement, particularly in the bathroom. The location is convenient, with access to local amenities, schools, and transportation. The asking price of £139,995 appears reasonable given the property’s features and location.
Therefore, we give this property 7 / 10. *Disclaimer: This is our option and does constitute a recommendation or financial advice. Do your own research. *
- Price
- 8
- Condition
- 6
- Location
- 7
- Land
- 7
- Bedrooms
- 2
- Bathrooms
- 1
- Sqft (est)
- 666.29
The heatmap indicates the level of crime in the area. The color of the heatmap indicates the crime severity and recency.
Metrics Year-on-Year
- Average area value
- 268,399.00 £Increased by 2.13 %
- Est sale value
- 195,889.26 £Increased by 23.53 %
- Average area rental value
- 911.00 £/moDecreased by 2.57 %
- Est letting value
- 666.29 £/mo
- Est rental Yield
- 4.07 %Decreased by 4.68 %
- Crime Rate
- 2.00 %Unchanged by 0.00 %
Agent Activity
Ben Rose created the listing.
Nearby Schools
| Name | Type | Ofsted | Distance |
|---|---|---|---|
| Horwich Start Well Link Site | Children's Centre Linked Site | 0.43 KM | |
| Beacon Primary School | Academy Sponsor Led | 0.47 KM | |
| St Catherine'S Cofe Primary School | Academy Converter | 0.70 KM | |
| Rivington And Blackrod High School | Academy Converter | Requires improvement | 1.16 KM |
| Cumberland School | Other Independent Special School | Good | 1.22 KM |
Images
Nearby Streets
| Name | Average Price | Average Sqft | Distance |
|---|---|---|---|
| Back Crown Street | £ 0 | 0 | 0.00 KM |
| Bosworth Street | £ 0 | 0 | 0.00 KM |
| Hope Street | £ 119,000 | 0 | 0.00 KM |
| Back Richmond Street | £ 180,000 | 0 | 0.00 KM |
| Richmond Street | £ 0 | 0 | 0.00 KM |
Nearby Transport
| Name | NLC | TLC | Distance |
|---|---|---|---|
| Blackrod | 2732 | BLK | 2.10 KM |
| Horwich Parkway | 8720 | HWI | 2.90 KM |
| Adlington (Lancashire) | 2641 | ADL | 5.72 KM |
| Westhoughton | 2619 | WHG | 5.95 KM |
| Hindley | 2398 | HIN | 6.96 KM |
Nearby Listings
| Address | Price | Type | Score | Distance |
|---|---|---|---|---|
| Chorley New Road, Horwich, Bolton | £ 139,995 | BUY | 7 / 10 | 0.00 KM |
| Chorley New Road, Horwich, Bolton, Greater Manchester, BL6 | £ 185,000 | BUY | 6 / 10 | 0.02 KM |
| Chorley New Road, Horwich, Bolton, Lancashire, BL6 | £ 190,000 | BUY | 5 / 10 | 0.07 KM |
| Chorley New Road, BL6 | £ 190,000 | BUY | 5 / 10 | 0.10 KM |
| Chorley New Road, Horwich, Bolton | £ 160,000 | BUY | Unknown | 0.12 KM |
Nearby Properties
| Address | Price | Distance |
|---|---|---|
| 56 Chorley New Road | £ 127,000 | 0.06 KM |
| 24 Chorley New Road | £ 131,000 | 0.06 KM |
| 40 Chorley New Road | £ 132,500 | 0.06 KM |
| 52 Chorley New Road | £ 100,000 | 0.06 KM |
| 62 Chorley New Road | £ 107,500 | 0.06 KM |