Northwood says ..
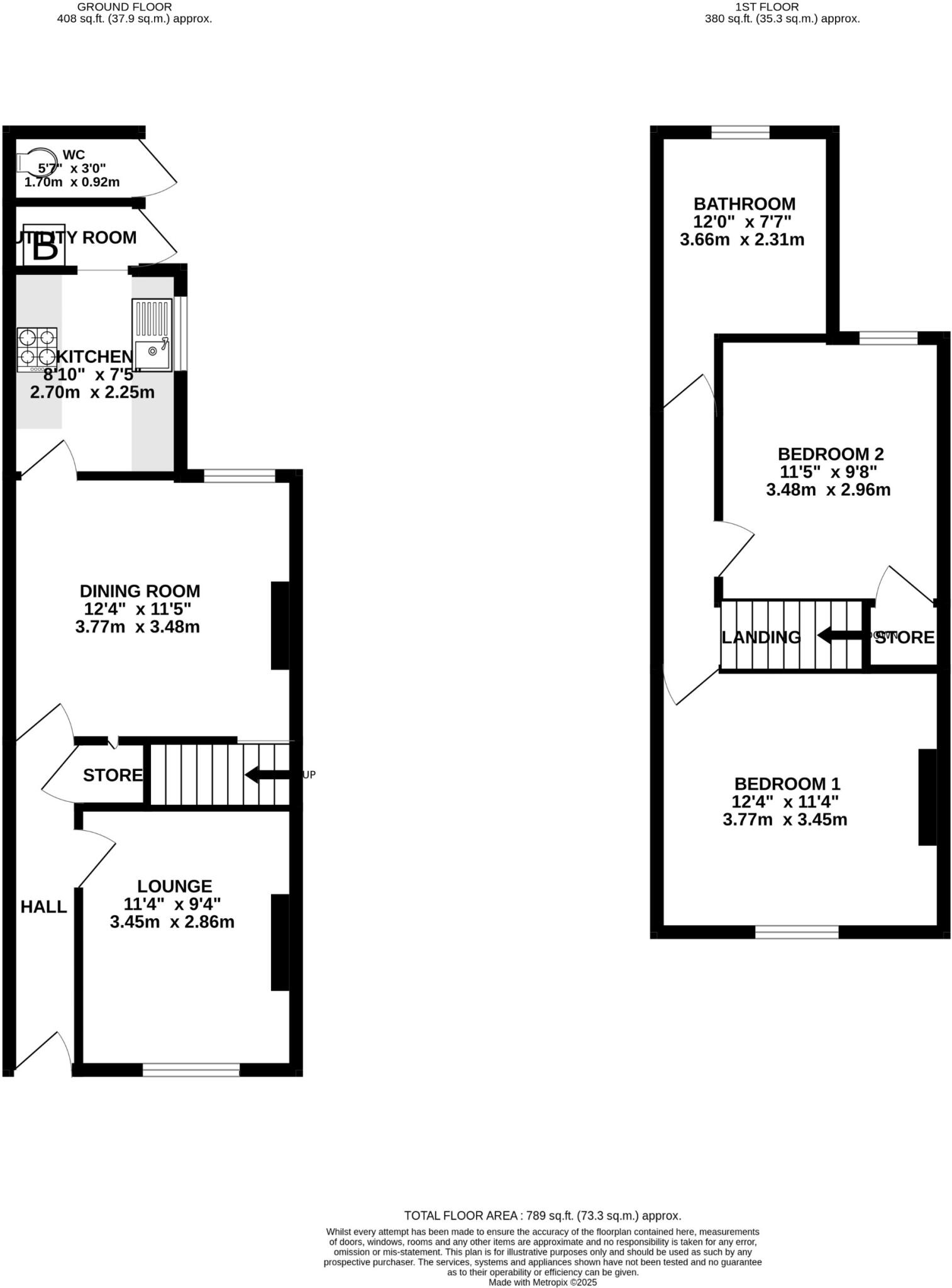
This two-bedroom mid-terrace on Crown Street, Derby City Centre, is ideal for investors, first-time buyers, or downsizers. Vacant with no chain, it offers a lounge, dining room, kitchen, utility, and rear yard. Upstairs are two double bedrooms and a bathroom.
Property Oracle says ..
This is a two-bedroom terraced house located in Abbey, Derby. The property is in a traditional style and requires some modernisation. It features a bathroom, a rear garden, and is situated in a location with access to schools and transportation. The asking price of £110,000 appears to be competitive, especially considering the lower price per square foot compared to the area average. While the property needs some work, it presents an opportunity for buyers looking to add value through renovation.
Therefore, we give this property 6 / 10. *Disclaimer: This is our option and does constitute a recommendation or financial advice. Do your own research. *
- Price
- 8
- Condition
- 5
- Location
- 7
- Land
- 4
- Bedrooms
- 2
- Bathrooms
- 1
- Sqft (est)
- 789.00
The heatmap indicates the level of crime in the area. The color of the heatmap indicates the crime severity and recency.
Metrics Year-on-Year
- Average area value
- 350,323.00 £Decreased by 1.18 %
- Est sale value
- 340,059.00 £Increased by 20.73 %
- Average area rental value
- 1,334.00 £/moDecreased by 2.49 %
- Est letting value
- 789.00 £/moUnchanged by 0.00 %
- Est rental Yield
- 4.57 %Decreased by 1.30 %
- Crime Rate
- 4.00 %Unchanged by 0.00 %
Agent Activity
Northwood created the listing.
Nearby Schools
| Name | Type | Ofsted | Distance |
|---|---|---|---|
| Firs Primary School | Academy Sponsor Led | 0.32 KM | |
| Babington Children'S Centre | Children's Centre | 0.47 KM | |
| Becket Primary School | Community School | Good | 0.50 KM |
| Stonehill Nursery School | Local Authority Nursery School | Good | 0.54 KM |
| Becket Children'S Centre | Children's Centre | 0.57 KM |
Images
Nearby Streets
| Name | Average Price | Average Sqft | Distance |
|---|---|---|---|
| Summerbrook Court | £ 120,000 | 0 | 0.00 KM |
| Percy Street | £ 0 | 0 | 0.00 KM |
| Boyer Walk | £ 0 | 0 | 0.00 KM |
| Arbor Close | £ 119,950 | 0 | 0.00 KM |
| Boyer Street | £ 0 | 0 | 0.00 KM |
Nearby Transport
| Name | NLC | TLC | Distance |
|---|---|---|---|
| Peartree | 1687 | PEA | 2.59 KM |
| Derby | 1823 | DBY | 2.77 KM |
| Duffield | 1691 | DFI | 8.21 KM |
| Spondon | 1699 | SPO | 8.55 KM |
Nearby Listings
| Address | Price | Type | Score | Distance |
|---|---|---|---|---|
| Crown Street, Derby, DE22 | £ 110,000 | BUY | 6 / 10 | 0.00 KM |
| Crown Street, Derby | £ 140,000 | BUY | 5 / 10 | 0.03 KM |
| Crown Street, Derby, DE22 | £ 190,000 | BUY | 6 / 10 | 0.04 KM |
| Riddings Street | £ 140,000 | BUY | 5 / 10 | 0.04 KM |
| Crown Street, Derby, DE22 | £ 145,000 | BUY | Unknown | 0.04 KM |
Nearby Properties
| Address | Price | Distance |
|---|---|---|
| 6 Crown Street | £ 108,000 | 0.04 KM |
| 16 Crown Street | £ 145,000 | 0.04 KM |
| 25 Crown Street | £ 134,950 | 0.04 KM |
| 20 Crown Street | £ 125,000 | 0.04 KM |
| 24 Crown Street | £ 120,000 | 0.04 KM |