Westlands, Bransgore, Christchurch, Dorset, BH23
By Slades Estate Agents
£ 385,000
Reviews
3 out of 5 stars
Slades Estate Agents says ..
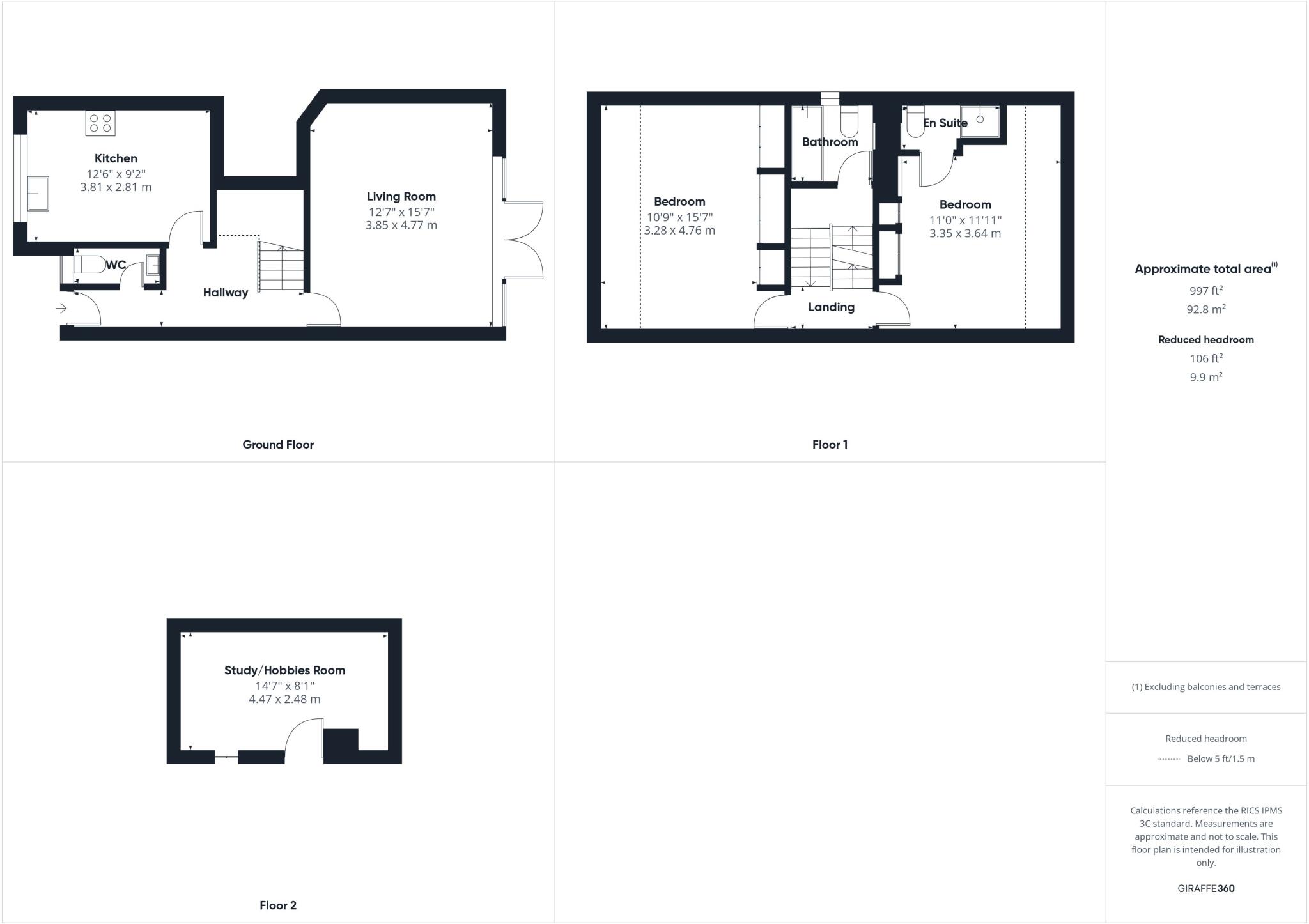
AN ATTRACTIVE, CONTEMPORARY STYLED, TASTEFULLY PRESENTED CHESHIRE ROBBINS DESIGNED TWO/THREE BEDEROOM SEMI DETACHED HOME WITH A WESTERLY FACING REAR GARDEN, SITUATED IN A SELECT MODERN DEVELOPMENT, WITHIN A HIGHLY FAVOURED VILLAGE LOCATION.
Property Oracle says ..
This semi-detached property in Bransgore offers a blend of comfortable living and convenient access to local amenities. The house features two bedrooms and two bathrooms, making it suitable for small families or couples. The presence of a garden enhances its appeal, providing outdoor space for relaxation and recreation. While the property is generally well-maintained, some areas could benefit from modernization to maximize its potential. The location is advantageous, with proximity to schools and transportation links, making it a desirable option for those seeking a balance between rural and urban living. The price is competitive within the local market, reflecting the property’s features and location.
Therefore, we give this property 6 / 10. *Disclaimer: This is our option and does constitute a recommendation or financial advice. Do your own research. *
- Price
- 7
- Condition
- 7
- Location
- 7
- Land
- 6
- Bedrooms
- 2
- Bathrooms
- 2
- Sqft (est)
- 998.89
The heatmap indicates the level of crime in the area. The color of the heatmap indicates the crime severity and recency.
Metrics Year-on-Year
- Average area value
- 471,111.00 £Increased by 12.11 %
- Est sale value
- 538,401.71 £Increased by 34.75 %
- Average area rental value
- 1,283.00 £/moDecreased by 19.91 %
- Est letting value
- 998.89 £/moUnchanged by 0.00 %
- Est rental Yield
- 3.27 %Decreased by 28.45 %
- Crime Rate
- 12.00 %Unchanged by 0.00 %
Agent Activity
Slades Estate Agents created the listing.
Nearby Schools
| Name | Type | Ofsted | Distance |
|---|---|---|---|
| Bransgore Church Of England Primary School | Academy Converter | 1.43 KM | |
| The Fortune Centre Of Riding Therapy | Special Post 16 Institution | Good | 2.82 KM |
| Sopley Primary School | Community School | Good | 3.25 KM |
| Burton Church Of England Primary School | Voluntary Controlled School | Good | 3.78 KM |
| St Joseph'S Catholic Primary School, Christchurch | Voluntary Aided School | Good | 3.93 KM |
Images
Nearby Streets
| Name | Average Price | Average Sqft | Distance |
|---|---|---|---|
| Benson Close | £ 0 | 0 | 0.00 KM |
Nearby Transport
| Name | NLC | TLC | Distance |
|---|---|---|---|
| Hinton Admiral | 5880 | HNA | 4.33 KM |
| Christchurch | 5879 | CHR | 6.50 KM |
| New Milton | 5881 | NWM | 9.75 KM |
Nearby Listings
| Address | Price | Type | Score | Distance |
|---|---|---|---|---|
| Westlands, Bransgore, Christchurch, Dorset, BH23 | £ 385,000 | BUY | 6 / 10 | 0.00 KM |
| Westlands, Bransgore, Christchurch, Dorset, BH23 | £ 369,950 | BUY | 6 / 10 | 0.00 KM |
| Westlands Court, Bransgore, Christchurch, BH23 | £ 215,000 | BUY | 5 / 10 | 0.00 KM |
| Westlands, Bransgore, Christchurch, BH23 | £ 400,000 | BUY | 7 / 10 | 0.00 KM |
| Westlands, Bransgore, Christchurch, Dorset, BH23 | £ 350,000 | BUY | 6 / 10 | 0.03 KM |
Nearby Properties
| Address | Price | Distance |
|---|---|---|
| 3 Westlands | £ 285,000 | 0.01 KM |
| 14 Westlands | £ 248,000 | 0.01 KM |
| 47 Westlands | £ 289,950 | 0.01 KM |
| 25 Westlands | £ 160,000 | 0.01 KM |
| 17 Westlands | £ 178,000 | 0.01 KM |