SeOUL Residential says ..
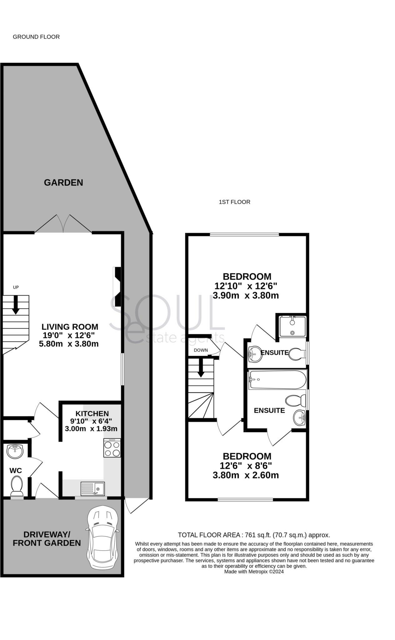
Nestled in a peaceful Sutton cul-de-sac, this modern 2-bedroom semi-detached home boasts spacious living, a bright conservatory, sunlit garden, and two en-suite bedrooms. With parking, excellent amenities, and nearby schools, it`s perfect for families, first-time buyers, or downsizers.
Property Oracle says ..
This 2-bedroom semi-detached house in Sutton North, Greater London, presents a mixed bag. The location is its strongest asset, situated near highly-rated schools and with good transport links. However, the property’s condition requires some attention. The kitchen and bathrooms appear dated, suggesting potential renovation needs to enhance the property’s desirability and value. The garden space is present, but its size is modest. The list price appears reasonable, but additional property information, specifically surrounding comparable properties with square footage data, would allow for more accurate valuation. Potential buyers should factor in the cost of updating the kitchen and bathrooms, which could increase the total investment. Overall, the property represents a viable option for those seeking a location advantage and prepared for minor renovation projects. The absence of precise plot size data and lack of detailed pricing data for comparable properties slightly limits the ability to form a completely comprehensive valuation.
Therefore, we give this property 5 / 10. *Disclaimer: This is our option and does constitute a recommendation or financial advice. Do your own research. *
- Price
- 7
- Condition
- 5
- Location
- 7
- Land
- 4
- Bedrooms
- 2
- Bathrooms
- 2
- Sqft (est)
- 761.01
The heatmap indicates the level of crime in the area. The color of the heatmap indicates the crime severity and recency.
Metrics Year-on-Year
- Average area value
- 364,000.00 £Decreased by 29.95 %
- Est sale value
- 203,189.67 £Decreased by 53.08 %
- Average area rental value
- 1,700.00 £/moDecreased by 10.62 %
- Est letting value
- 761.01 £/moDecreased by 50.00 %
- Est rental Yield
- 5.60 %Increased by 27.56 %
- Crime Rate
- 0.00 %
Agent Activity
SeOUL Residential created the listing.
Nearby Schools
| Name | Type | Ofsted | Distance |
|---|---|---|---|
| Greenshaw High School | Academy Converter | Good | 0.39 KM |
| All Saints Benhilton Cofe Primary School | Voluntary Aided School | Good | 0.99 KM |
| Carshalton Boys Sports College | Academy Converter | Good | 1.02 KM |
| Muschamp Children'S Centre | Children's Centre | 1.04 KM | |
| Rushy Meadow Primary Academy | Academy Sponsor Led | Good | 1.08 KM |
Images
Nearby Streets
| Name | Average Price | Average Sqft | Distance |
|---|---|---|---|
| Temple Way | £ 0 | 0 | 0.00 KM |
| Florian Avenue | £ 0 | 0 | 0.00 KM |
| Dovercourt Lane | £ 0 | 0 | 0.00 KM |
| Waterloo Road | £ 590,000 | 0 | 0.00 KM |
| All Saints Road | £ 400,000 | 0 | 0.00 KM |
Nearby Transport
| Name | NLC | TLC | Distance |
|---|---|---|---|
| Sutton Common | 5436 | SUC | 1.51 KM |
| Sutton | 5385 | SUO | 1.76 KM |
| Carshalton | 5405 | CSH | 1.89 KM |
| Carshalton Beeches | 5406 | CSB | 2.25 KM |
| St Helier | 5290 | SIH | 2.58 KM |
Nearby Listings
| Address | Price | Type | Score | Distance |
|---|---|---|---|---|
| Nash Close, Sutton | £ 490,000 | BUY | 5 / 10 | 0.00 KM |
| Hillview Road, Sutton, Surrey, SM1 | £ 595,000 | BUY | 7 / 10 | 0.12 KM |
| Hillview Road, Sutton | £ 600,000 | BUY | Unknown | 0.17 KM |
| Benhill Road, Sutton, SM1 | £ 575,000 | BUY | 7 / 10 | 0.19 KM |
| Colburn Way, Sutton, SM1 | £ 700,000 | BUY | 6 / 10 | 0.19 KM |
Nearby Properties
| Address | Price | Distance |
|---|---|---|
| 20 Nash Close | £ 370,000 | 0.01 KM |
| 28 Nash Close | £ 200,000 | 0.01 KM |
| 7 Nash Close | £ 245,000 | 0.01 KM |
| 3 Nash Close | £ 505,000 | 0.01 KM |
| 18 Nash Close | £ 176,000 | 0.01 KM |