Birch Grove, Potters Bar, Hertfordshire, EN6
By Statons
£ 975,000
Reviews
3 out of 5 stars
Statons says ..
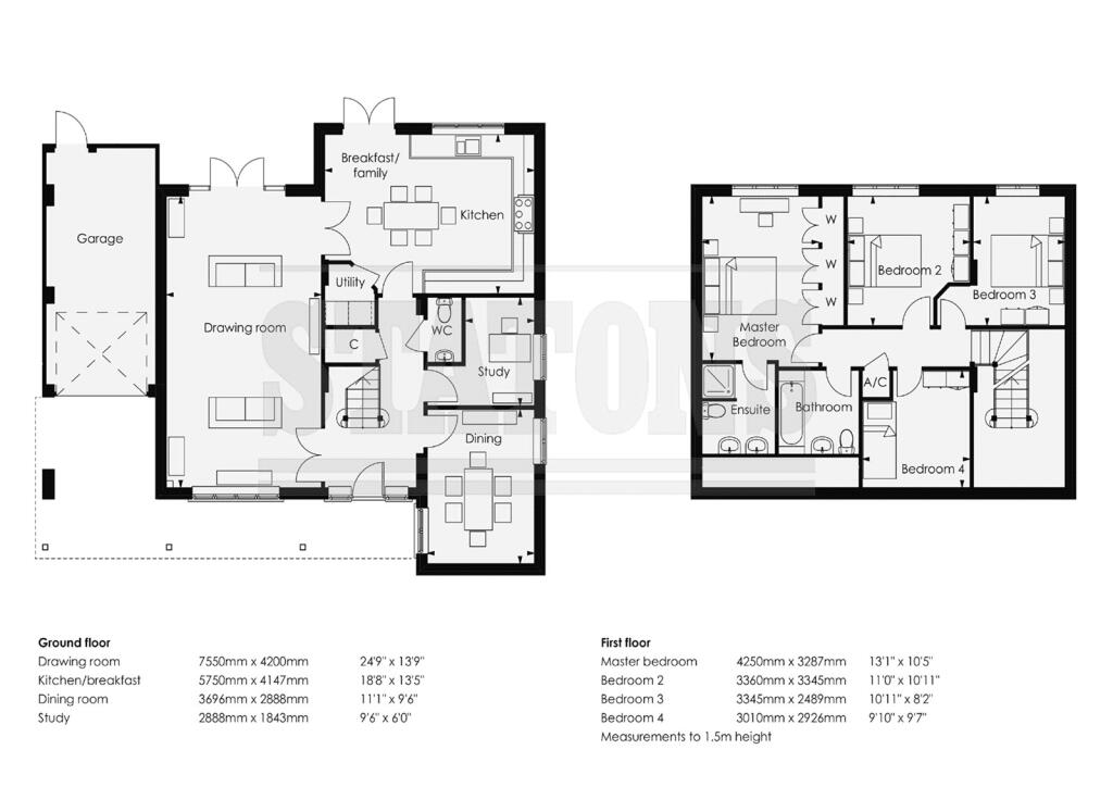
This beautifully presented executive style detached four bedroom family home was built approximately eight years ago and is arranged over two floors. Comprising of a large drawing room, modern bespoke kitchen/breakfast room, dining room, study, spacious reception hall and guest cloakroom. To the ...
Property Oracle says ..
This is a detached property in Potters Bar, Hertfordshire, listed for £975,000. It features four bedrooms and two bathrooms. The property appears to be in good condition, with modern interiors and a well-maintained exterior. It also benefits from a garden. The location is reasonably good, with access to local schools and transportation. However, the price seems a bit high compared to the average for the area.
Therefore, we give this property 7 / 10. *Disclaimer: This is our option and does constitute a recommendation or financial advice. Do your own research. *
- Price
- 6
- Condition
- 8
- Location
- 7
- Land
- 7
- Bedrooms
- 4
- Bathrooms
- 2
The heatmap indicates the level of crime in the area. The color of the heatmap indicates the crime severity and recency.
Metrics Year-on-Year
- Average area value
- 997,493.00 £Increased by 24.78 %
- Average area rental value
- 1,350.00 £/moDecreased by 19.50 %
- Est rental Yield
- 1.62 %Decreased by 35.71 %
- Crime Rate
- 4.00 %Unchanged by 0.00 %
Agent Activity
Statons created the listing.
Nearby Schools
| Name | Type | Ofsted | Distance |
|---|---|---|---|
| Ladbrooke Junior Mixed And Infant School | Community School | Good | 0.66 KM |
| The Orchard School | Other Independent Special School | Good | 0.68 KM |
| Cambian Walnut Tree Lodge School | Other Independent Special School | Requires improvement | 0.68 KM |
| The Mews | Other Independent Special School | Good | 0.68 KM |
| Bridge School | Other Independent School | Good | 0.68 KM |
Images
Nearby Streets
| Name | Average Price | Average Sqft | Distance |
|---|---|---|---|
| St. Mary's Court | £ 0 | 0 | 0.00 KM |
| Park Drive | £ 0 | 0 | 0.00 KM |
| Meadow Way | £ 561,650 | 0 | 0.00 KM |
| Wyllyots Close | £ 350,000 | 0 | 0.00 KM |
| Cherry Tree Lane | £ 0 | 0 | 0.00 KM |
Nearby Transport
| Name | NLC | TLC | Distance |
|---|---|---|---|
| Potters Bar | 6022 | PBR | 0.81 KM |
| Hadley Wood | 6075 | HDW | 3.14 KM |
| Brookmans Park | 6074 | BPK | 3.57 KM |
| Welham Green | 6073 | WMG | 5.36 KM |
| New Barnet | 6018 | NBA | 5.37 KM |
Nearby Listings
| Address | Price | Type | Score | Distance |
|---|---|---|---|---|
| Birch Grove, Potters Bar, Hertfordshire, EN6 | £ 975,000 | BUY | 7 / 10 | 0.00 KM |
| Birch Grove, Potters Bar, EN6 | £ 525,000 | BUY | 6 / 10 | 0.04 KM |
| Birch Grove, Potters Bar | £ 615,000 | BUY | 7 / 10 | 0.04 KM |
| Birch Grove, Potters Bar | £ 795,000 | BUY | 7 / 10 | 0.05 KM |
| Melrose Avenue, Potters Bar, Hertfordshire, EN6 | £ 525,000 | BUY | 7 / 10 | 0.09 KM |
Nearby Properties
| Address | Price | Distance |
|---|---|---|
| 4 Birch Grove | £ 165,000 | 0.01 KM |
| 18 Birch Grove | £ 305,000 | 0.01 KM |
| 27 Birch Grove | £ 285,500 | 0.01 KM |
| 32 Birch Grove | £ 320,000 | 0.01 KM |
| 23 Birch Grove | £ 355,000 | 0.01 KM |