1-59 Merchant Avenue, Exmouth, Devon, EX8 2GG
MC

1-59 Merchant Avenue, Exmouth, Devon, EX8 2GG

By McCarthy Stone

£ 182,500

Reviews

3 out of 5 stars

McCarthy Stone says ..

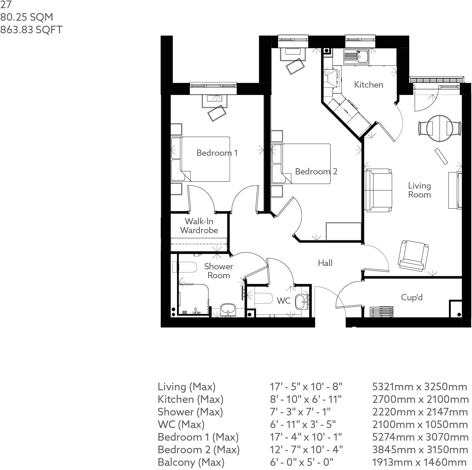
Apartment 27 is a beautiful two-bedroom apartment at our stunning The Curlews development in Exmouth.

Property Oracle says ..

Therefore, we give this property 7 / 10. *Disclaimer: This is our option and does constitute a recommendation or financial advice. Do your own research. *

Price
9
Condition
9
Location
7
Land
6
Bedrooms
2
Bathrooms
0
Sqft (est)
863.83

The heatmap indicates the level of crime in the area. The color of the heatmap indicates the crime severity and recency.

Metrics Year-on-Year

Average area value
322,940.00 £
Decreased by 9.74 %
from 357,789.00 £
Est sale value
328,255.40 £
Increased by 6.44 %
from 308,387.31 £
Average area rental value
1,284.00 £/mo
Increased by 22.29 %
from 1,050.00 £/mo
Est letting value
863.83 £/mo
Unchanged by 0.00 %
from 863.83 £/mo
Est rental Yield
4.77 %
Increased by 35.51 %
from 3.52 %
Crime Rate
8.00 %
Unchanged by 0.00 %
from 8.00 %

Agent Activity

  • McCarthy Stone created the listing.

Nearby Schools

NameTypeOfstedDistance
Bassetts Farm Primary SchoolFoundation SchoolGood0.68 KM
Littleham Church Of England Primary SchoolVoluntary Controlled SchoolRequires improvement0.97 KM
Marpool Primary SchoolFoundation SchoolGood1.13 KM
Exmouth & District Children'S CentreChildren's Centre1.31 KM
Brixington Primary AcademyAcademy Sponsor LedRequires improvement1.59 KM

Images

Show home living room Show home bedroom Show home kitchen Wellbeing suite Guest suite Show home living room Show home walk-in wardrobe The Curlews Exterior Communal gardens EPC Show home shower room Communal lounge Bistro Show home shower room Communal lounge Communal gardens Show home living room Show home bedroom Exterior Bistro Show home living room Show home walk-in wardrobe Show home kitchen Domestic support and personal care available Domestic support and personal care available EPC EPC

Nearby Streets

NameAverage PriceAverage SqftDistance
Wade Close £ 000.00 KM
The Crescent £ 000.00 KM
Copperfield Close £ 385,00000.00 KM
Buckeridge Road £ 264,00000.00 KM
Sutton Road £ 279,95000.00 KM

Nearby Transport

NameNLCTLCDistance
Exmouth5756EXM3.48 KM
Lympstone Village5761LYM5.65 KM
Starcross3413SCS7.03 KM
Dawlish Warren3409DWW7.33 KM
Lympstone Commando5762LYC7.33 KM

Nearby Listings

AddressPriceTypeScoreDistance
1-59 Merchant Avenue, Exmouth, Devon, EX8 2GG £ 364,000BUY7 / 100.00 KM
1-59 Merchant Avenue, Exmouth, Devon, EX8 2GG £ 302,500BUY8 / 100.00 KM
1-59 Merchant Avenue, Exmouth, Devon, EX8 2GG £ 127,500BUY7 / 100.00 KM
1-59 Merchant Avenue, Exmouth, Devon, EX8 2GG £ 182,500BUY7 / 100.00 KM
1-59 Merchant Avenue, Exmouth, Devon, EX8 2GG £ 449,500BUY6 / 100.01 KM

Nearby Properties

AddressPriceDistance
154 Salterton Road £ 145,0000.13 KM
146 Salterton Road £ 170,0000.13 KM
146c Salterton Road £ 166,0000.13 KM
106 Salterton Road £ 275,0000.13 KM
114 Salterton Road £ 179,9500.13 KM