Julian Marks says ..
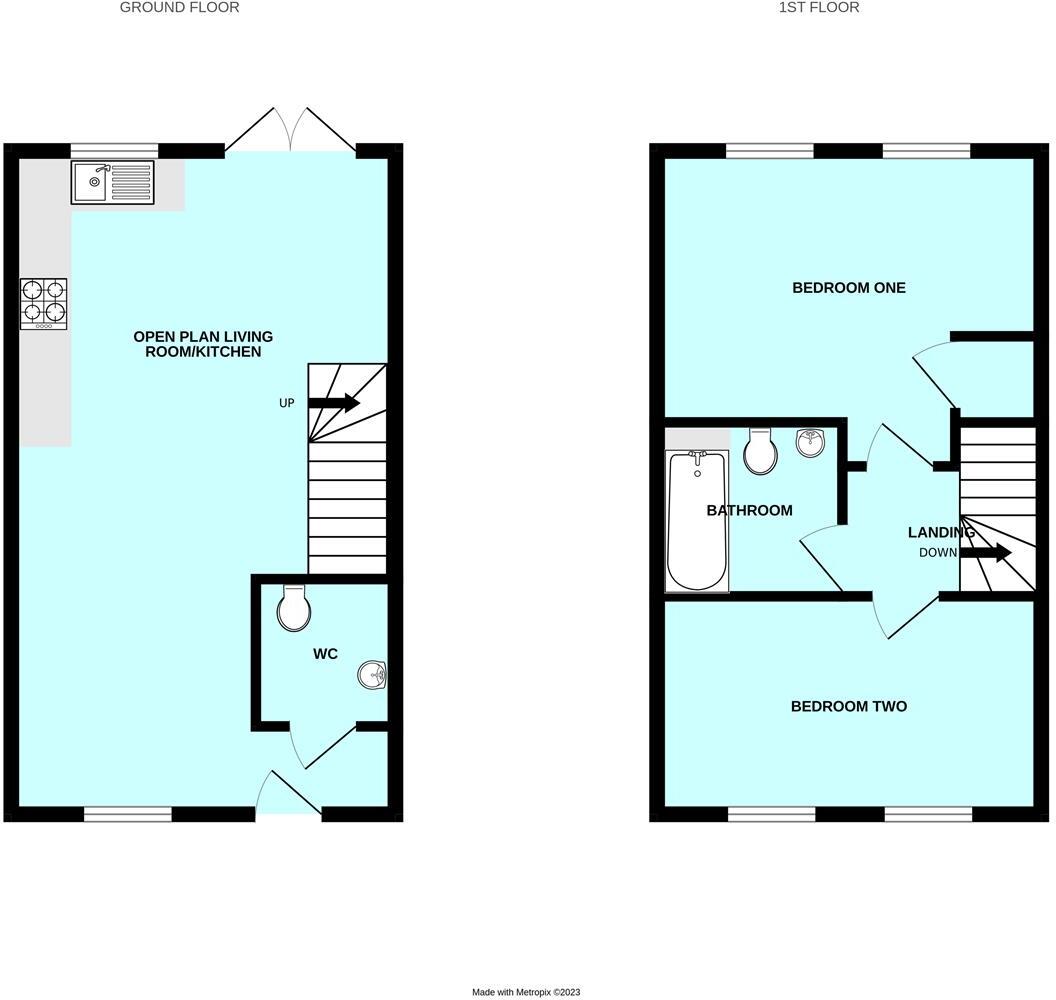
Nicely-situated end-terraced house with superbly-presented accommodation throughout. Briefly, the accommodation comprises an open-plan living room and kitchen which opens onto a landscaped rear garden, a generous downstairs cloakroom/wc, 2 first floor double bedrooms & bathroom. 2 allocated parki...
Property Oracle says ..
Therefore, we give this property 6 / 10. *Disclaimer: This is our option and does constitute a recommendation or financial advice. Do your own research. *
- Price
- 7
- Condition
- 7
- Location
- 7
- Land
- 6
- Bedrooms
- 2
- Bathrooms
- 1
- Sqft (est)
- 704.00
The heatmap indicates the level of crime in the area. The color of the heatmap indicates the crime severity and recency.
Metrics Year-on-Year
- Average area value
- 435,825.00 £Decreased by 7.72 %
- Est sale value
- 352,704.00 £Increased by 43.14 %
- Average area rental value
- 1,100.00 £/moDecreased by 2.91 %
- Est letting value
- 704.00 £/mo
- Est rental Yield
- 3.03 %Increased by 5.21 %
- Crime Rate
- 56.00 %Unchanged by 0.00 %
from 472,278.00 £
from 246,400.00 £
from 1,133.00 £/mo
from 0.00 £/mo
from 2.88 %
from 56.00 %
Agent Activity
Julian Marks created the listing.
Nearby Schools
| Name | Type | Ofsted | Distance |
|---|---|---|---|
| Sherford Vale School | Free Schools | 0.80 KM | |
| Plympton St Maurice Primary School | Academy Converter | Good | 1.88 KM |
| Elburton Primary School | Academy Converter | Outstanding | 1.97 KM |
| St Mary'S Church Of England Primary School | Voluntary Aided School | Outstanding | 2.02 KM |
| Longcause Community Special School | Community Special School | Good | 2.18 KM |
Images
Nearby Streets
| Name | Average Price | Average Sqft | Distance |
|---|---|---|---|
| Corvus Mews | £ 90,000 | 0 | 0.00 KM |
| Primrose Drive | £ 406,250 | 0 | 0.00 KM |
| Andromeda Grove | £ 230,000 | 0 | 0.00 KM |
| Dorado Street | £ 360,000 | 0 | 0.00 KM |
| Ariel Mews | £ 0 | 0 | 0.00 KM |
Nearby Listings
| Address | Price | Type | Score | Distance |
|---|---|---|---|---|
| Sherford, Plymouth | £ 249,950 | BUY | 6 / 10 | 0.00 KM |
| Sherford, Plymouth | £ 489,950 | BUY | 7 / 10 | 0.03 KM |
| Leo Avenue, Sherford, Devon, PL9 | £ 120,000 | BUY | 8 / 10 | 0.04 KM |
| Leo Avenue, Sherford, Plymouth | £ 315,000 | BUY | 6 / 10 | 0.04 KM |
| Leo Avenue, Plymouth, PL9 | £ 500,000 | BUY | 8 / 10 | 0.04 KM |
Nearby Properties
| Address | Price | Distance |
|---|---|---|
| 78 Sherford Road | £ 337,000 | 0.52 KM |
| 74 Sherford Road | £ 460,000 | 0.53 KM |
| 76 Sherford Road | £ 354,600 | 0.53 KM |
| 6 Libra Avenue | £ 299,995 | 0.55 KM |
| 84 Hercules Road | £ 354,995 | 0.61 KM |