Thompson Avenue, Castleford
PA

Thompson Avenue, Castleford

By Park Row Properties

£ 375,000

Reviews

3 out of 5 stars

Park Row Properties says ..

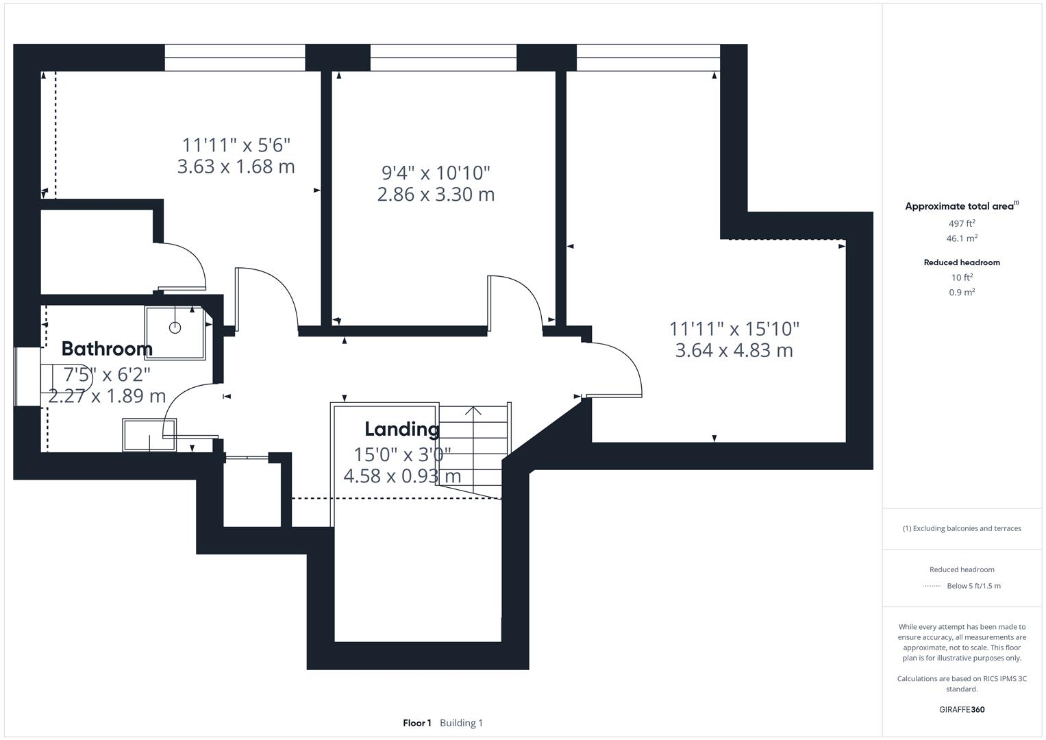
A Detached Dormer Bungalow Bursting with Potential – No Onward Chain Situated in a sought-after location, this spacious five-bedroom detached dormer bungalow presents an exciting opportunity for buyers looking to put their own stamp on a substantial family home. With generously sized roo...

Property Oracle says ..

The property is situated in Airedale And Ferry Fryston, Wakefield, which benefits from nearby transportation links, including several train stations within a reasonable distance. The presence of several schools, including Airedale Academy (rated ‘Good’), indicates a family-friendly environment. However, without specific details on the proximity to shops and other amenities, a definitive assessment of the location’s desirability is limited. Based on the provided images, the property appears to be in need of significant modernisation. The kitchen and bathrooms show dated fixtures and fittings, and several rooms exhibit worn flooring and require updating. The overall impression suggests a property requiring substantial renovation work. The property includes a sizable garden, offering ample outdoor space. The presence of a detached garage and additional outbuildings further enhances the property’s appeal in terms of land. The list price of £375,000 is significantly lower than the average house price in the area (£539,000). However, considering the property’s condition and the need for extensive renovations, the price may reflect the cost of the necessary improvements. Further analysis comparing the property’s size (currently unavailable) to those of similar properties in the area is needed to determine whether the price represents good value. The lack of square footage data for the subject property and its nearby comparables makes a definitive price assessment challenging.

Therefore, we give this property 6 / 10. *Disclaimer: This is our option and does constitute a recommendation or financial advice. Do your own research. *

Price
6
Condition
4
Location
7
Land
8
Bedrooms
5
Bathrooms
2
Sqft (est)
2,069.90

The heatmap indicates the level of crime in the area. The color of the heatmap indicates the crime severity and recency.

Metrics Year-on-Year

Average area value
420,000.00 £
Decreased by 24.04 %
from 552,933.00 £
Est sale value
1,813,232.40 £
Increased by 140.00 %
from 755,513.50 £
Average area rental value
1,475.00 £/mo
Decreased by 37.68 %
from 2,367.00 £/mo
Est letting value
6,209.70 £/mo
Increased by 200.00 %
from 2,069.90 £/mo
Est rental Yield
4.21 %
Decreased by 18.09 %
from 5.14 %
Crime Rate
2.00 %
Unchanged by 0.00 %
from 2.00 %

Agent Activity

  • Park Row Properties created the listing.

Nearby Schools

NameTypeOfstedDistance
Oyster Park Primary AcademyAcademy Sponsor LedRequires improvement0.97 KM
Airedale AcademyAcademy ConverterGood0.98 KM
Castleford Townville Infants' SchoolCommunity SchoolRequires improvement1.28 KM
Airedale Children'S CentreChildren's Centre1.31 KM
Fairburn View Primary School, CastlefordCommunity SchoolGood1.51 KM

Images

Garden to the front Lounge Diner Lounge Diner Kitchen Kitchen First Floor Landing First Floor Landing Bedroom Three Bedroom Five First floor shower room Garden to the front Rear Garden Rear Garden Rear Garden Detached Garage Downstairs Bathroom Bedroom One First Floor Landing Bedroom Three Bedroom Four Rear Garden Rear Garden Detached Garage Detached Garage CAM01966G0-PR0341-STILL033.jpg Downstairs Bathroom Bedroom Two WhatsApp Image 2025-06-06 at 11.30.29_fccf8fd6.jpg WhatsApp Image 2025-06-06 at 11.30.29_7f667d58.jpg WhatsApp Image 2025-06-06 at 11.30.29_96a566a9.jpg Bedroom Three Bedroom Two First Floor Landing WhatsApp Image 2025-08-20 at 13.18.43_a78d79a8.jpg Bedroom Four First Floor Landing First Floor Landing

Nearby Streets

NameAverage PriceAverage SqftDistance
Hillcrest Road £ 370,00000.00 KM
Hillcrest Close £ 000.00 KM
Ashtree Way £ 000.00 KM
Beech View £ 113,33200.00 KM
Grasmere Close £ 125,00000.00 KM

Nearby Transport

NameNLCTLCDistance
Pontefract Monkhill8548PFM2.28 KM
Pontefract Baghill8540PFR3.07 KM
Pontefract Tanshelf8541POT3.29 KM
Glasshoughton8360GLH4.41 KM
Knottingley8546KNO5.11 KM

Nearby Listings

AddressPriceTypeScoreDistance
Thompson Avenue, Castleford £ 375,000BUY6 / 100.00 KM
Thompson Avenue, Castleford, West Yorkshire, WF10 £ 375,000BUY6 / 100.04 KM
Hillcrest Mount, Townville, Castleford £ 260,000BUY7 / 100.10 KM
Hillcrest Drive, Townville, Castleford £ 325,000BUY7 / 100.12 KM
Hillcrest Drive, Castleford £ 270,000BUY6 / 100.13 KM

Nearby Properties

AddressPriceDistance
3 Thompson Avenue £ 255,0000.04 KM
1 Thompson Avenue £ 148,0000.04 KM
2 Thompson Avenue £ 196,0000.04 KM
3 Hillcrest Mount £ 219,0000.10 KM
Sunny View £ 120,0000.10 KM