Fflorens Road, NEWBRIDGE NP11
By Cariad Property
£ 309,995
Reviews
3 out of 5 stars
Cariad Property says ..
WOW! SUPER EXTENDED MODERN FAMILY HOME. Double storey extension adding oodles of living and sleeping space, fully professionally refurbished to a high standard, four double bedrooms, lovely garden and driveway, glorious panoramic views.
Property Oracle says ..
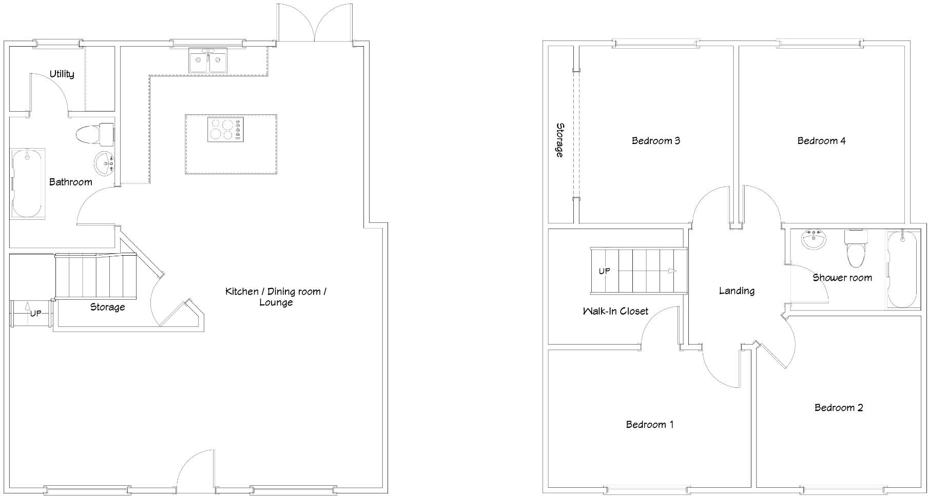
This is a semi-detached property located on Fflorens Road in Newbridge, Caerphilly. The house has 4 bedrooms and 2 bathrooms, with a total square footage of 1,107.28 sqft. The property is in good condition, with modern interiors and a well-maintained exterior. It benefits from a garden with a patio and artificial turf, as well as off-street parking. The property is located close to local schools and transportation links. The price is higher than the average for the area, but this may reflect the condition and recent renovations.
Therefore, we give this property 6 / 10. *Disclaimer: This is our option and does constitute a recommendation or financial advice. Do your own research. *
- Price
- 6
- Condition
- 8
- Location
- 6
- Land
- 7
- Bedrooms
- 4
- Bathrooms
- 2
- Sqft (est)
- 1,107.28
The heatmap indicates the level of crime in the area. The color of the heatmap indicates the crime severity and recency.
Metrics Year-on-Year
- Average area value
- 219,115.00 £Increased by 18.08 %
- Est sale value
- 275,712.72 £Increased by 3.75 %
- Average area rental value
- 1,500.00 £/moIncreased by 50.30 %
- Est letting value
- 1,107.28 £/moUnchanged by 0.00 %
- Est rental Yield
- 8.21 %Increased by 27.29 %
- Crime Rate
- 4.00 %Unchanged by 0.00 %
Agent Activity
Cariad Property created the listing.
Nearby Schools
| Name | Type | Ofsted | Distance |
|---|---|---|---|
| Crumlin High Level Primary School | Welsh Establishment | 0.44 KM | |
| Tynewydd Primary School | Welsh Establishment | 0.57 KM | |
| Newbridge School | Welsh Establishment | 1.18 KM | |
| Pantside Primary School | Welsh Establishment | 1.34 KM | |
| Sofrydd C.P. School | Welsh Establishment | 2.33 KM |
Images
Nearby Streets
| Name | Average Price | Average Sqft | Distance |
|---|---|---|---|
| Oakland Terrace | £ 0 | 0 | 0.00 KM |
| Pen-y-Lan Terrace | £ 260,000 | 0 | 0.00 KM |
| Park Road | £ 270,000 | 0 | 0.00 KM |
| Hillside | £ 120,000 | 0 | 0.00 KM |
| Uplands | £ 0 | 0 | 0.00 KM |
Nearby Transport
| Name | NLC | TLC | Distance |
|---|---|---|---|
| Newbridge | 9919 | NBE | 0.99 KM |
| Llanhilleth | 9916 | LTH | 3.14 KM |
| Crosskeys | 9902 | CKY | 6.32 KM |
| Gilfach Fargoed | 4022 | GFF | 8.98 KM |
| Hengoed | 4028 | HNG | 9.13 KM |
Nearby Listings
| Address | Price | Type | Score | Distance |
|---|---|---|---|---|
| Fflorens Road, NEWBRIDGE NP11 | £ 309,995 | BUY | 6 / 10 | 0.00 KM |
| Fflorens Road, Newbridge, NP11 | £ 250,000 | BUY | 7 / 10 | 0.04 KM |
| Treowen Road, Treowen, Newbridge | £ 179,950 | BUY | 5 / 10 | 0.07 KM |
| Fflorens Road, Newbridge, Newport | £ 280,000 | BUY | 7 / 10 | 0.12 KM |
| Fflorens Road, Newbridge, Newport | £ 270,000 | BUY | 7 / 10 | 0.12 KM |
Nearby Properties
| Address | Price | Distance |
|---|---|---|
| 30 Fflorens Road | £ 153,000 | 0.00 KM |
| 45 Fflorens Road | £ 195,000 | 0.00 KM |
| 41 Fflorens Road | £ 155,000 | 0.00 KM |
| 55 Fflorens Road | £ 185,000 | 0.00 KM |
| 37 Fflorens Road | £ 100,000 | 0.00 KM |