Purplebricks says ..
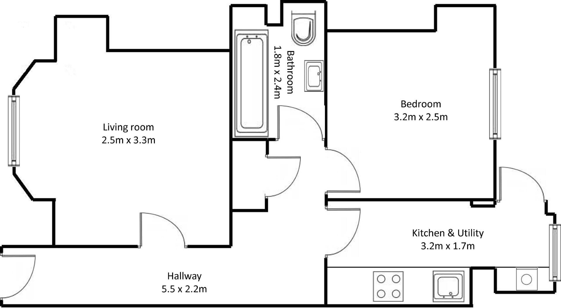
This well-presented one-bedroom basement flat is set within a charming period conversion on the popular St Mary’s Road in Strood. Renovated approximately five years ago, the property offers a stylish and comfortable living space ideal for first-time buyers, commuters, or investors. The accommoda...
Property Oracle says ..
Therefore, we give this property 6 / 10. *Disclaimer: This is our option and does constitute a recommendation or financial advice. Do your own research. *
- Price
- 6
- Condition
- 6
- Location
- 7
- Land
- 5
- Bedrooms
- 1
- Bathrooms
- 1
- Sqft (est)
- 410.21
The heatmap indicates the level of crime in the area. The color of the heatmap indicates the crime severity and recency.
Metrics Year-on-Year
- Average area value
- 224,000.00 £Decreased by 29.61 %
- Est sale value
- 137,830.56 £Increased by 13.13 %
- Average area rental value
- 1,116.00 £/moDecreased by 12.40 %
- Est letting value
- 410.21 £/moUnchanged by 0.00 %
- Est rental Yield
- 5.98 %Increased by 24.58 %
- Crime Rate
- 32.00 %Unchanged by 0.00 %
from 318,229.00 £
from 121,832.37 £
from 1,274.00 £/mo
from 410.21 £/mo
from 4.80 %
from 32.00 %
Agent Activity
Purplebricks created the listing.
Nearby Schools
| Name | Type | Ofsted | Distance |
|---|---|---|---|
| Gun Lane Children'S Centre | Children's Centre | 0.34 KM | |
| All Faiths Children'S Academy | Academy Converter | Good | 0.35 KM |
| English Martyrs' Catholic Primary School | Voluntary Aided School | Good | 0.55 KM |
| St Nicholas Church Of England Voluntary Controlled Infant School | Voluntary Controlled School | Outstanding | 0.85 KM |
| Hilltop Primary Academy | Academy Converter | 0.98 KM |
Images
Nearby Streets
| Name | Average Price | Average Sqft | Distance |
|---|---|---|---|
| Edward Street | £ 0 | 0 | 0.00 KM |
| Taylor's Lane | £ 0 | 0 | 0.00 KM |
| Watermill Close | £ 0 | 0 | 0.00 KM |
| RRX60 | £ 280,000 | 0 | 0.00 KM |
| Castle Hill Court | £ 0 | 0 | 0.00 KM |
Nearby Transport
| Name | NLC | TLC | Distance |
|---|---|---|---|
| Strood (Kent) | 5191 | SOO | 0.40 KM |
| Rochester | 5203 | RTR | 2.01 KM |
| Chatham | 5199 | CTM | 3.31 KM |
| Higham | 5202 | HGM | 4.66 KM |
| Cuxton | 5201 | CUX | 4.68 KM |
Nearby Listings
| Address | Price | Type | Score | Distance |
|---|---|---|---|---|
| St Mary's Road, Strood, ME2 | £ 160,000 | BUY | 6 / 10 | 0.00 KM |
| St. Marys Road, Strood | £ 120,000 | BUY | 7 / 10 | 0.01 KM |
| Burgess Road, Rochester | £ 260,000 | BUY | Unknown | 0.03 KM |
| Grange Road, Rochester, Kent | £ 220,000 | BUY | 5 / 10 | 0.07 KM |
| Grange Road, Rochester, Kent | £ 145,500 | BUY | 6 / 10 | 0.07 KM |
Nearby Properties
| Address | Price | Distance |
|---|---|---|
| 9 St Marys Road | £ 170,000 | 0.00 KM |
| 20 St Marys Road | £ 315,000 | 0.00 KM |
| 2 St Marys Road | £ 56,000 | 0.01 KM |
| 7 St Marys Road | £ 159,995 | 0.01 KM |
| 10 Burgess Road | £ 117,000 | 0.06 KM |