eXp UK says ..
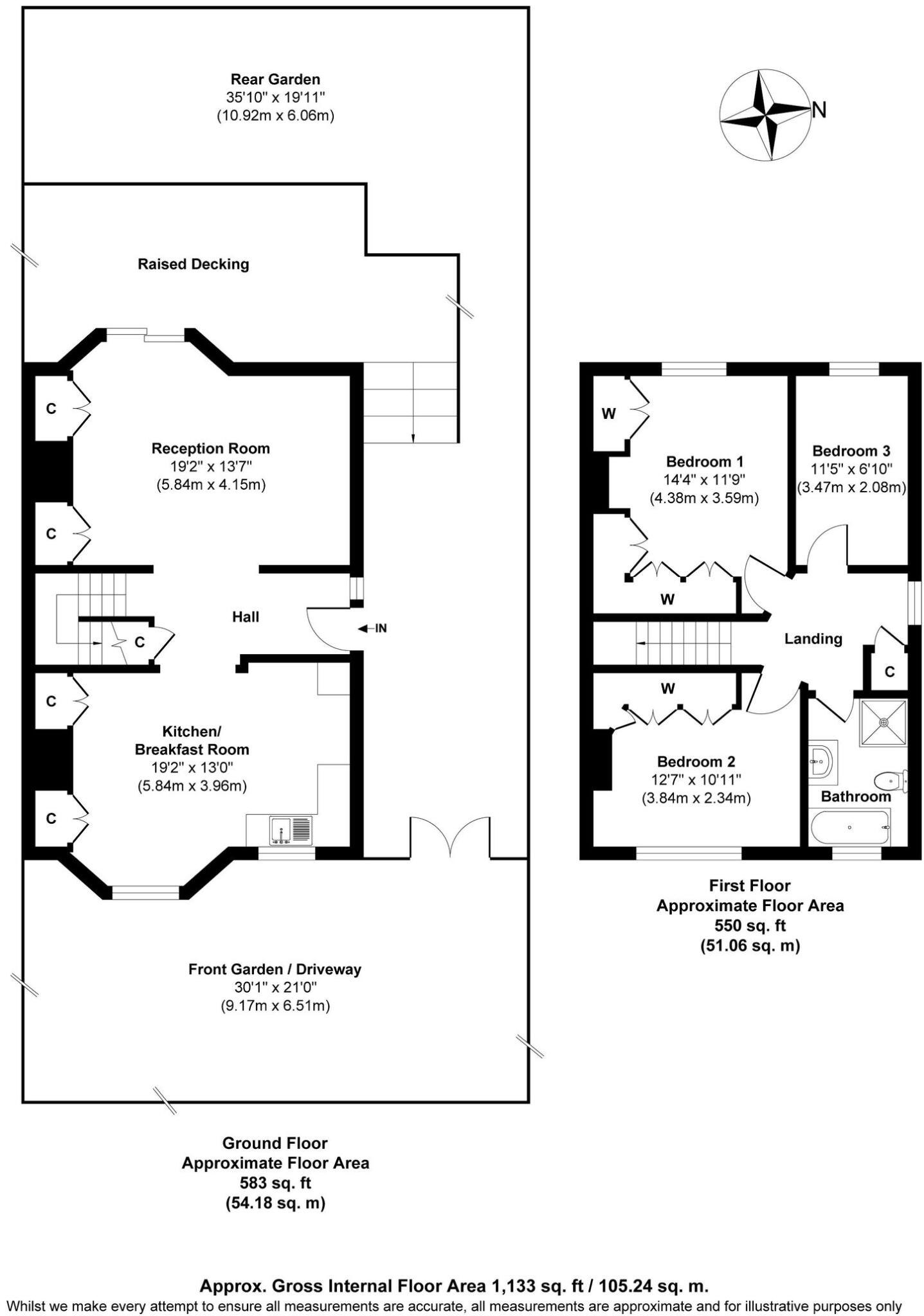
GUIDE PRICE: £750,000 TO £775,000 This well-presented, three-bedroom semi-detached family home offers the perfect blend of immediate comfort and exciting future potential, situated on a quiet residential street just moments from the vibrancy of Whetstone High Road and excell...
Property Oracle says ..
This is a three-bedroom semi-detached house located on Ridgeview Road in Whetstone, Barnet. The property offers 1,133 sqft of living space. The house includes a garden and off-street parking. Nearby schools include Finchley Catholic High School and St John’s C of E Primary School. The property is conveniently located for access to local amenities and transport links.
Therefore, we give this property 7 / 10. *Disclaimer: This is our option and does constitute a recommendation or financial advice. Do your own research. *
- Price
- 8
- Condition
- 7
- Location
- 7
- Land
- 6
- Bedrooms
- 3
- Bathrooms
- 1
- Sqft (est)
- 1,133.00
The heatmap indicates the level of crime in the area. The color of the heatmap indicates the crime severity and recency.
Metrics Year-on-Year
- Average area value
- 1,077,389.00 £Increased by 1.83 %
- Est sale value
- 738,716.00 £Increased by 8.49 %
- Average area rental value
- 2,772.00 £/moIncreased by 5.36 %
- Est letting value
- 1,133.00 £/moUnchanged by 0.00 %
- Est rental Yield
- 3.09 %Increased by 3.69 %
- Crime Rate
- 1.00 %Unchanged by 0.00 %
Agent Activity
eXp UK created the listing.
Nearby Schools
| Name | Type | Ofsted | Distance |
|---|---|---|---|
| Finchley Catholic High School | Voluntary Aided School | Good | 0.17 KM |
| St John'S Cofe Primary School | Voluntary Aided School | Good | 0.57 KM |
| The Holmewood School | Other Independent Special School | Good | 0.77 KM |
| Alma Primary | Free Schools | Good | 0.89 KM |
| Northside Primary School | Community School | Outstanding | 0.94 KM |
Images
Nearby Streets
| Name | Average Price | Average Sqft | Distance |
|---|---|---|---|
| Woodside Court | £ 850,000 | 0 | 0.00 KM |
| Station Approach | £ 0 | 0 | 0.00 KM |
| High Road | £ 0 | 0 | 0.00 KM |
| Coleridge Road | £ 0 | 0 | 0.00 KM |
| Oakleigh Road North | £ 485,000 | 0 | 0.00 KM |
Nearby Transport
| Name | NLC | TLC | Distance |
|---|---|---|---|
| Oakleigh Park | 6020 | OKL | 2.26 KM |
| New Barnet | 6018 | NBA | 2.87 KM |
| New Southgate | 6019 | NSG | 4.40 KM |
| Hadley Wood | 6075 | HDW | 4.96 KM |
| Bowes Park | 6027 | BOP | 7.01 KM |
Nearby Listings
| Address | Price | Type | Score | Distance |
|---|---|---|---|---|
| Ridgeview Road, Whetstone, N20 | £ 750,000 | BUY | 7 / 10 | 0.00 KM |
| Ridgeview Road, Whetstone, N20 | £ 750,000 | BUY | 6 / 10 | 0.01 KM |
| Ridgeview Road, Totteridge | £ 800,000 | BUY | 7 / 10 | 0.07 KM |
| Ridgeview Road, Whetstone | £ 925,000 | BUY | 7 / 10 | 0.18 KM |
| Woodside Lane, Woodside Park, London, N12 | £ 450,000 | BUY | 5 / 10 | 0.18 KM |
Nearby Properties
| Address | Price | Distance |
|---|---|---|
| 5 Ridgeview Road | £ 360,000 | 0.01 KM |
| 33 Ridgeview Road | £ 490,000 | 0.01 KM |
| 21 Ridgeview Road | £ 434,950 | 0.01 KM |
| 31 Ridgeview Road | £ 360,000 | 0.01 KM |
| 43 Ridgeview Road | £ 520,000 | 0.01 KM |